Hashtag in drei Dimensionen
Robert Day Sciences Center von BIG
Durch die kreuzweise verdrehte Form der Geschosse entstehen im Robert Day Sciences Center auf jeder Ebene Terrassen und Schatten spendende Vordächer. © Laurian Ghinitoiu
Die Wissenschaften haben es unter Donald Trump nicht leicht in den USA – schon gar nicht die Klimawissenschaften und die medizinische Forschung. Für sie hat das Claremont McKenna College bei Los Angeles im Herbst 2025 das neue Robert Day Sciences Centre von Bjarke Ingels‘ Büro BIG eingeweiht. In den Labors und Seminarräumen des neuen Wissenschaftszentrums werden Studierende und Forscher an Klimamodellen und computergestützten Methoden der Gen- und Hirnforschung arbeiten.


Im Erdgeschoss führen zwei einander gegenüberliegende Eingänge in das Atrium. © Laurian Ghinitoiu
Namensgeber ist ein 2023 verstorbener Vermögensverwalter und Claremont-Alumnus, der mit seiner Spende den Startschuss gab für eine groß angelegte Campus-Erweiterung: Der Masterplan – ebenfalls von BIG – sieht neben dem neuen Wissenschaftszentrum den Bau eines neuen Sportkomplexes auf den unmittelbar östlich angrenzenden Flächen vor. Außerdem sollen die Bestandsgebäude des Colleges saniert und die Wegeverbindungen auf dem Areal optimiert werden.
Offen zu allen Seiten
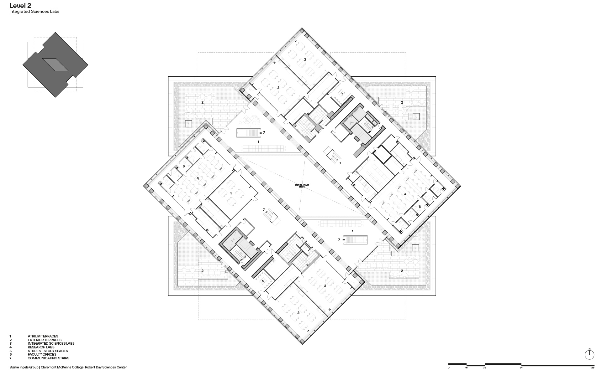
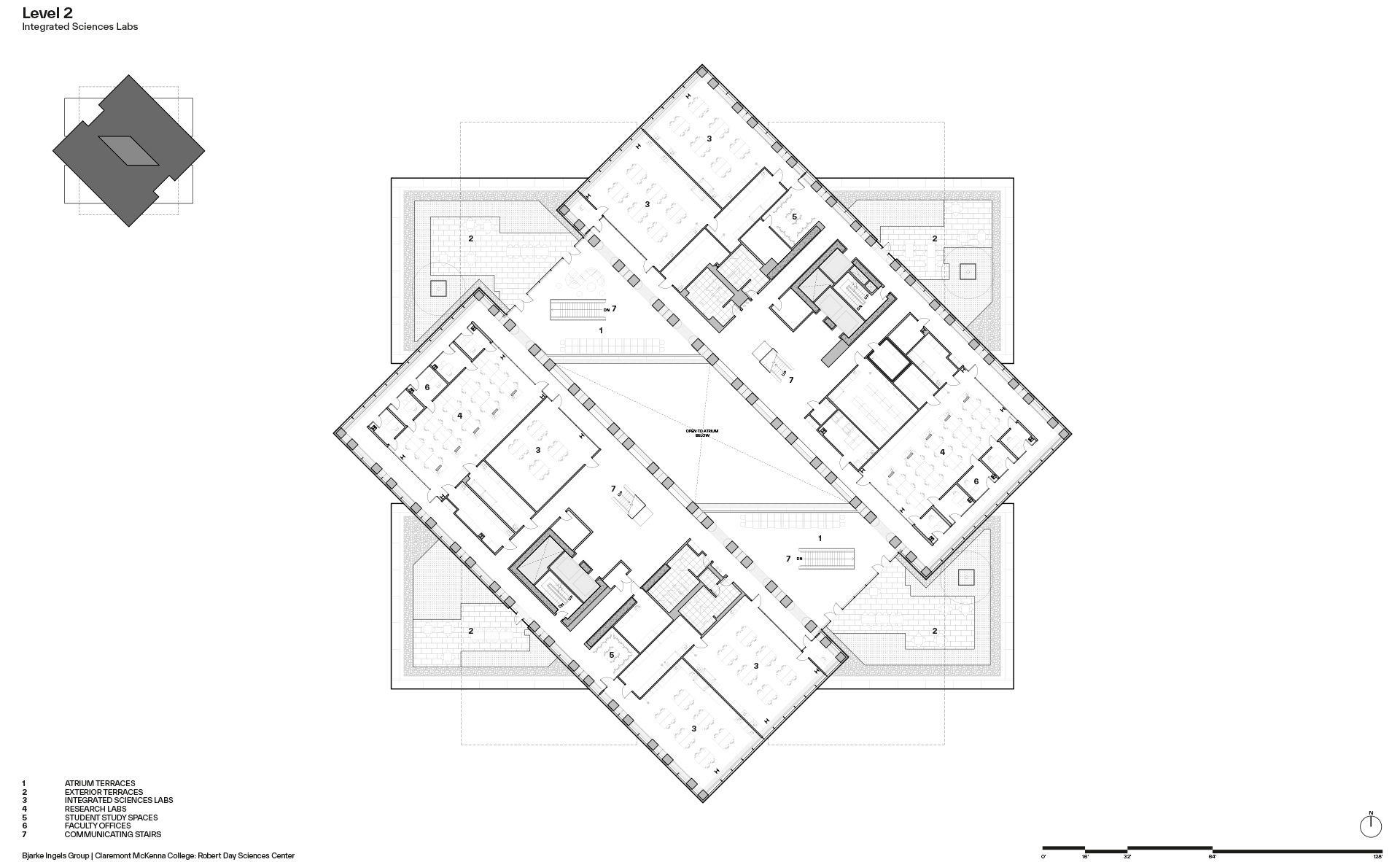
Das Robert Day Sciences Center steht an der Schnittstelle zwischen bestehendem Campus und Erweiterungsflächen und sollte sich daher nach allen Seiten öffnen. In einem auf der Website des Bauherrn veröffentlichten Interview vergleicht Bjarke Ingels den Bau mit einem Hashtag, der in alle Richtungen zeigt: Paarweise angeordnete, geschossweise je um 45° verdrehte Fachwerkträger umgeben ein zentrales Atrium. Zwischen ihnen öffnet sich ein weitgehend stützenfreier Raum für Labore, Seminarräume und Sanitärbereiche.


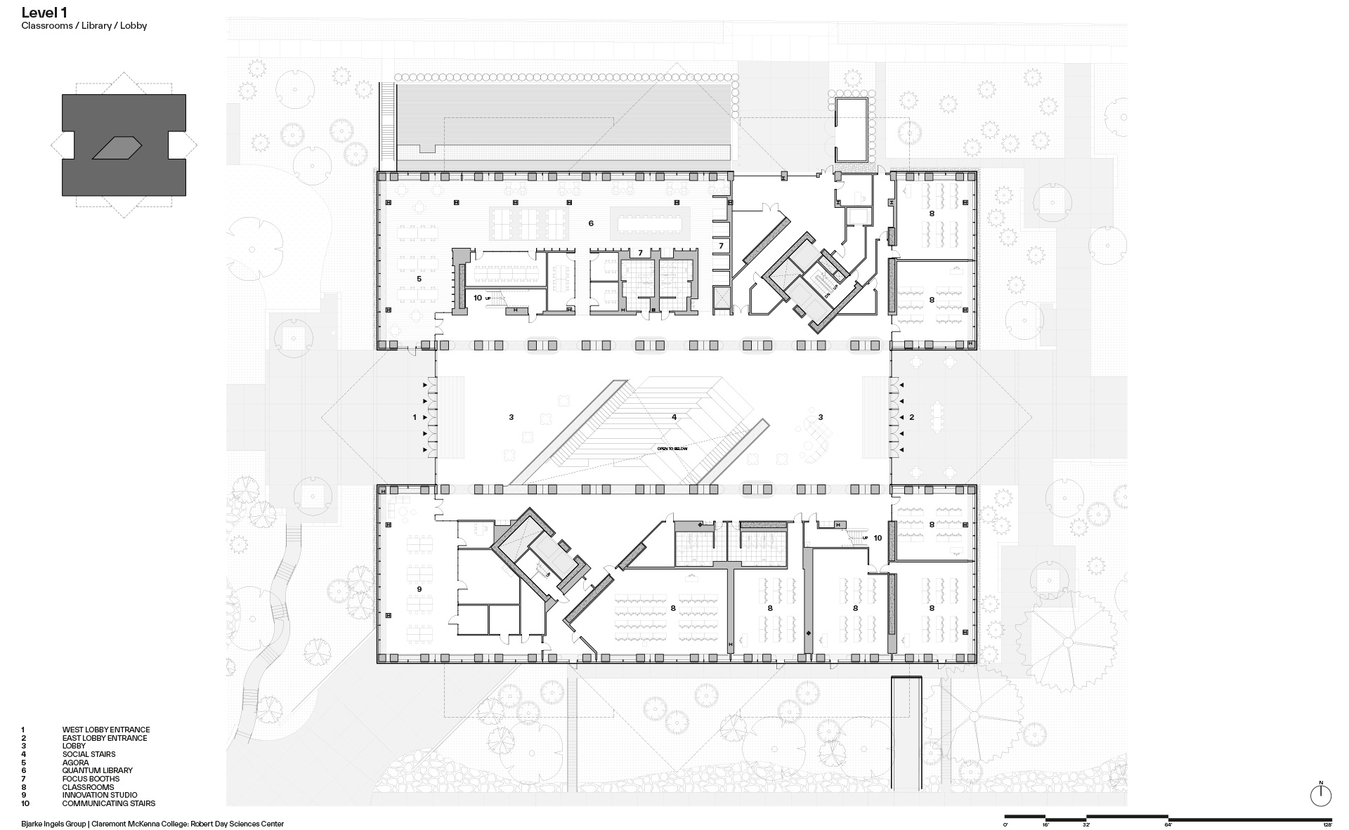
Grundriss Erdgeschoss, Grafik © BIG
Das Gebäude hat drei Eingänge: Zwei davon liegen sich im Westen und Osten des Erdgeschosses gegenüber. Der dritte führt von den ein Geschoss tiefer gelegenen Sportanlagen im Südwesten ins Untergeschoss. Halb ins Gelände eingegraben, enthält diese Ebene die kleinteiligeren Bestandteile des Raumprogramms – darunter Räume für Mikroskopie, EEG-Aufnahmen und ein Vivarium. Hinzu kommen ein großer Hörsaal und ein Café, von dem aus ein breiter Treppenlauf hinauf ins Eingangsgeschoss und in das mit Glas überdachte Atrium führt.


Holzverkleidete Fachwerkträger aus Stahl machen das komplexe Tragwerk des Gebäudes im Atrium ablesbar. © Laurian Ghinitoiu
Barrierefreier Übergang zwischen den Fachdisziplinen
Bjarke Ingels und BIG wollten mit ihrem Entwurf vor allem Schwellen zwischen den unterschiedlichen Fachdisziplinen abbauen. Labore sollten auch später jederzeit zu Seminar- oder Computerräumen umgebaut werden können. Das war nicht ohne Schwierigkeiten, erinnert sich der BIG-Gründer: „In vielerlei Hinsicht ist dieses Projekt ein Widerspruch in sich. Man möchte alle Barrieren für die Interaktion abbauen, aber viele Barrieren müssen aus technischen Gründen aufrechterhalten werden.“


Zwischen den Fachwerkträgern liegen weitgehend stützenfreie Büros, Seminar- und Laborräume. © Laurian Ghinitoiu
Stahlskelett im Holzmantel
Das viele Holz in den Innenräumen war für Ingels keine rein subjektive Wahl, sondern auch wissenschaftlich begründet: „Studien zeigen, wie sich die Vielfalt Ihrer Umgebung auf die neurologischen Verschaltungen in Ihrem Gehirn auswirkt. Eine wenig anregende Umgebung beeinträchtigt Ihre Fähigkeit, neue Verbindungen zu knüpfen und neue Ideen zu entwickeln. Daher wollten wir eine Umgebung schaffen, die zu unterschiedlichen Denkweisen anregt.“ Allerdings erwies sich ein reiner Holzbau angesichts der hohen Anforderungen, speziell an die Laborräume, schnell als unrealistisch. Im Inneren Fachwerkträger steckt daher ein Stahlskelett, das innen mit Holzpaneelen verkleidet ist. Die äußere, dem Wetter ausgesetzte Verkleidung besteht aus Beton mit Brettschalung.
Entdecken Sie weitere Projekte von BIG in unsere Datenbank Detail Inspiration.
Architektur: BIG – Bjarke Ingels Group
Bauherr: Claremont McKenna College
Standort: 681 Claremont Blvd, Claremont, CA 91711 (US)
Tragwerksplanung: Saiful Bouquet
Generalunternehmer: KPRS
Bauleitung: IDS Real Estate Group
Weitere Ingenieure und Berater: Acco Engineered Systems, Atlas Civil Design, MRY, Rosendin Electric, WSP USA,
Jacobs, ARUP, KGM Architectural Lighting, Heintges, KOA, EWCG, Herrick, Hortus Environmental Design, Kleinfelder, Salamander, Code Consultants



























