Omnidirectional hashtag
Robert Day Sciences Centre by BIG
The crosswise twisted shape of the floors creates terraces and shady canopies on every level of the Robert Day Sciences Centre. © Laurian Ghinitoiu
The sciences are not having an easy time in the USA under Donald Trump, particularly climate science and medical research. However, Claremont McKenna College near Los Angeles inaugurated the new Robert Day Sciences Centre, designed by Bjarke Ingels' practice BIG, in autumn 2025. Students and researchers will use the laboratories and seminar rooms to work on climate models and computer-assisted methods of genetic and brain research.


On the ground floor, two entrances opposite each other lead into the atrium. © Laurian Ghinitoiu
The centre is named after a deceased asset manager and Claremont alumnus whose donation kick-started a large-scale campus expansion. The master plan, also by BIG, includes the construction of a new sports complex on the land immediately to the east of the new science centre. The college's existing buildings are also to be renovated, and the pathways on the site optimised.
Open on all sides
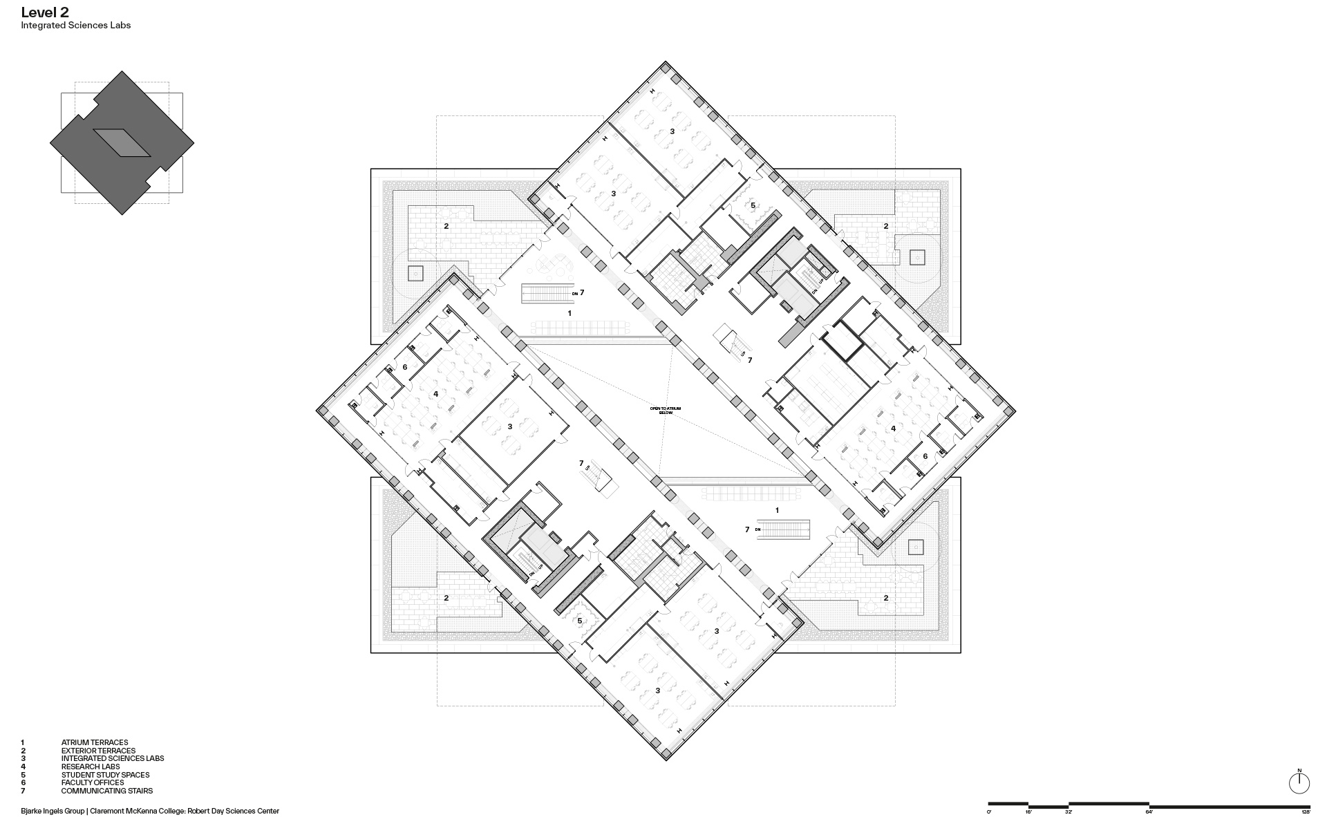
The Robert Day Sciences Centre is located at the interface between the existing campus and the expansion area, so it should be open on all sides. In an interview published on the client's website, Bjarke Ingels compares the building to an omnidirectional hashtag. Pairs of truss beams, each rotated by 45° on each floor, surround a central atrium. This creates a largely column-free space for laboratories, seminar rooms, and sanitary areas.


Ground floor plan, Graphic © BIG
The building has three entrances, two of which are located opposite each other on the ground floor's west and east sides. The third leads from the sports facilities one floor below in the south-west to the basement. This level, which is half buried in the ground, contains the smaller components of the space allocation plan, including rooms for microscopy, EEG recordings and a vivarium. There is also a large lecture theatre and a café. A wide staircase leads from the café up to the entrance floor and the glass-roofed atrium.


Wood-clad steel trusses reveal the complex supporting structure of the building in the atrium. © Laurian Ghinitoiu
Barrier-free transition between disciplines
Bjarke Ingels and his team at BIG wanted their design to break down the barriers between different disciplines. The laboratories should also be convertible into seminar or computer rooms at any time in the future. This was not without its difficulties, recalls the BIG founder: “In many ways, this project is an oxymoron. You want to break down all the barriers for interaction, but for technical reasons, you want to maintain all the barriers that are necessary.“


Between the trusses are largely column-free offices, seminar rooms and laboratories. © Laurian Ghinitoiu
Steel skeleton in a wooden shell
The abundance of wood in the interior was not just a subjective choice for Ingels; it was also scientifically justified: “There are studies that show how the richness of your environment impacts the neurological connectivity of your brain. Essentially, your capacity to make new connections and new ideas is impaired by an unstimulating environment. In that sense, we wanted to create an environment that invited different kinds of thinking.“
However, a pure timber construction quickly proved to be unrealistic, given the high demands, especially for the laboratory rooms. The interior of the truss girders therefore contains a steel skeleton clad with wooden panels on the inside. The exterior cladding, which is exposed to the weather, is made of concrete with board formwork.
Discover more projects by BIG in our Detail Inspiration database.
Architecture: BIG – Bjarke Ingels Group
Client: Claremont McKenna College
Location: 681 Claremont Blvd, Claremont, CA 91711 (US)
Structural engineering: Saiful Bouquet
General contractor: KPRS
Site management: IDS Real Estate Group
Further engineers and consultants: Acco Engineered Systems, Atlas Civil Design, MRY, Rosendin Electric, WSP USA,
Jacobs, ARUP, KGM Architectural Lighting, Heintges, KOA, EWCG, Herrick, Hortus Environmental Design, Kleinfelder, Salamander, Code Consultants



























