// Check if the article Layout ?>
Saniert und aufgestockt: Wohnhaus in Stuttgart
Foto: Brigida González
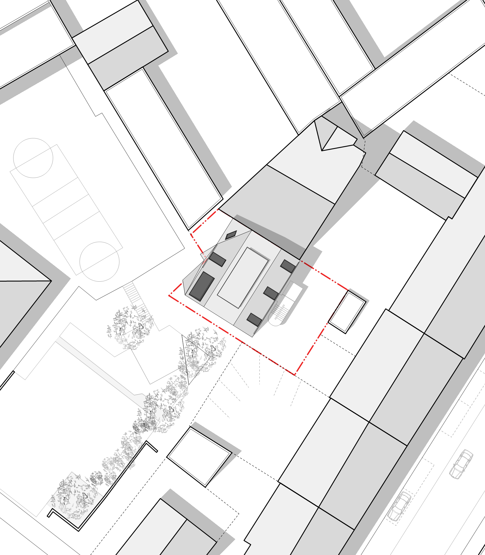
OS66.1 befindet sich mitten im Herzen Stuttgarts in einem Innenhof, gut versteckt hinter einer Häuserzeile. Die Rahmenbedingungen stellt ein schlichter, zweigeschossiger Bestandsbau mit Satteldach. Dieser schließt bündig an ein benachbartes Gebäude im Norden an.
Die Architekten g2o machen aus dem einfachen Mauerwerksbau einen kristallinen Monolithen. Sie stocken ihn in Holzbauweise auf und hüllen sämtliche Ansichten komplett in ein neutrales Weiß. Fassaden und Dach gehen fast nahtlos ineinander über. Außenbündig gesetzte Fenster komplettieren den glatten Eindruck und bilden die erste Maßnahme der energetischen Sanierung. Diese besteht außerdem in einem neuen Be- und Entlüftungssystem mit Wärmerückgewinnung und Solarkollektoren, die die Heizung speisen.
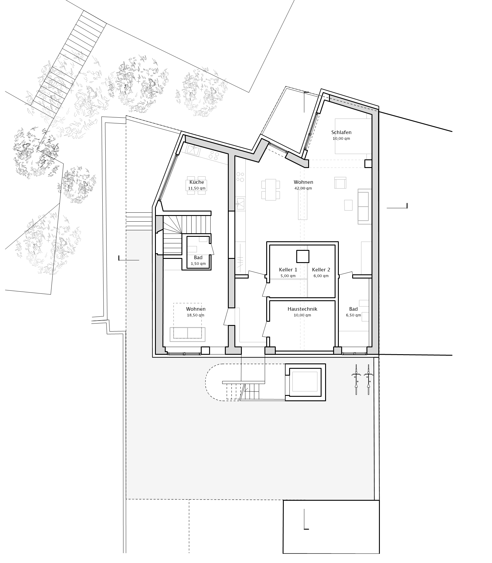
Die Erschließung von OS66.1 wandert im Zuge der Sanierung nach außen. Über eine Freitreppe aus Stahl an der Südostfassade gelangt man in sämtliche Geschosse; den krönenden Abschluss bildet eine kleine Plattform auf dem Dach. Das Raumprogramm umfasst neben den Büros der Architekten drei Geschosswohnungen, sowie zwei 1-Zimmer-Apartments.
Den Innenräumen des Wohnhauses in der Olgastraße verpassen g2o Architekten ein frisches Aussehen. Neue Einbauten, Sichtbeton und weiße Oberflächen sind ebenso Teil der neuen Linie wie zarte Pastelltöne. Das bestehende Mauerwerk liegt an manchen Stellen frei und kontrastiert in seinem rohen Charakter mit zarten, vertikalen Holzlattungen, die Decken und Wände kleiden und dadurch ein angenehmes Wohnambiente schaffen.
Die Architekten g2o machen aus dem einfachen Mauerwerksbau einen kristallinen Monolithen. Sie stocken ihn in Holzbauweise auf und hüllen sämtliche Ansichten komplett in ein neutrales Weiß. Fassaden und Dach gehen fast nahtlos ineinander über. Außenbündig gesetzte Fenster komplettieren den glatten Eindruck und bilden die erste Maßnahme der energetischen Sanierung. Diese besteht außerdem in einem neuen Be- und Entlüftungssystem mit Wärmerückgewinnung und Solarkollektoren, die die Heizung speisen.
Die Erschließung von OS66.1 wandert im Zuge der Sanierung nach außen. Über eine Freitreppe aus Stahl an der Südostfassade gelangt man in sämtliche Geschosse; den krönenden Abschluss bildet eine kleine Plattform auf dem Dach. Das Raumprogramm umfasst neben den Büros der Architekten drei Geschosswohnungen, sowie zwei 1-Zimmer-Apartments.
Den Innenräumen des Wohnhauses in der Olgastraße verpassen g2o Architekten ein frisches Aussehen. Neue Einbauten, Sichtbeton und weiße Oberflächen sind ebenso Teil der neuen Linie wie zarte Pastelltöne. Das bestehende Mauerwerk liegt an manchen Stellen frei und kontrastiert in seinem rohen Charakter mit zarten, vertikalen Holzlattungen, die Decken und Wände kleiden und dadurch ein angenehmes Wohnambiente schaffen.





















