// Check if the article Layout ?>
Renovation and Addition: Building in Stuttgart
Foto: Brigida González
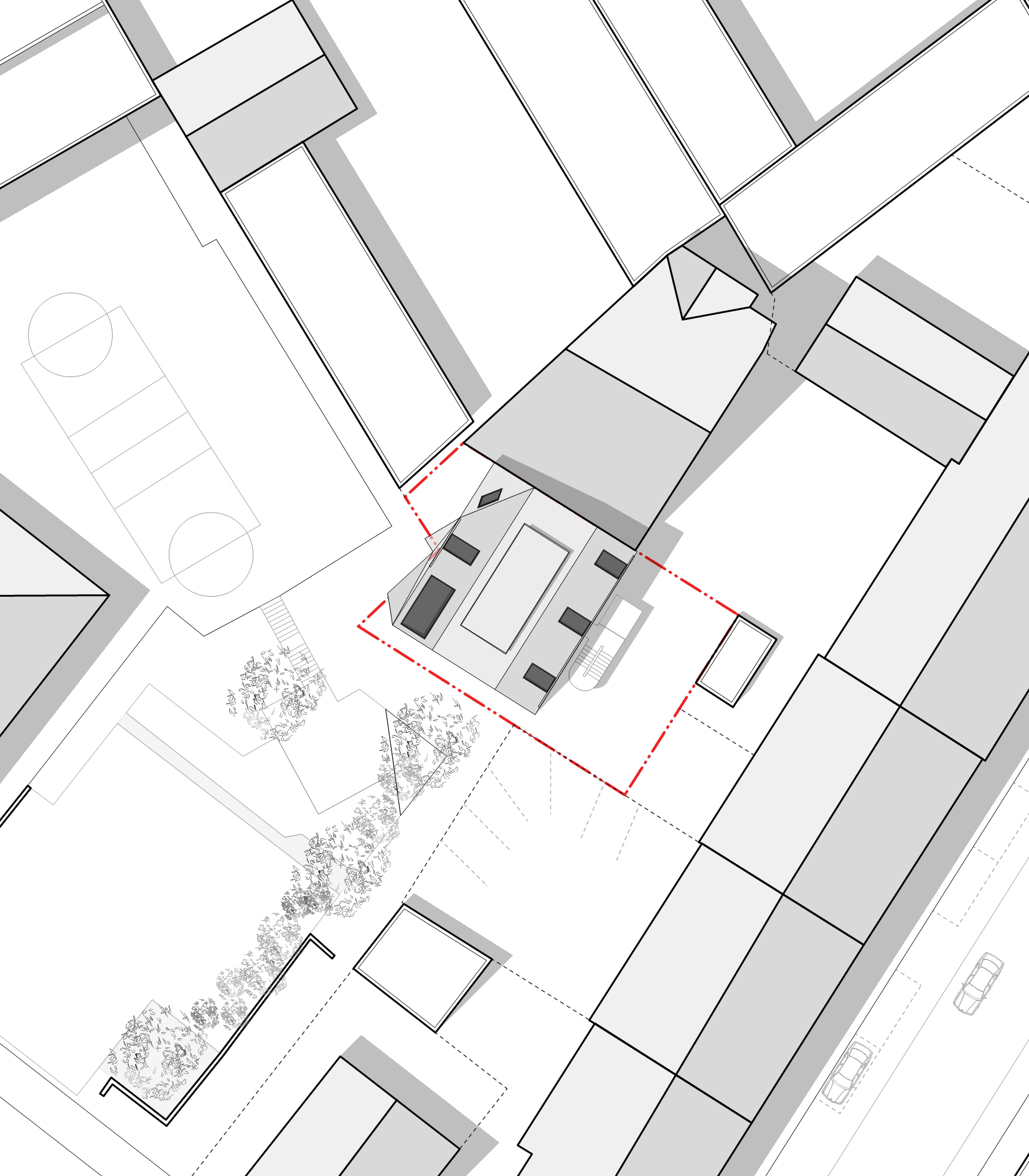
OS66.1 stands in a courtyard in the heart of Stuttgart, well-hidden behind a row of other buildings. The framework conditions were a simple, two-storey structure with a saddle roof. The building is flush with a neighbouring structure to the north.
The architects from g2o have transformed the simple masonry building into a crystalline monolith. They have added a wood-frame construction and completely covered all the faces in a neutral white. The façades and roof flow together nearly seamlessly. Windows set flush with the exterior complete the smooth impression and represent the first intervention in the energy-efficiency refurbishment project. Other measures included a new ventilation system with a heat-recovery system and solar collectors to store the heat.
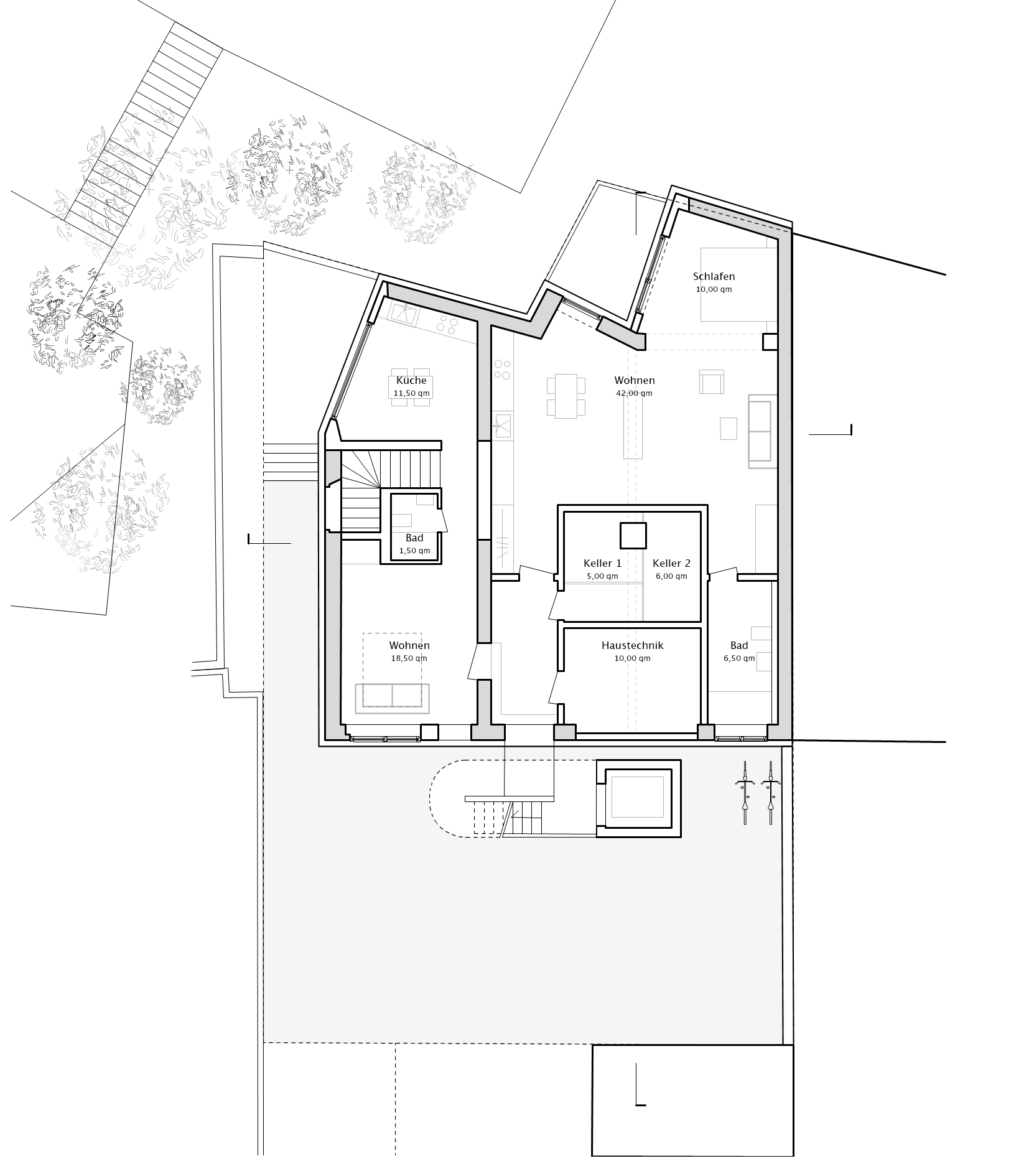
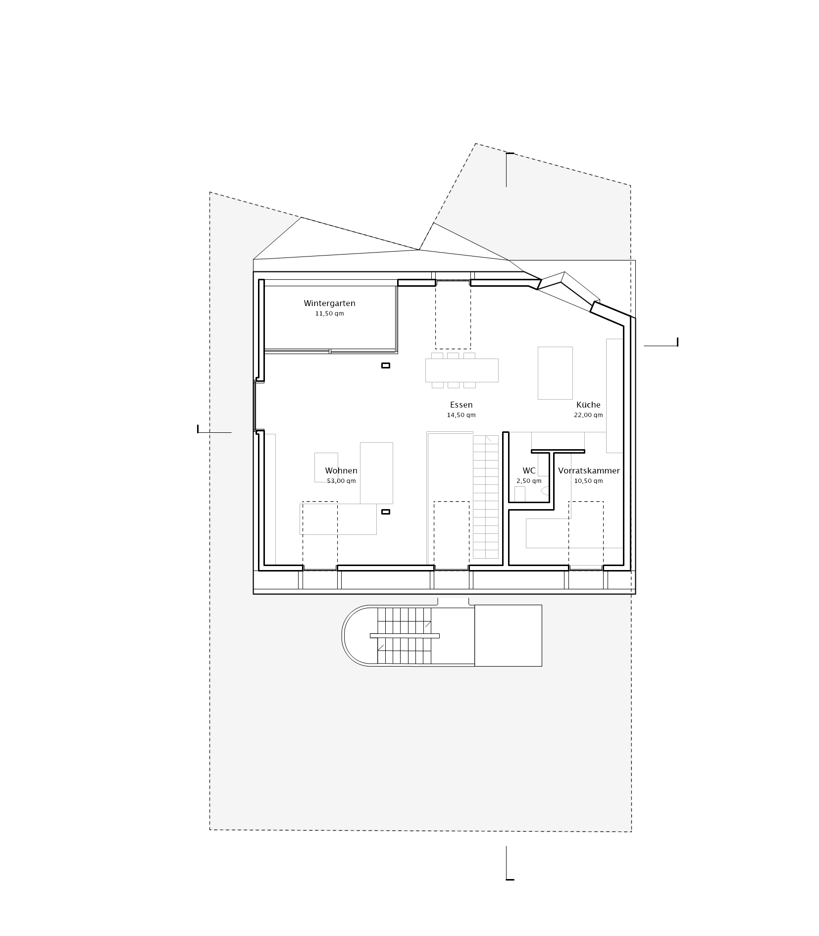
Over the course of the work, the access core of OS66.1 has moved outdoors. Visitors can reach all levels of the building via an open steel stairway on the southeast façade; this is topped off with a small platform on the roof. Apart from the architects’ offices, the spatial program encompasses three apartments as well as two one-room units.
g20 Architekten have given the interior of the building on Olgastrasse a fresh new look. New fittings, exposed concrete and white surfaces are as much part of the new line as soft pastel shades. In some places, the old brickwork has been left exposed; its rough character contrasts with the delicate vertical wooden slats that clad the ceilings and walls and create a pleasant living atmosphere.
The architects from g2o have transformed the simple masonry building into a crystalline monolith. They have added a wood-frame construction and completely covered all the faces in a neutral white. The façades and roof flow together nearly seamlessly. Windows set flush with the exterior complete the smooth impression and represent the first intervention in the energy-efficiency refurbishment project. Other measures included a new ventilation system with a heat-recovery system and solar collectors to store the heat.
Over the course of the work, the access core of OS66.1 has moved outdoors. Visitors can reach all levels of the building via an open steel stairway on the southeast façade; this is topped off with a small platform on the roof. Apart from the architects’ offices, the spatial program encompasses three apartments as well as two one-room units.
g20 Architekten have given the interior of the building on Olgastrasse a fresh new look. New fittings, exposed concrete and white surfaces are as much part of the new line as soft pastel shades. In some places, the old brickwork has been left exposed; its rough character contrasts with the delicate vertical wooden slats that clad the ceilings and walls and create a pleasant living atmosphere.





















