Rückgrat mit Struktur
Schulanlage in Zürich von Bollhalder Walser
Zur angrenzenden Wohnbebauung strukturieren eingeschnittene Höfe die Fassade. © Lukas Murer
Die neue Schulanlage an der Thurgauerstrasse setzt einen ersten baulichen Akzent im Entwicklungsgebiet Leutschenbach im Norden von Zürich. Das rund 65 000 m² große städtische Areal wird in den kommenden Jahren zu einem gemischt genutzten Quartierteil mit rund 800 gemeinnützigen Wohnungen, Angeboten für das Wohnen im Alter, Flächen für Gewerbe und Dienstleistungen sowie einem öffentlichen Park ausgebaut. Die Schule von Bollhalder Walser Architektur bildet den Auftakt dieser Transformation.


Der interne Boulevard im Erdgeschoss verbindet Kindergarten, Mensa und Kreativräume. © Lukas Murer
Ein Baukörper, zwei Seiten
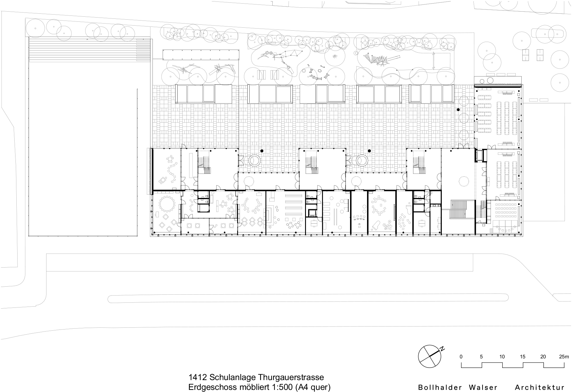
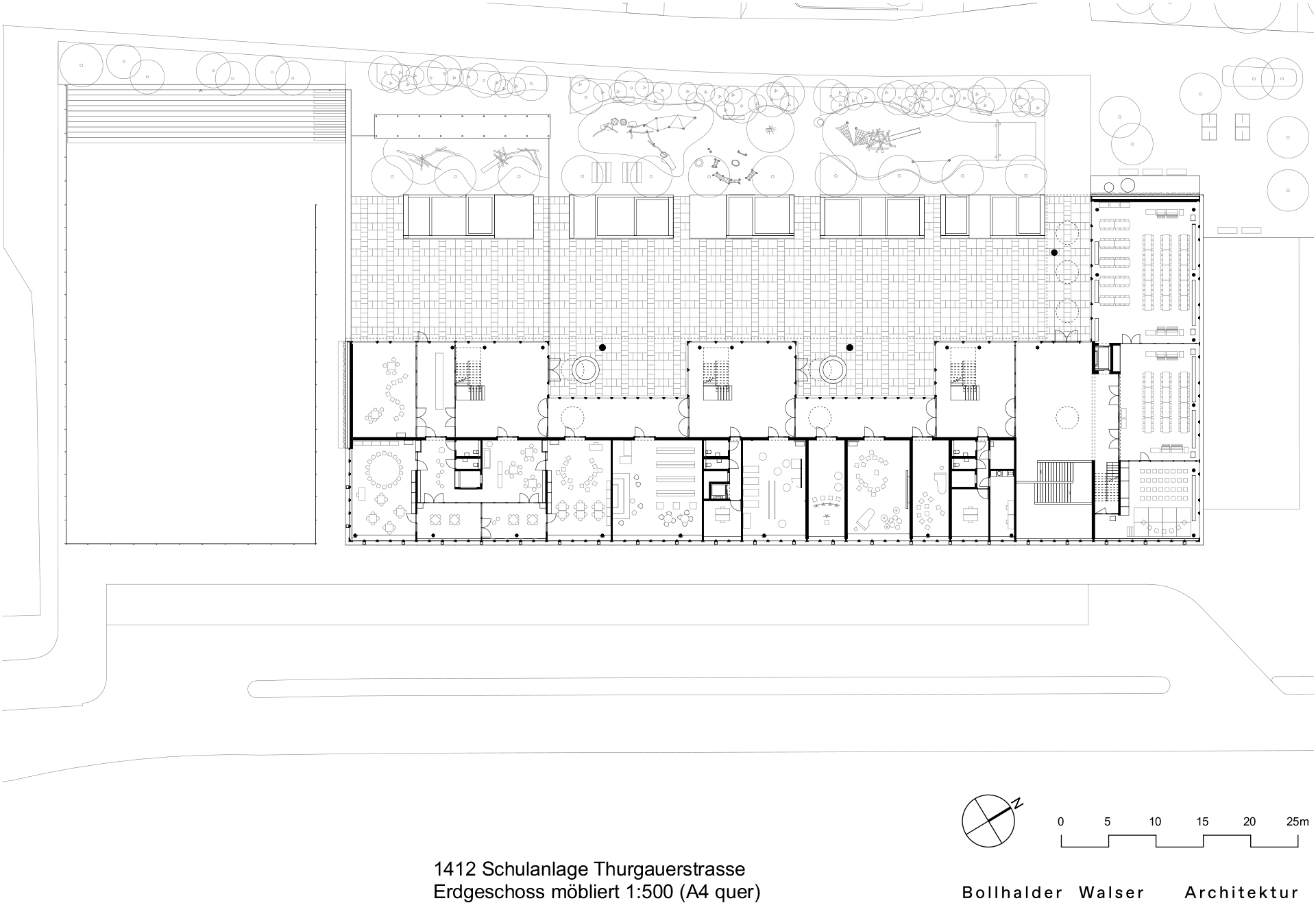
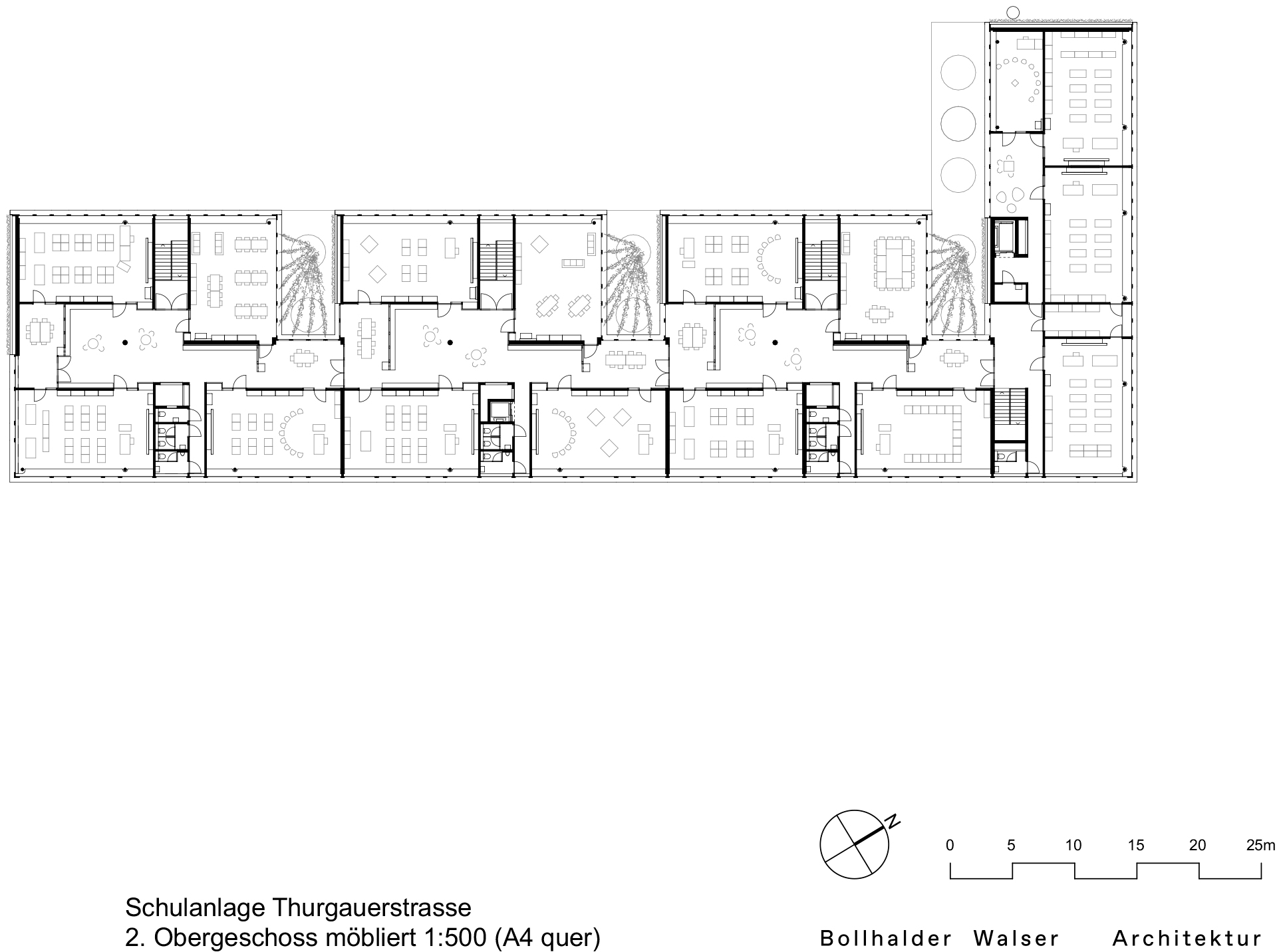
Die Tagesschule bietet Platz für rund 400 Kinder der Primarstufe. Auf einer Fläche von etwa 10 000 m² finden sich 18 Klassenräume, zwei Kindergärten, Mensa und Mehrzweckraum, Werkräume, eine Bibliothek, Räume der Musikschule sowie eine Doppelsporthalle im Sockelgeschoss. Außenflächen wie Pausen- und Sportplätze sowie ein Nutzgarten stehen außerhalb der Schulzeiten dem Quartier offen und binden die Schule in die künftige Parklandschaft ein. Das architektonische Rückgrat des Projekts bildet ein 90 m langer, L-förmiger Baukörper. Entlang der Thurgauerstrasse setzt er eine klare Raumkante zu den großmaßstäblichen Gebäuden des Entwicklungsgebiets. Auf seiner Rückseite vermittelt das Schulhaus zur topografisch höher liegenden, kleinteiligen Wohnbebauung: Das Volumen ist hier kleinteilig gestaffelt, öffnet sich zu den Aufenthalts- und Spielflächen und schafft einen geschützten, vielfältig nutzbaren Außenraum zwischen Schule und Quartierstraße. Eingeschnittene Höfe strukturieren die Fassade; die vorspringenden Baukörper spiegeln die Organisation der Cluster nach außen wider und brechen das Gebäude auf einen kindgerechten Maßstab.


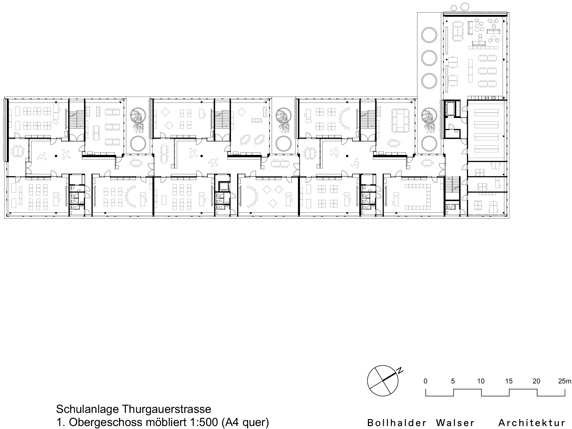
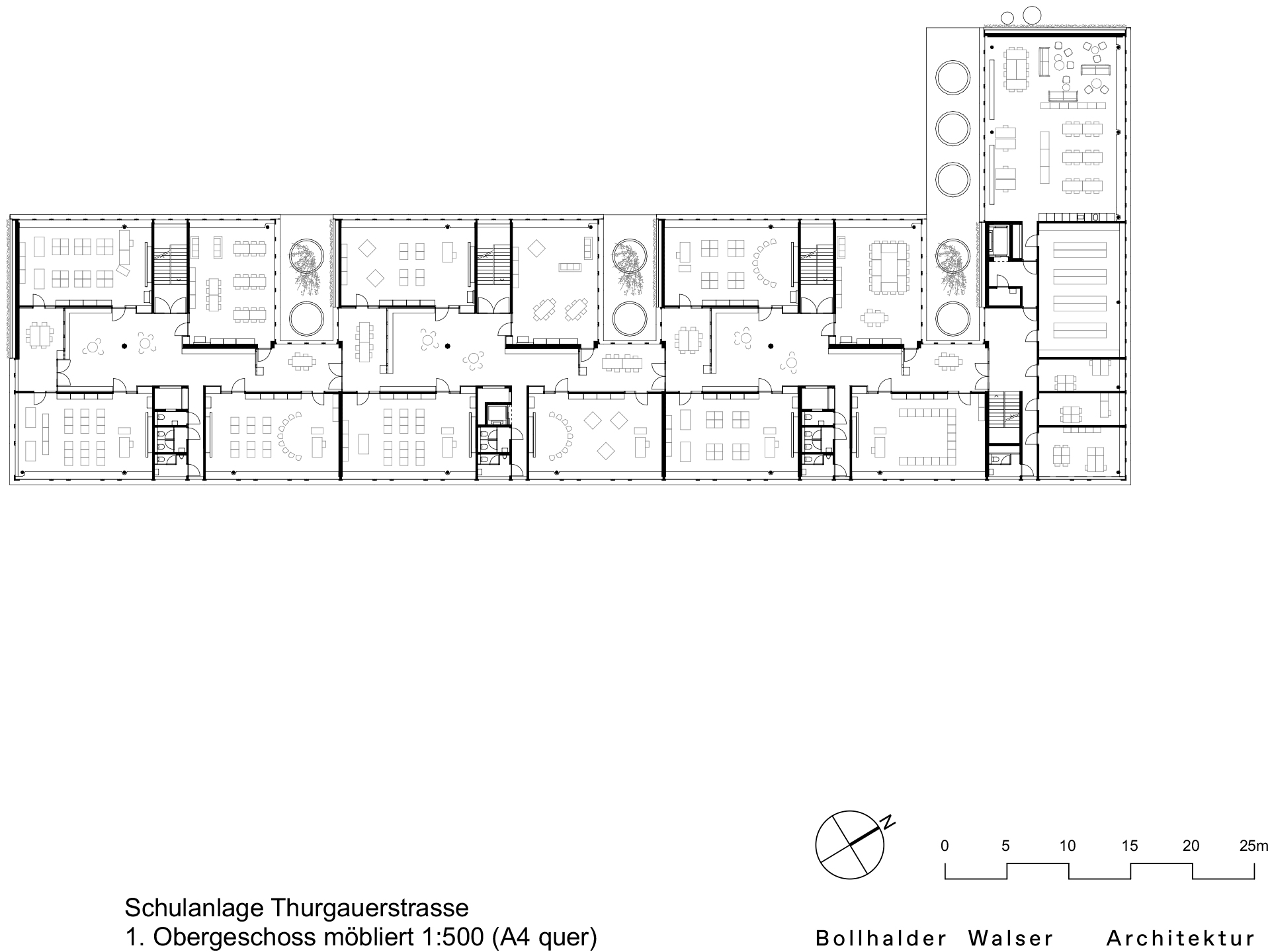
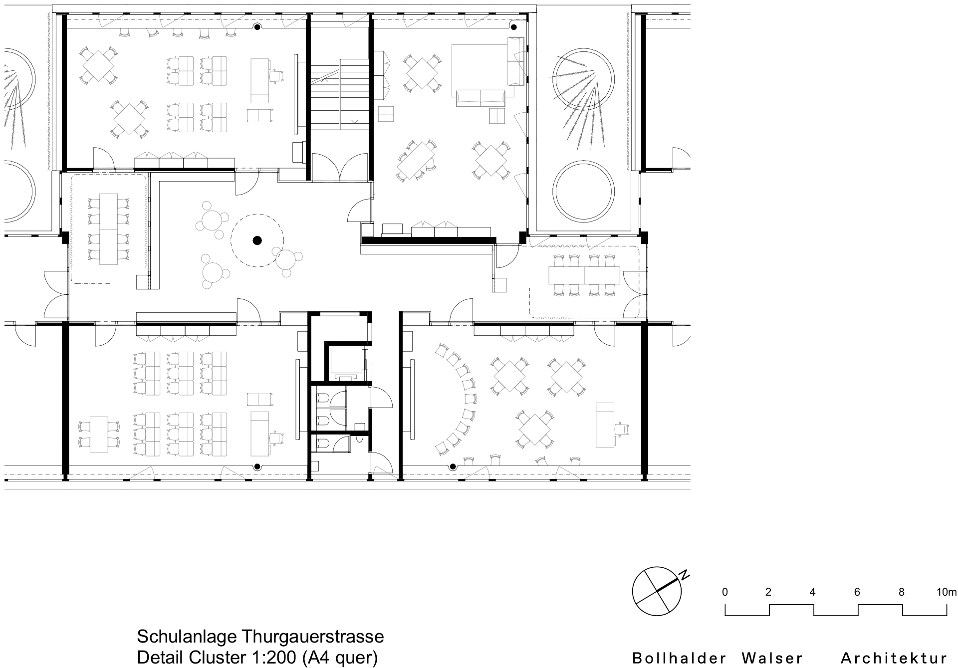
Die einzelnen Schulcluster gruppieren sich jeweils um eine gemeinsame Mitte. © Lukas Murer
Flexibel nutzbare Lernumgebung
Im Erdgeschoss öffnet sich die Schule zum Park: Kindergarten, Mensa und Mehrzweckraum liegen gut sichtbar und ermöglichen vielfältige Bezüge zwischen innen und außen. Zusammen mit der Bibliothek und den Musikräumen bilden sie eine Art internen „Boulevard“. In den beiden Obergeschossen orientieren sich die sechs Cluster um großzügige Raumaufweitungen, die als Lernlandschaften, Garderoben und Begegnungsbereiche genutzt werden. Durch gruppenweise Anordnung und die Möglichkeit der horizontalen Verbindung entsteht eine offene, flexible Lernumgebung. Der parkseitige Trakt nimmt Handarbeits- und Therapieräume sowie die Bereiche für Schulleitung und Personal auf und verfügt über eine eigene Erschließung.


Treppenaufgang, © Lukas Murer


Klassenzimmer, © Lukas Murer
Photovoltaik hinter Polycarbonat
Eine zentrale Rolle spielt der begrünte Außenraum. Rankgerüste und vertikale Bepflanzungen an den Stirnfassaden sowie begrünte Höfe unterstützen den ökologischen Ausgleich im dicht beplanten Quartier. Das extensiv begrünte Dach wirkt sowohl ökologisch als auch visuell in den umliegenden Stadtraum hinein. Besonderes Augenmerk gilt der Fassadengestaltung: Die regelmäßige Bandfassade ermöglicht die Integration von Photovoltaikmodulen hinter Polycarbonatplatten. Die semitransparente Oberfläche verleiht dem Gebäude je nach Licht eine wechselnde Erscheinung und macht dessen energetische Strategie subtil ablesbar. Die Anlage deckt den Eigenverbrauch zu rund 50 % und erfüllt den Minergie-P-Eco-Standard.
Architektur: Bollhalder Walser Architektur
Bauherr: Stadt Zürich
Standort: Thurgauerstrasse 55, 8052 Zürich (CH)
Tragwerksplanung: Borgogno Eggenberger + Partner
Landschaftsplanung: Pauli Stricker Landschaftsarchitekten
Elektroplanung: Walter Salm, Meiuer & Partner
HKLS-Planung: Wirkungsgrad Ingenieure
Gebäudeautomationsplanung: Boxler Enginbeering
Bauphysik: Bakus
Baukosten: 53,5 Mio CHF





















