Bildungsensemble für die Zukunft
Schulbau in der Normandie von Hemaa Architectes
© Sergio Grazia
Lorem Ipsum: Zwischenüberschrift
Hemaa Architectes entwerfen mit Les Coteaux Fleuris eine Schule in der normannischen Gemeinde Heudebouville. Inspiriert von Architektur und Materialien der Region entsteht ein archetypischer Neubau. Die Planer gestalten das Bildungsensemble nach dem Vorbild der „Longères“ – langgezogenen, eingeschossigen Häusern mit charakteristischem Satteldach. Diese Bautypologie findet man vor allem in ländlichen Gebieten im Nordwesten Frankreichs.


© Sergio Grazia
Lorem Ipsum: Zwischenüberschrift
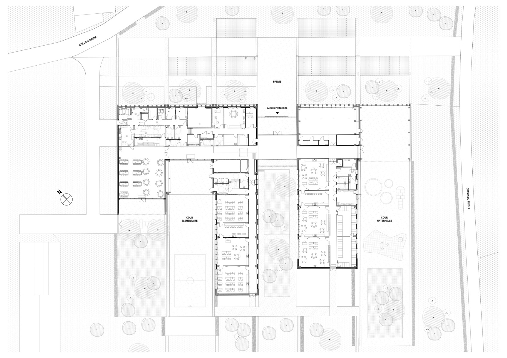
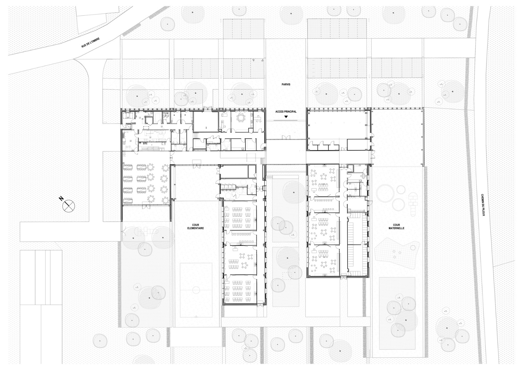
In unmittelbarer Nähe der Seine fügt sich das neue Bildungsgebäude am Rande des Dorfes in die Landschaft ein. Die Architekten teilen das Grundstück in sechs längliche Streifen. Auf fünf von ihnen entstehen parallel positionierte Baukörper. Im Zentrum bleibt ein Abschnitt frei. Hier markiert im vorderen Teil ein kompaktes Volumen den Zugang zur Schule. Dahinter lädt eine Grünfläche ins Freie ein.
Lorem Ipsum: Zwischenüberschrift
Während die Längsansichten der schmalen Gebäudeflügel größtenteils geschlossen sind, öffnen sie sich in Querrichtung mit großen Verglasungen nach draußen. Zum Vorplatz hin schließen sich die einzelnen Häuser zu einer gemeinsamen Hauptfassade zusammen, welche von mächtigen, vertikalen Holzlamellen rhythmisiert wird.


© Sergio Grazia
Lorem Ipsum: Zwischenüberschrift
An der Rückseite ergeben sich durch die unterschiedlichen Längen der einzelnen Komplexe vielfältige Außenbereiche. Neben Pausenhöfen gibt es Spielplätze und kleine Gärten mit Hochbeeten. Den oberen Abschluss der Trakte bilden flache Giebeldächer. Sie sind – wie viele Bauten in dem Ort – in dunklen Schiefer gekleidet, der sich über die Wände weiterzieht.


© Sergio Grazia
Lorem Ipsum: Zwischenüberschrift
Das Planerteam denkt nicht nur an heute, sondern auch an morgen. Dank der Konstruktion aus vorgefertigten Holzmodulen lassen sich Klassenräume, Cafeteria und Gemeinschaftsflächen der Schule bei steigendem Platzbedarf flexibel erweitern und anpassen. Vom Bauprozess bis hin zum Betrieb achtet man außerdem auf Nachhaltigkeit: Lokale Materialien und regionale Bauunternehmen minimieren Transportwege. Photovoltaikpaneele und ein Heizsystem ohne fossile Brennstoffe reduzieren den CO2-Fußabdruck der Les Coteaux Fleuris Schule.
Architektur: Hemaa Architectes
Bauherr: Gemeinde Heudebouville
Standort: Rue de l'Ombre, 27400 Heudebouville (FR)






















