Pastellfarbenes Beton-Trio
Schule bei Lausanne von GNWA
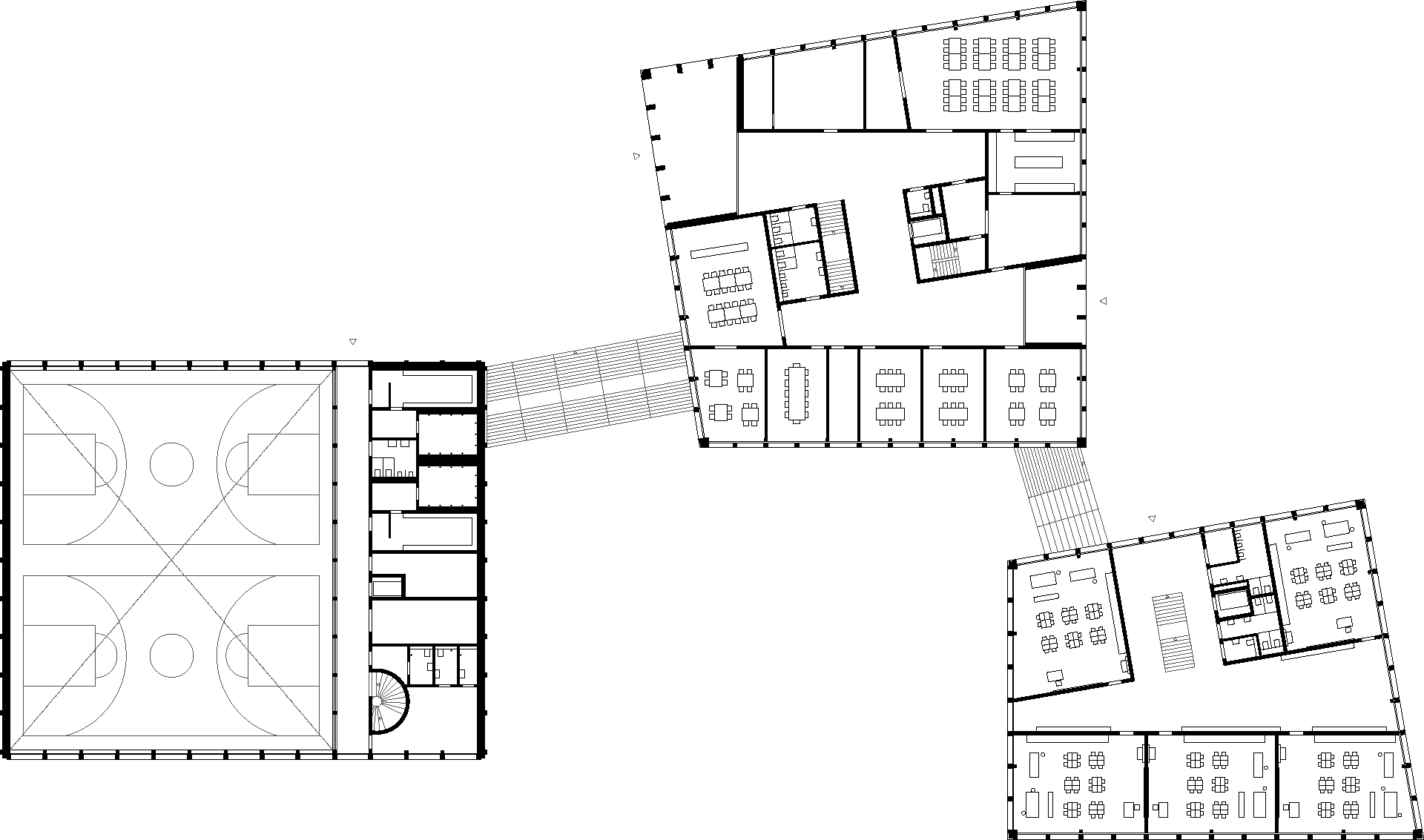
Das dreiteilige Schulensemble organisiert sich auf mehreren Niveaus rund um einen zentralen Platz. © Rasmus Norlander
Im Mittelpunkt der neuen Schulanlage in Bussigny von GNWA steht ein öffentlicher Platz. Er fasst Grundschule, Kindergarten und Sporthalle zusammen und dient als Treffpunkt für die 10 000-Einwohner-Gemeinde.


Sanfte Pastelltöne heben die vorgefertigten Betonfassaden der einzelnen Trakte voneinander ab. © Federico Farinatti
Ensemble auf mehreren Niveaus
Bussigny liegt rund 7 km nordwestlich von Lausanne im Schweizer Kanton Waadt. Für den Entwurf der Schulanlage orientierte sich das Züricher Büro GNWA an der vorhandenen Topografie. Auf mehreren Ebenen entwickelten sie drei separate Volumen: die mittig positionierte, dreigeschossige Schule, ein kleinerer Kindergarten im Süden sowie eine zweistöckige Sporthalle. Rundherum entstehen parkähnliche Grün- und Freiräume.
Gemeinschaftliche Mitte
Verbunden werden die einzelnen Bestandteile des Bildungsensembles von breiten Außentreppen, Pfaden und einem gemeinschaftlichen Platz, den das Planerteam als Agora bezeichnet. Diese fungiert nicht nur als großzügiger Pausenhof für die Schülerinnen und Schüler, sondern steht auch den Bewohnern von Bussigny zur Verfügung – selbst einige der Räume können von der Nachbarschaft genutzt werden. Die Eingänge der einzelnen Trakte sind jeweils an den Ecken positioniert. Dort öffnen sich die einzelnen Gebäude in Form von Kolonnaden zum Hof und schaffen geschützte Empfangsbereiche.


Die rosa, grün und grau gehaltenen Fensterrahmen bringen einen Hauch Farbe in die minimalistischen Innenräume. © Rasmus Norlander
Auflockerung durch Farbe
Alle drei Baukörper sind in Beton ausgeführt. Das regelmäßige Raster der vorgefertigten Fassadenelemente verleiht den Ansichten einen schlichten, einheitlichen Charakter. Jedes der Gebäude erhält mit einem anderen Farbton seine eigene Identität. Mit Rosa, Grün und Grau entschieden sich die Architekten für zarte Pastelltöne.


Sichtbeton im Innenraum, © Federico Farinatti


Fensterrahmen und Jalousien haben den gleichen Farbton wie die pigmentierten Betonoberflächen. © Federico Farinatti
Dieses Konzept setzte man konsequent um: Fensterrahmen und Jalousien erhielten den gleichen Farbton wie die pigmentierten Betonoberflächen. Selbst in den schlicht gestalteten Innenräumen der Schulanlage setzt sich der Farbcode dezent fort und schafft in Kombination mit Sichtbeton und funktionalen Böden sanfte Akzente.
Architektur: GNWA – Gonzalo Neri & Weck Architekten
Bauherr: Gemeinde Bussigny
Standort: Bussigny (CH)
Bauingenieur: Muttoni et Fernández, Ingénieurs Conseils
Landschaftsarchitektur: L’Atelier du Paysage
HKLS-Planung: Energa
Elektroplanung: Bréa Ingénieurs Conseils, srg engineering Schumacher & CHIngS Ingénieurs
Akustik: d’Silence acoustique
Brandschutz: PluriExpert
Bauphysik: Energa
Lichtplanung: Aebischer & Bovigny


















