Unkonventionell organisiert
Schule in Berlin von Numrich Albrecht Klumpp
© Adel Bikulov
Numrich Albrecht Klumpp Architekten entwerfen in Berlin Mitte die Grundschule am Nordhafen. Sie stapeln die Funktionen übereinander und schaffen neben qualitativem Bildungsraum einen urbanen Hingucker. Der Neubau ist ein Solitär mit sechs Geschossen, er folgt den Fluchten der historischen Gebäude an der Chausseestraße. Mit seiner kompakten Kubatur schirmt er den Pausenhof vom Verkehrslärm ab und dockt in südlicher Richtung über eine Brücke an den bestehenden Schultrakt an.


Die Grundschule ist ein Solitär mit sechs Geschossen. © Adel Bikulov
Gestapelte Funktionen
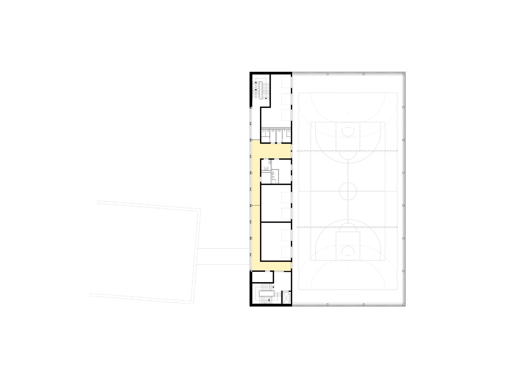
Um den begrenzten Stadtraum optimal auszunutzen, entscheidet sich das lokale Planerteam für eine unkonventionelle Maßnahme: Es setzt die Sporthalle oben auf die Grundschule. Diese Anordnung spiegelt sich auch in den Ansichten wider, die sich aus drei Schichten zusammensetzen. Während der Sockelbereich und der oberste Teil in Sichtbeton ausgeführt sind, hebt sich der mittlere Abschnitt mit diversen Einschnitten deutlich ab. Ihn kleiden vertikale Lamellen, die mit ihrer bunten Farbgebung Bezug auf den Bestand nehmen.
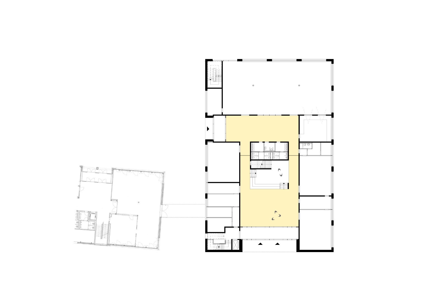
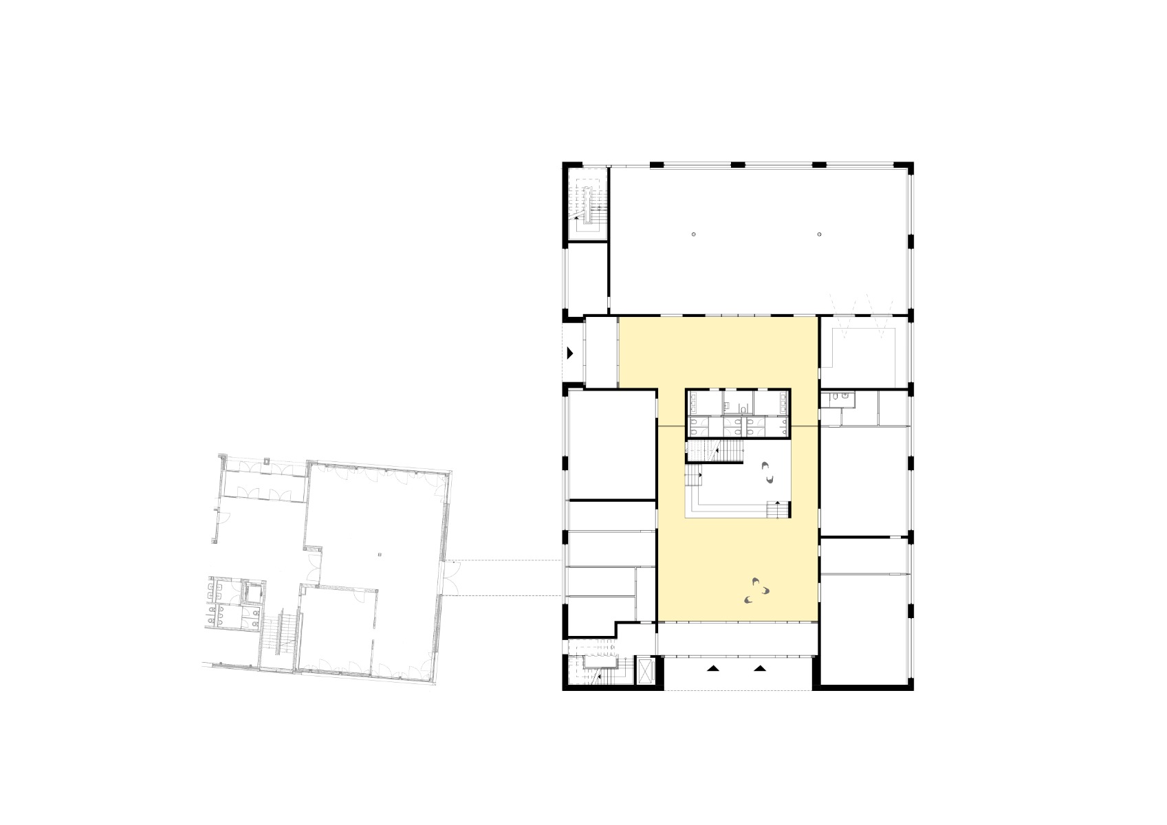
Zentrales Foyer
Die unteren vier Geschosse der Grundschule am Nordhafen sind rund um ein zentrales Foyer mit offener Treppe angeordnet. Sämtliche Zirkulationsflächen schließen galerieartig an die gemeinsame Mitte an. Im Eingangsniveau und dem ersten Stock befinden sich Mensa, Fachräume und Verwaltung.


Zentrales Foyer, © Adel Bikulov
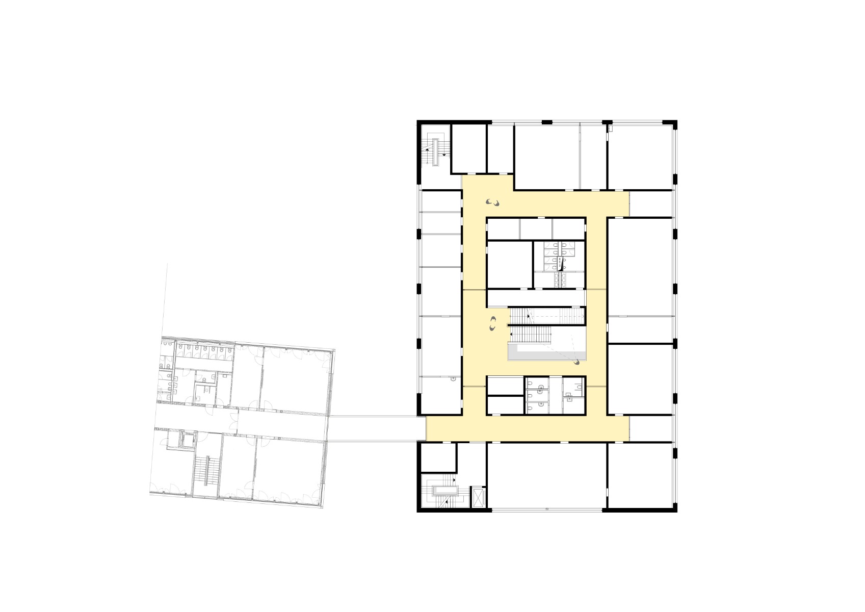
Die darüberliegenden beiden Etagen sind jeweils in vier Cluster mit einem kollektiven Forum unterteilt. In der gesamten Schule kontrastieren warme Holzoberflächen aus heimischer Fichte und Kiefer mit dem rohen Sichtbeton. Auch das Gelb der Außenansichten taucht in Form von Farbakzenten immer wieder auf und verwandelt den Bildungsbau in einen kindgerechten Ort.


Die kompakte Kubatur des Neubaus schirmt den Pausenhof vor Verkehrslärm ab. © Adel Bikulov


Gelbe Farbakzente im Innenraum, © Adel Bikulov
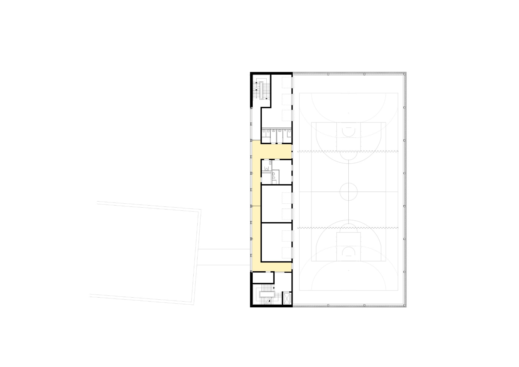
Separate Erschließung
Den oberen Abschluss bildet die Sporthalle, deren Maße den Architekten als Grundlage für die Schule dienten. Sie verfügt – aufgrund der externen Nutzung durch Vereine – über eine separate Erschließung. Über den seitlich positionierten Geräteräumen sind die Umkleiden sowie eine Zuschauergalerie untergebracht. Durch ein Bandfenster wird der Turnsaal von Norden blendfrei belichtet und bietet dank Oberlichtern die Möglichkeit zur Querlüftung.
Architektur: Numrich Albrecht Klumpp Architekten
Bauherr: Senatsverwaltung für Stadtentwicklung und Wohnen
Standort: 10115 Berlin (DE)
Tragwerksplanung: Pichler Ingenieure
TGA-Planung: W33 Ingenieurgesellschaft
Außenanlagen: Kubus Freiraumplanung
Brandschutzplanung: Tim Janowitz
Bruttogrundfläche: 7707 m²






















