Blockhaus im XXL Format
Schule und Gemeindezentrum von AOR Architects
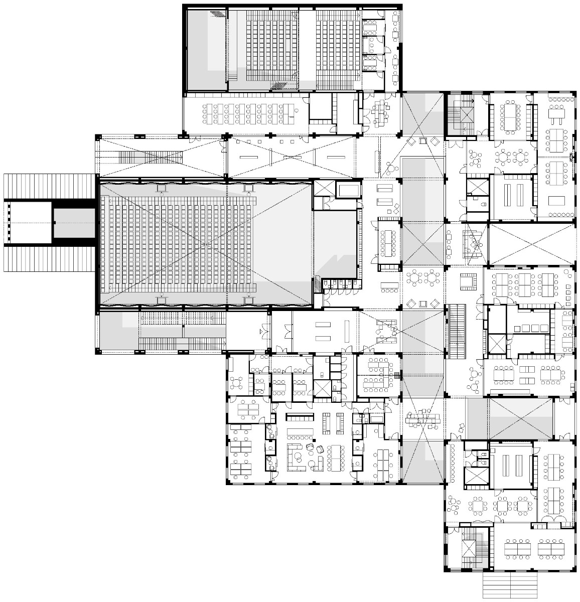
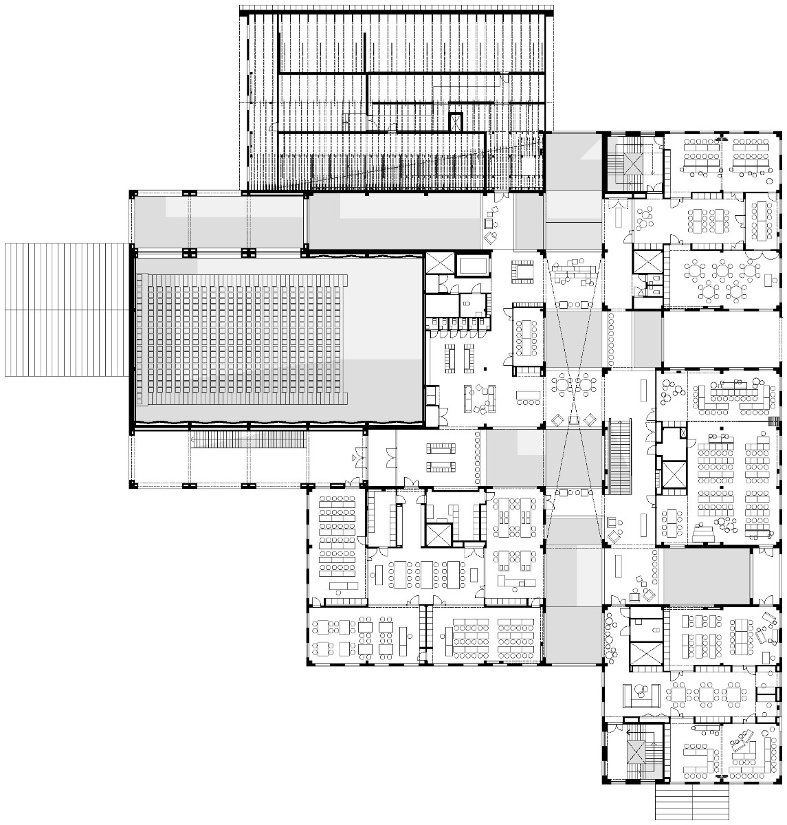
Mehrgeschossige Erschließungsachsen durchziehen das Haus und stiften Orientierung. Die Konstruktion aus 275 mm dickem Leimholz ist den Wänden deutlich anzusehen. © Kuvatoismisto Kuvio
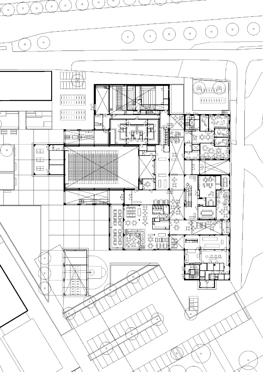
Die finnische Gemeinde Tuusula liegt in unmittelbarer Nähe des Helsinkier Flughafens Vantaa und zählt heute 40 000 Einwohner. Auf das weitläufige Gemeindegebiet verteilen sich drei Siedlungskerne, von denen Hyrylä der weitaus größte ist. Dort gab es von alters her ein weitläufiges Kasernengelände in Zentrumsnähe, das derzeit zum Wohngebiet umgebaut wird. Hier hat das junge Architekturbüro AOR das neue, multifunktionale Gemeindezentrum Monio geplant. Es vereint eine allgemeinbildende Schule, eine Volkshochschule sowie Schulen für Musik und Kunst und das Kulturbüro der Gemeinde unter seinen zahlreichen Dächern.


Knapp 9000 m² Bruttogrundfläche sind im Gebäude unter fünf Giebeln vereint. Die Baukosten betrugen rund 33 Millionen Euro. © Kuvatoismisto Kuvio
Tradition der Kasernengebäude fortgeführt
Das großvolumige, durch mehrere Satteldächer gegliederte Bauvolumen lehnt sich an die vorhandene Bebauung auf dem Kasernenareal an. In seinem Inneren entwarfen die Architekten ein flexibel nutzbares Raumprogramm aus Klassenzimmern, Büroräumen und zwei Veranstaltungssälen. Hinzu kommen ein Café und eine Galerie, die allen Bürgern offenstehen. Alles in allem umfasst Monio knapp 9000 m² Bruttogrundfläche und kostete etwas mehr als 33 Millionen Euro.


Die Turnhalle ist auch für Veranstaltungen nutzbar. Ihre gefalteten Ziegelwände sind schalltechnisch optimiert. © Kuvatoismisto Kuvio
Blockhaus mit hybridem Tragskelett
Ungewöhnlich ist auch die Konstruktion des Neubaus: Sie basiert auf einem hybriden Tragskelett, das je nach Anforderung an die unterschiedlichen Räume aus Betonfertigteilen, Stahlträgern und Brettschichtholz besteht. Als Geschossdecken verwendeten die Architekten Massivholzelemente. Die nicht tragenden Innen- und Außenwände bestehen aus 275 mm starken, kreuzverleimten Massivholzbalken, die wie in einem Blockhaus übereinandergeschichtet und an den Ecken verzahnt sind. Der Blockbau hat in der Region eine jahrhundertealte Tradition, wurde bisher jedoch vor allem an Privathäusern praktiziert. Nun überführt Monio das Bauprinzip in eine neue Größenordnung: Mit seinen drei Geschossen ist der Neubau das bisher größte Blockhaus in Finnland. Die Balken sind nach Angaben der Architekten so bemessen, dass sie selbst in den Außenwänden keine zusätzliche Dämmschicht benötigen.
Architektur: AOR Arkkitehdit
Bauherr: Gemeinde Tuusula
Standort: Pataljoonantie 6 C, 04300 Hyrylä (FI)
Innenarchitektur: Haptik
Tragwerksplanung: A-Insinöörit Suunnittelu
Landschaftsarchitektur: Maisema-arkkitehtitoimisto Näkymä
HLS-Planung: Sitowise
Elektroplanung: Ramboll Finland
Brandschutzplanung: KK-Palokonsultti
Bauunternehmen: Lujatalo























