XXL log cabin
School and Community Centre by AOR Architects
Multi-storey access routes run through the house to help you find your way around. The 275 mm-thick glued laminated timber construction is clearly visible in the walls. © Kuvatoismisto Kuvio
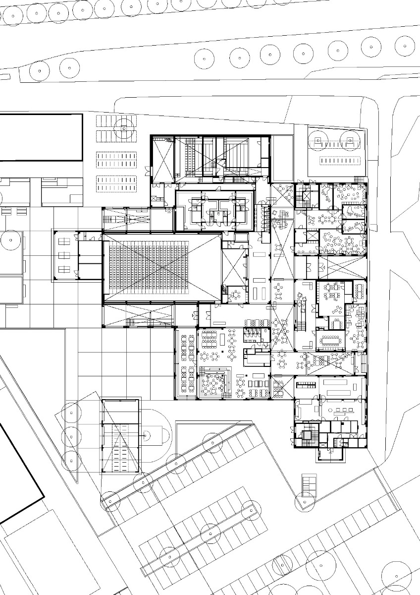
Tuusula, the Finnish municipality in which the centre is located, is situated in close proximity to Helsinki's Vantaa Airport and currently has a population of 40 000. The municipal area is characterised by the presence of three settlement centres, of which Hyrylä is the most substantial in terms of size. There has always been a large barracks area near the centre which is currently being converted into a residential area. It is here that the young architectural firm AOR has designed the new, multifunctional Monio community centre. It houses a general school, an adult education centre, music and art schools, and the municipality's cultural office.


The building has a gross floor area of almost 9000 m² under five gables. Construction costs amounted to around 33 million euros. © Kuvatoismisto Kuvio
The tradition of barracks buildings continues
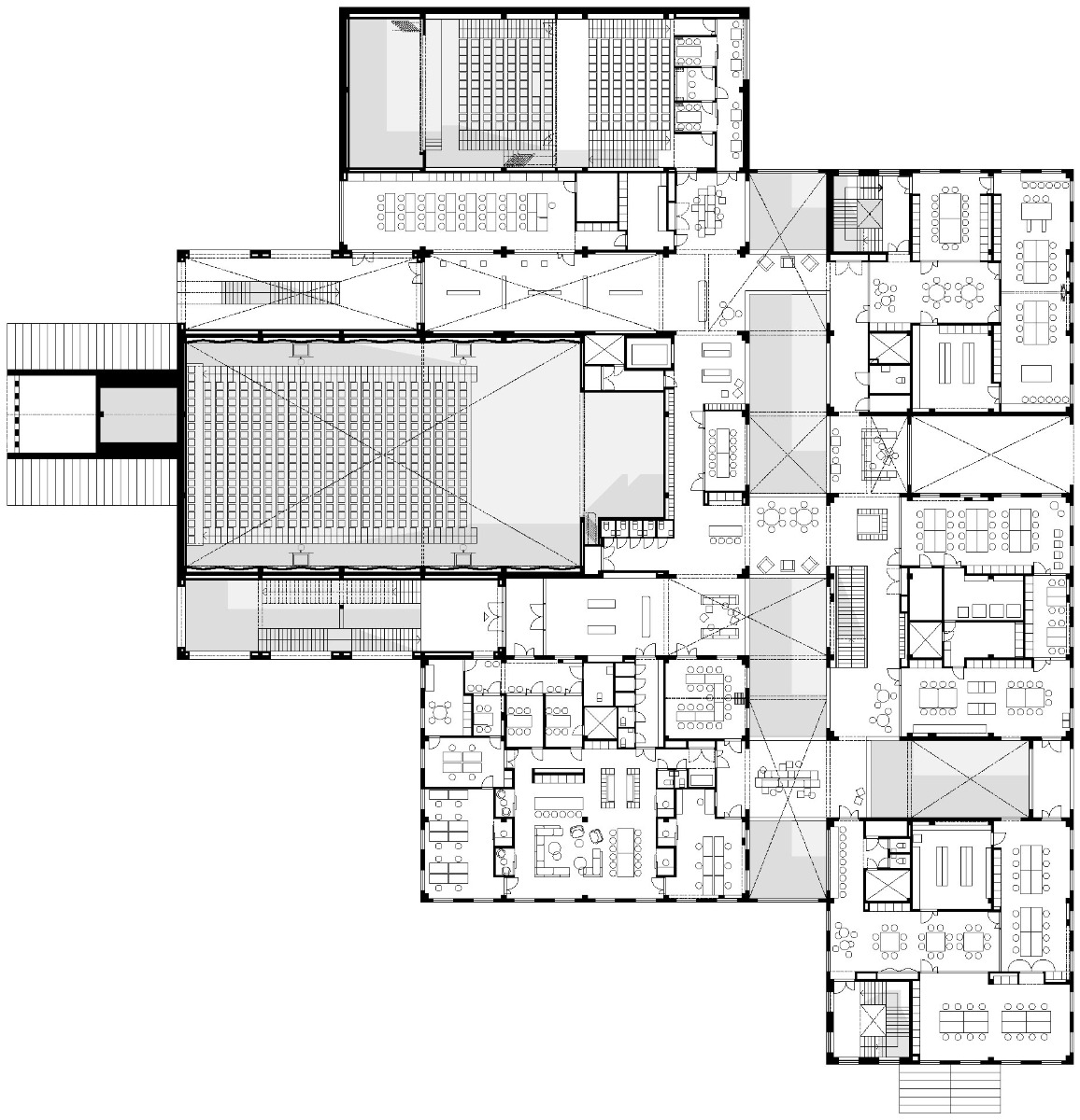
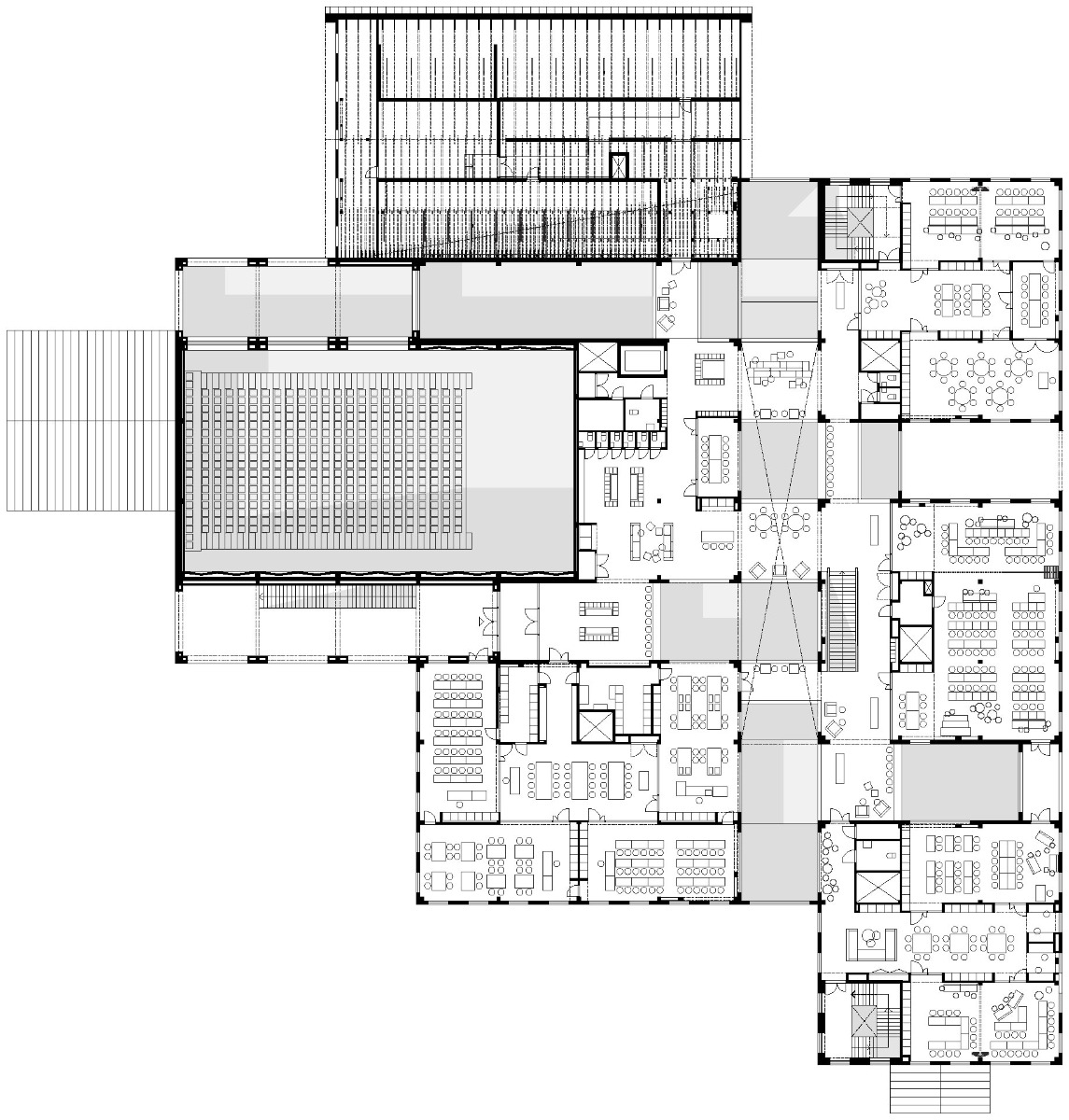
This large-scale building is divided by several gabled roofs and is based on the existing barracks buildings. Inside, the architects have designed flexible spaces comprising classrooms, offices, and two event halls. There is also a café and a gallery, both of which are open to all residents. Monio covers a total of almost 9000 m² of gross floor space and cost just over 33 million euros to build.


The gymnasium can also be used for events. Its folded brick walls are optimised for sound insulation. © Kuvatoismisto Kuvio
Log cabin with a hybrid supporting structure
The construction of the new building is also unusual, as it is based on a hybrid supporting structure consisting of precast concrete elements, steel beams, and glued laminated timber — the specific combination of materials used depends on the requirements of the different rooms. The architects used solid wood elements for the floor slabs. The non-load-bearing interior and exterior walls consist of cross-laminated solid wood beams that are 275 mm thick and stacked on top of each other like in a log cabin, with the corners interlocking. Log construction has a centuries-old tradition in the region, but has so far mainly been used for private houses. Monio is now taking this construction principle to a new level: at three storeys high, the new building is the largest log house in Finland to date. According to the architects, the dimensions of the beams mean that they do not require additional insulation, even in the exterior walls.
Architecture: AOR Arkkitehdit
Client: Gemeinde Tuusula
Location: Pataljoonantie 6 C, 04300 Hyrylä (FI)
Interior design: Haptik
Structural engineering: A-Insinöörit Suunnittelu
Landscape architecture: Maisema-arkkitehtitoimisto Näkymä
HVAC planning: Sitowise
Electrical planning: Ramboll Finland
Fire prevention planning: KK-Palokonsultti
Contractor: Lujatalo























