// Check if the article Layout ?>
Schutz und Offenheit: Universitätsbibliothek in Villetaneuse
Foto: Luc Boegly
Der Campus Villetaneuse weit im Norden von Paris ist einer von drei Standorten der Ende der 60er-Jahre gegründeten Universität Paris XIII. Städtebaulich verkörpert er das Ideal jener Zeit: eine funktional gegliederte Wissenschaftsstadt außerhalb des bestehenden Siedlungsgebiets, aber auch ohne rechte Anbindung an die umliegenden Ortschaften.
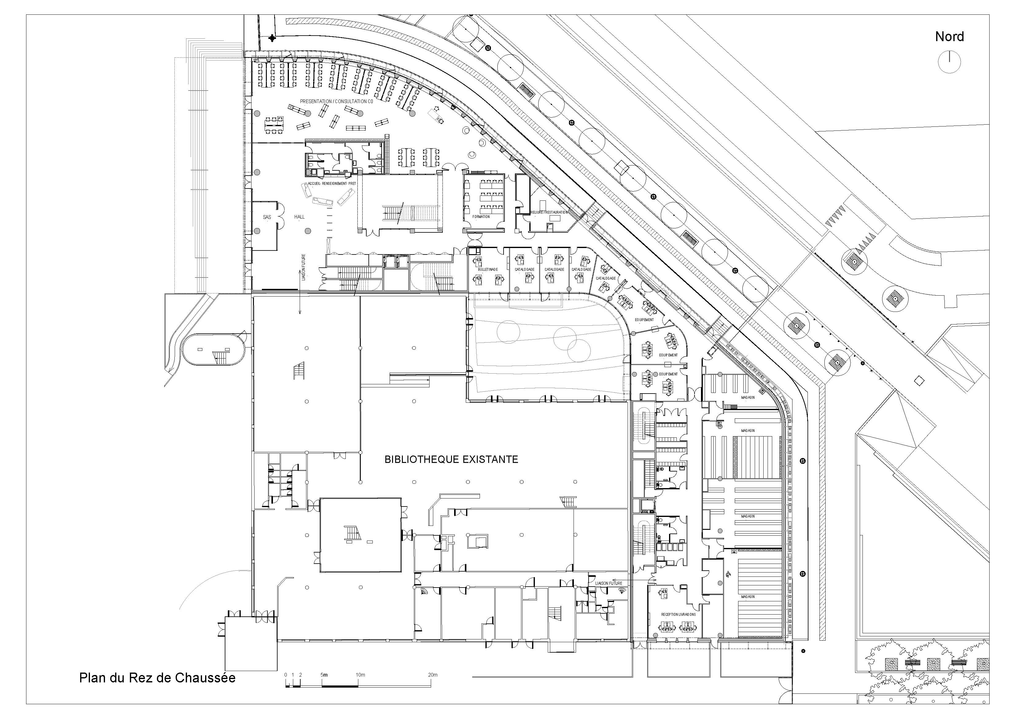
Mit der jetzt begonnenen Neuordnung des Campusgeländes will die Region Ile-de-France dieses Manko beheben. Eine neue Tramlinie erschließt seit einiger Zeit das Universitätsgelände. Im Frühjahr 2018 wurde auch die von Ropa & Associés erweiterte Universitätsbibliothek eingeweiht und nach dem französischen Soziologen Edgar Morin benannt. Sie setzt indes eher ein Zeichen der Erneuerung als der Öffnung: Mit schützender Geste legt sich der drei- bis viergeschossige Anbau um das Bestandsgebäude. Seine gekrümmte Fassade mit den senkrecht ausgestellten Brise-soleils verleiht dem Gebäude Glanz und Wertigkeit, signalisiert zugleich aber eher Abschottung nach außen. Der hohe Stahlstaketenzaun, der das Campusgelände umgibt, spricht die gleiche Sprache.
Sehr viel offener zeigt sich die Bibliothek hingegen an der Eingangsseite im Westen sowie in ihrem Inneren. Der weit auskragende Lesesaal im dritten Obergeschoss sendet eine unmissverständliche Willkommensgeste aus. Er ist ebenso wie die gesamte Eingangsfront voll verglast. Im Gebäudeinneren verbinden zahlreiche mehrgeschossige Lufträume die Ebenen – nicht nur im zentralen Erschließungsatrium, sondern auch an den beiden Gebäudeenden. Sie sind Teil einer Strategie der Architekten, mit der sie die Nutzer zum Durchwandern der Räume animieren wollen. Als Begegnungszonen gestaltete Treppenläufe und ein großzügiges Tageslichtangebot durch das Sheddach und die Glasfassaden tragen ebenfalls ihren Teil dazu bei.
Die Ende der 60er-Jahre gegründete Universität Paris XIII verteilt sich auf drei Standorte weit im Norden der französischen Hauptstadt.
Mit der jetzt begonnenen Neuordnung des Campusgeländes will die Region Ile-de-France dieses Manko beheben. Eine neue Tramlinie erschließt seit einiger Zeit das Universitätsgelände. Im Frühjahr 2018 wurde auch die von Ropa & Associés erweiterte Universitätsbibliothek eingeweiht und nach dem französischen Soziologen Edgar Morin benannt. Sie setzt indes eher ein Zeichen der Erneuerung als der Öffnung: Mit schützender Geste legt sich der drei- bis viergeschossige Anbau um das Bestandsgebäude. Seine gekrümmte Fassade mit den senkrecht ausgestellten Brise-soleils verleiht dem Gebäude Glanz und Wertigkeit, signalisiert zugleich aber eher Abschottung nach außen. Der hohe Stahlstaketenzaun, der das Campusgelände umgibt, spricht die gleiche Sprache.
Sehr viel offener zeigt sich die Bibliothek hingegen an der Eingangsseite im Westen sowie in ihrem Inneren. Der weit auskragende Lesesaal im dritten Obergeschoss sendet eine unmissverständliche Willkommensgeste aus. Er ist ebenso wie die gesamte Eingangsfront voll verglast. Im Gebäudeinneren verbinden zahlreiche mehrgeschossige Lufträume die Ebenen – nicht nur im zentralen Erschließungsatrium, sondern auch an den beiden Gebäudeenden. Sie sind Teil einer Strategie der Architekten, mit der sie die Nutzer zum Durchwandern der Räume animieren wollen. Als Begegnungszonen gestaltete Treppenläufe und ein großzügiges Tageslichtangebot durch das Sheddach und die Glasfassaden tragen ebenfalls ihren Teil dazu bei.
Die Ende der 60er-Jahre gegründete Universität Paris XIII verteilt sich auf drei Standorte weit im Norden der französischen Hauptstadt.
Weitere Informationen:
Bauherrenvertreter: Saerp
Projektleitung: Laurent Blondel, Françoise Sogno
Projektleitung: Laurent Blondel, Françoise Sogno




















