// Check if the article Layout ?>
Screened-off and open: University library in Villetaneuse
Foto: Luc Boegly
The Villetaneuse campus in the northern outskirts of Paris is one of the three sites of the Paris 13 University founded in the late sixties. When it was built, it embodied the urban development ideal of the times, namely that of a functionally organised science city located outside the existing urban area and with no particular transport connections to the surrounding communities.
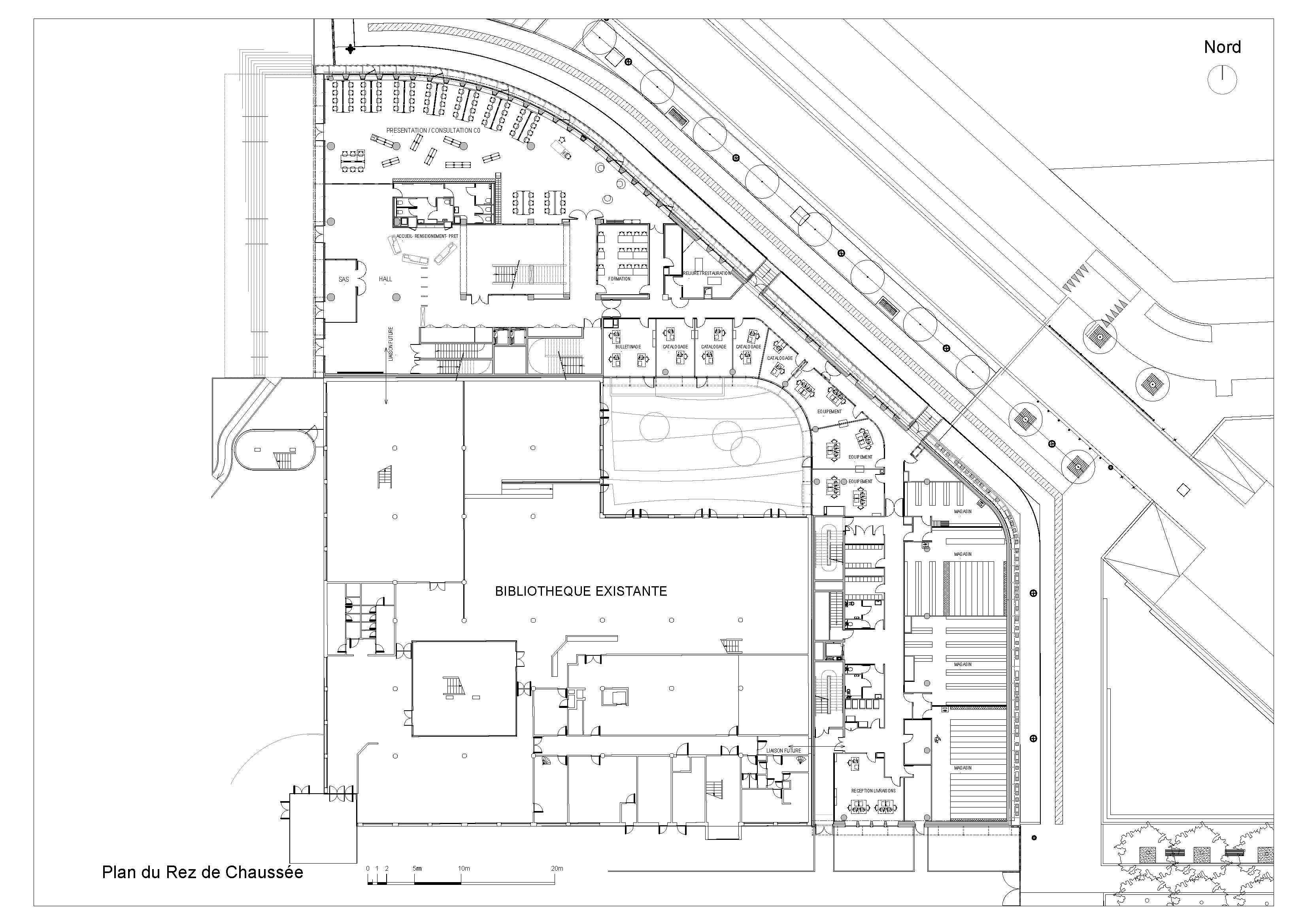
The Ile-de-France region is seeking to remedy this situation, as seen in the recently initiated reorganisation of the campus premises; a new tram line has already been providing access to the university grounds for some time. The university library, named for the French sociologist Edgar Morin and now enlarged by Ropa & Associés, saw its official opening in spring 2018. It signalises renewal rather than openness, however, with its three- to four-storey extension curling around the existing library as if in protection. Admittedly the curved facade with its vertical sun baffles provides the building a sleek and high-quality look, yet it also signalises a certain screening-off from the outside. The high steel picket fence that encloses the campus grounds speaks the same language.
Be that as it may, the library is more open in character on its entrance side to the west and also indoors. The deeply cantilevered reading room on the third floor makes an unmistakable gesture of welcome, and like the entrance front is fully glazed. Numerous multi-storey voids connect the various levels, not only in the central circulation atrium but also at the two ends of the building and as such are part of the architects' strategy to encourage the users to wander through the rooms. Staircases designed as encounter zones and the generous provision of natural light through the sawtooth roof and glass facades also contribute to this effect.
The Paris 13 University, founded in the late sixties, is divided into three campuses on the northern outskirts of the French capital.
The Ile-de-France region is seeking to remedy this situation, as seen in the recently initiated reorganisation of the campus premises; a new tram line has already been providing access to the university grounds for some time. The university library, named for the French sociologist Edgar Morin and now enlarged by Ropa & Associés, saw its official opening in spring 2018. It signalises renewal rather than openness, however, with its three- to four-storey extension curling around the existing library as if in protection. Admittedly the curved facade with its vertical sun baffles provides the building a sleek and high-quality look, yet it also signalises a certain screening-off from the outside. The high steel picket fence that encloses the campus grounds speaks the same language.
Be that as it may, the library is more open in character on its entrance side to the west and also indoors. The deeply cantilevered reading room on the third floor makes an unmistakable gesture of welcome, and like the entrance front is fully glazed. Numerous multi-storey voids connect the various levels, not only in the central circulation atrium but also at the two ends of the building and as such are part of the architects' strategy to encourage the users to wander through the rooms. Staircases designed as encounter zones and the generous provision of natural light through the sawtooth roof and glass facades also contribute to this effect.
The Paris 13 University, founded in the late sixties, is divided into three campuses on the northern outskirts of the French capital.
Further information:
Client representation: Saerp
Project management: Laurent Blondel, Françoise Sogno
Client representation: Saerp
Project management: Laurent Blondel, Françoise Sogno




















