Haus mit vielen Dächern
Schwimmbadsanierung bei Rennes von Raum
Das vielgiebelige Ensemble des Schwimmbads korrespondiert mit der benachbarten Abteikirche. © Charles Bouchaïb
Das Hallenbad im bretonischen Saint-Méen-le-Grand ist ein Gebäudekomplex mit vielen kleine Giebeldächern. Diesen hat das Büro Raum nun erweitert und mit einer minimalistischen Hülle aus Holz und Schiefer überzogen. Obwohl noch nicht einmal 30 Jahre alt, war das Bestandsgebäude von 1990 technisch und gestalterisch veraltet, die gelben Putzfassaden blätterten ab und die Schwimmbadtechnik war an das Ende ihrer Lebensdauer gekommen.


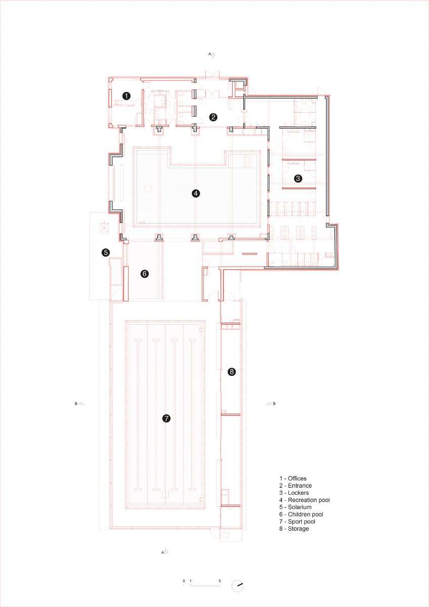
Ein Erweiterungsbau mit 25-Meter-Becken dockt im Osten an das alte Hallenbad an. Seine Längsfassade ist voll verglast. © Charles Bouchaïb
Respekt vor dem historischen Nachbarn
Das Hallenbad steht mitten im Ortszentrum, nahe der historischen Abteikirche, deren Anfänge bis ins 12. Jahrhundert zurückreichen. Im Süden schließen sich Sportplätze an. Aufgrund des historischen Umfelds suchten die Architekten die kleinteilige Gebäudestruktur mit bewegter Dachlandschaft zu erhalten und führten sie auch im Erweiterungsbau fort. Ein neuer Baukörper mit 25-Meter-Sportbecken dockt nun im Osten, Richtung Abteikirche an den Bestand an. Um ihm Platz zu machen, wurde ein Annex mit Büroräumen und einem kleinen Café abgebrochen.
Homogene Farbpalette innen und außen
Die Architekten taten alles, um das zuvor recht kunterbunte Erscheinungsbild des Gebäudes außen und innen zu vereinheitlichen. Die Fassaden erhielten eine zusätzliche, gedämmte Holzschalung aus schwarz lasierter Douglasie. Die Dächer waren regionaltypisch mit Schiefer gedeckt – das gleiche Material nutzten die Architekten nun auch für die Gebäudeerweiterung. Details wurden auf ein Minimum reduziert: Dachrinnen sind entweder fast unsichtbar in die Dachhaut integriert oder fehlen komplett wie am Erweiterungsbau. Dort rinnt das Regenwasser einfach in einen Kiesstreifen im Boden vor der Glasfassade.


Über dem 25-Meter-Becken verdeckt eine Holzdecke die großen Fachwerkbinder des Dachs. © Charles Bouchaïb
Schwimmbecken mit Aussicht
Der 25-Meter-Pool öffnet sich an der Längsseite mit einer bodentiefen Glasfassade Richtung Sportplätze. Über das Wasser spannt sich eine Decke aus naturfarben belassenen Holzlatten. Dahinter tragen paarweise angeordnete Fachwerkträger aus Brettschichtholz die Last des Dachs. Auch die dazwischen angebrachten technischen Einbauten sind durch die Abhangdecke den Blicken entzogen.


Rund um das alte Schwimmbecken sind Wände, Böden und Decken ganz in Weiß gehalten. © Charles Bouchaïb
Eindrucksvolles Dachtragwerk
Über dem alten, jetzt zum Freizeitbecken umgewidmeten Pool blieben die Dachbinder dagegen unverkleidet. Vor dem Umbau waren sie grün gestrichen. Jetzt hüllt sich der Raum komplett in Weiß – von den Holzwolle-Akustikplatten an der Dachunterseite bis zur Fliesenverkleidung des Schwimmbeckens, der Böden, Wände und Sitzbänke.
Mehr dazu in Detail 7/8.2025 sowie in unserer Datenbank Detail Inspiration.
Architektur: RAUM
Bauherr: Gemeindeverband Saint-Méen Montauban
Standort: 4 rue Révérend Père Janvier, Saint-Méen-le-Grand (FR)
Tragwerksplanung: Leicht
TGA-Planung: Tual
Kostenplanung: CMB 35
Akustik: Hédont






















