Altes Finanzamt umgebaut
Seniorenzentrum in Garmisch von H2M Architekten
Das alte Finanzamt und sein neuer Erweiterungsbau ergänzen sich zu einem U-förmigen Gesamtkomplex. © Sebastian Schels
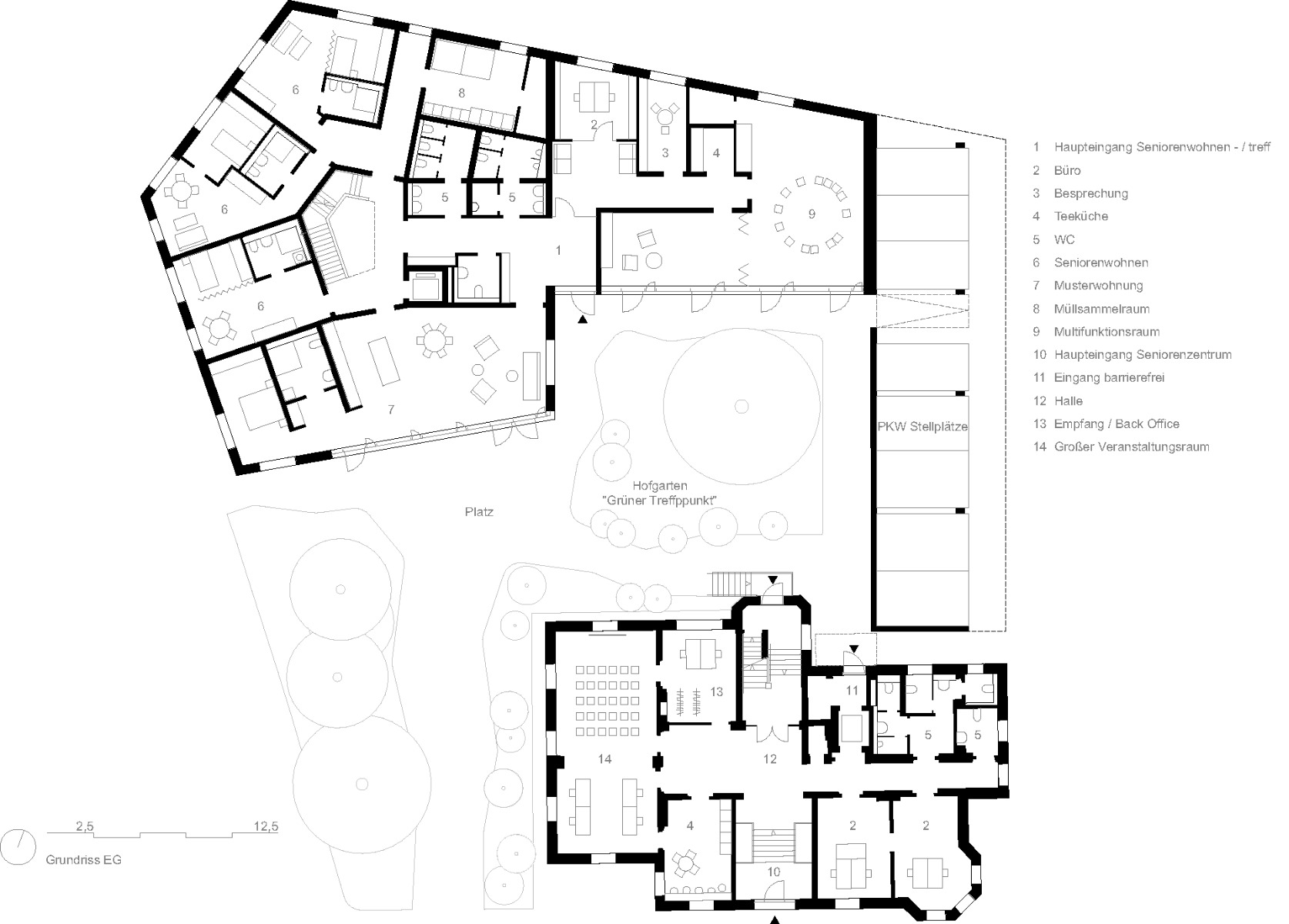
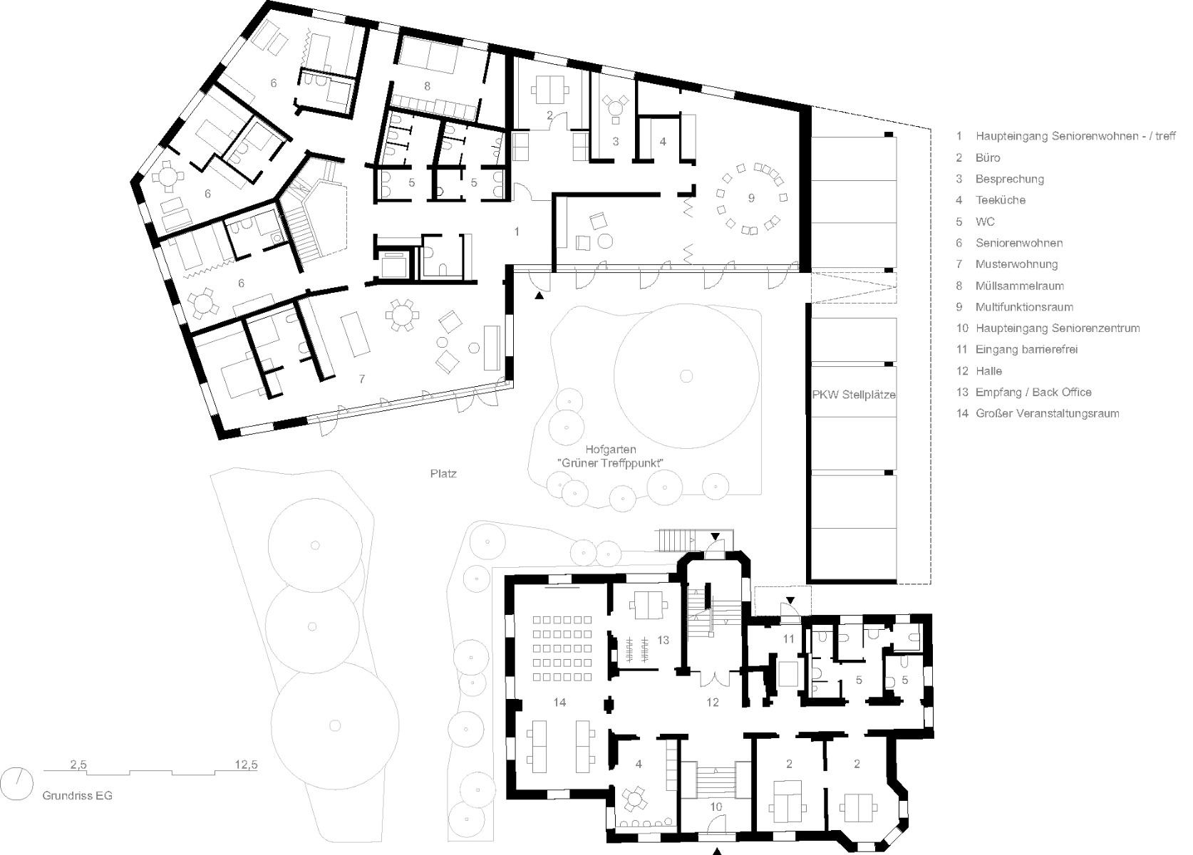
Das Alte Finanzamt, ein neoklassizistisches Gebäude von 1907, steht unweit des Bahnhofs im Zentrum des Alpenorts Garmisch-Partenkirchen. Schon seit einigen Jahren war es aufgrund von baulichen, brandschutz- und haustechnischen Defiziten nicht mehr nutzbar. Jetzt ist der stadtbildprägende Bau mit geänderter Zweckbestimmung zu neuem Leben erwacht: als überregionale Beratungsstelle für das Leben im Alter. Daneben – und mit dem Altbau verbunden durch einen flachen Verbindungstrakt – ist ein Neubau mit 24 altersgerechten Wohneinheiten entstanden.


1907 wurde das Finanzamt im Zentrum von Garmisch errichtet. Vor seiner Umwidmung war es mehrere Jahre lang ungenutzt. © Sebastian Schels
Umbau finanziert aus Stiftungsgeldern
Möglich gemacht hat das Projekt die Stiftung des Ehepaars Günter und Ingeborg Leifheit. Sie hatte dem Markt Garmisch-Partenkirchen insgesamt 57 Millionen Euro zur Verfügung gestellt, um damit Projekte für Seniorinnen und Senioren vor Ort zu realisieren.
Für Senioren mit Wohnberechtigungsschein
Nach dem Erwerb des Alten Finanzamts lobte die Kommune einen Architektenwettbewerb aus, den H2M Architekten aus München und Kulmbach gewannen. Die 24 Wohnungen wurden gemäß den Vorgaben der einkommensorientierten Zusatzförderung (EOF) des Bayerischen Bauministeriums geplant und werden an Seniorinnen und Senioren mit Wohnberechtigungsschein vermietet.


Das Innere des Altbaus wurde barrierefrei umgestaltet und dient nun als Beratungszentrum für das Leben im Alter. © Sebastian Schels
Barrierefreier Umbau des Bestandsgebäudes
H2M Architekten lieferten nicht nur den Siegerentwurf im Wettbewerb, sondern begleiteten das Projekt über alle Leistungsphasen. Nach ihren Entwürfen wurde das Finanzamt außen und innen behutsam saniert, barrierefrei umgebaut und mit einem Aufzug, neuen Sanitärräumen und einer zeitgemäßen Haustechnik ausgestattet. Alt- und Neubau sind durch einen eingeschossigen Verbindungsbau mit Räumen für den örtlichen Seniorentreff und einem Carport verbunden. Durch die Winkelbebauung entsteht ein dreiseitig geschlossener, ruhiger Innenhof, der sich nach Westen in Richtung Garmischer Kurpark öffnet.


Ein fünfeckiges, von oben belichtetes Treppenhaus erschließt den neuen Wohnungsbau. © Sebastian Schels
Fünfeck mit 24 Wohneinheiten
In dem fünfeckigen Neubau verteilen sich auf vier Geschosse insgesamt 24 Wohnungen. Ihre Bäder und Nebenräume liegen am Kern, Schlaf-, Wohnräume und Küchen an der Außenfassade. Jede Wohnung verfügt über eine Freifläche in Form eines Balkons oder einer Terrasse. Eine Besonderheit ist das zentrale, von oben belichtete Treppenhaus. Mit seiner ungewöhnlichen Form und großzügigen Abmessung ist es kein reiner Erschließungsraum, sondern soll auch dem nachbarschaftlichen Austausch der Bewohnerinnen und Bewohner dienen.
Architektur: H2M Architekten
Bauherr: LongLeif GaPa
Standort: Von-Brug-Straße 5, 82467 Garmisch-Partenkirchen (DE)
Tragwerksplanung: Tragraum Ingenieure
Landschaftsarchitektur: HinnenthalSchaar
Landschaftsarchitekten
HLS-Planung: Planunion
Bauphysik: Müller BBM
Brandschutz: IB Frühholz + Wörmann
Bauunternehmen: Kreuzer
















