Steil am Hang
Sozialwohnung mit Meeresblick
Sozialwohnungsbau in Montgat, © Adria Goula
Dataae und Xavier Vendrell Studio haben am Stadtrand von Barcelona 39 Apartments für Einkommensschwache gebaut – mit Blick auf das Meer und in klimagerechter Bauweise.


Die Fassadenelemente sorgen im Sommer und Winter für die passenden klimatischen Bedingungen im Innenraum. © Adria Goula
Geschichtete Fassade – gestaffelte Gebäude
Schon von Weitem machen die im Wind wehenden Vorhängen im Wechsel mit gläsernen Schiebeelementen auf sich aufmerksam. Die Fassadenelemente dienen aber einem ganz pragmatischen Zweck. Im Sommer stehen die Glaselemente offen, so kann der Wind durch das Gebäude streichen. Die Vorhänge schützen dann vor Sonne. Im Winter hingegen bleiben die Schiebeelement geschlossen und die Vorhänge aufgezogen. Wie in einem Wintergarten fängt sich dann die Wärme vor der Fassade und heizt die Wohnungen auf.
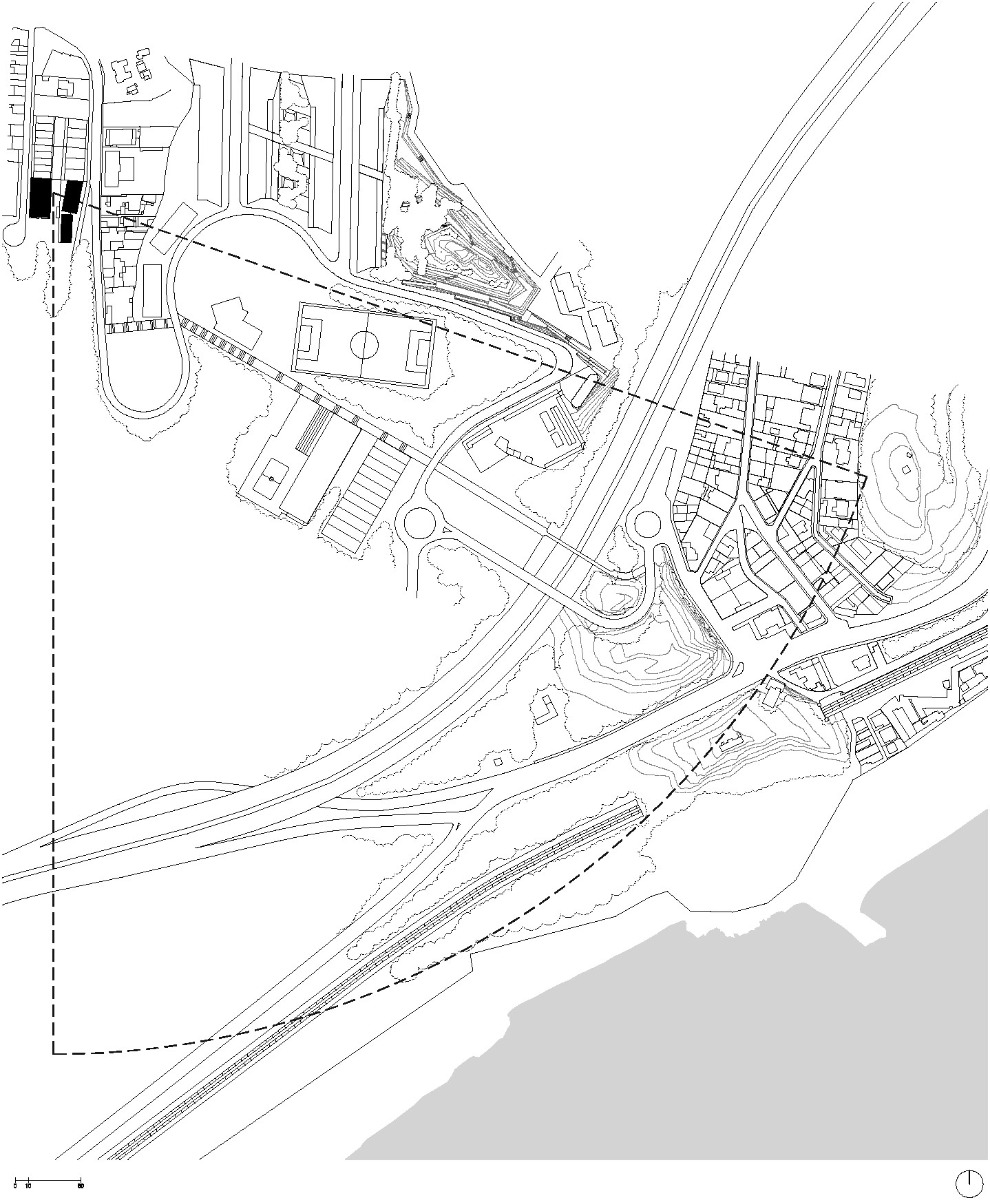
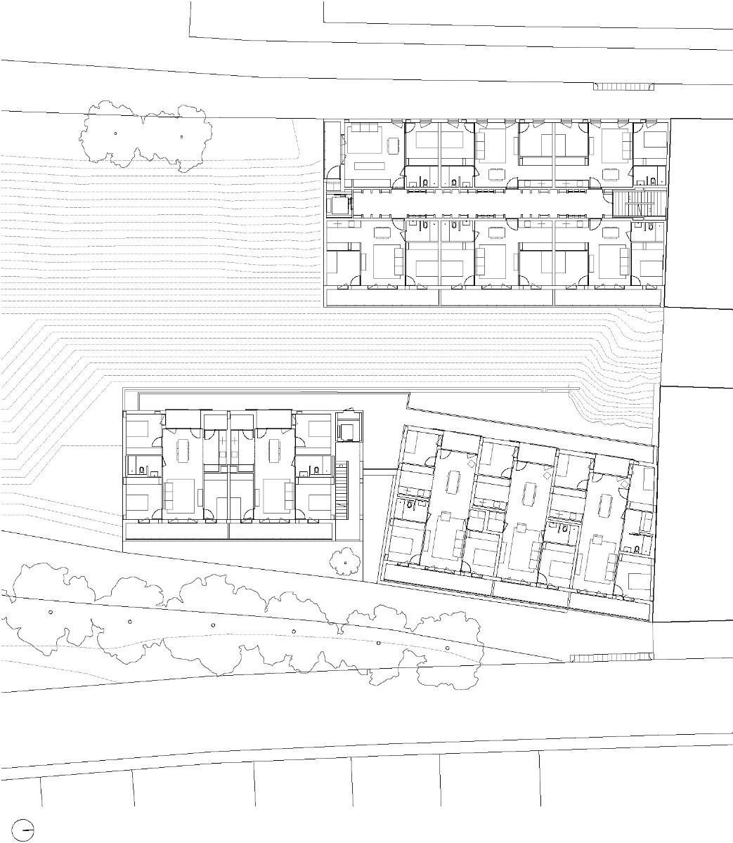
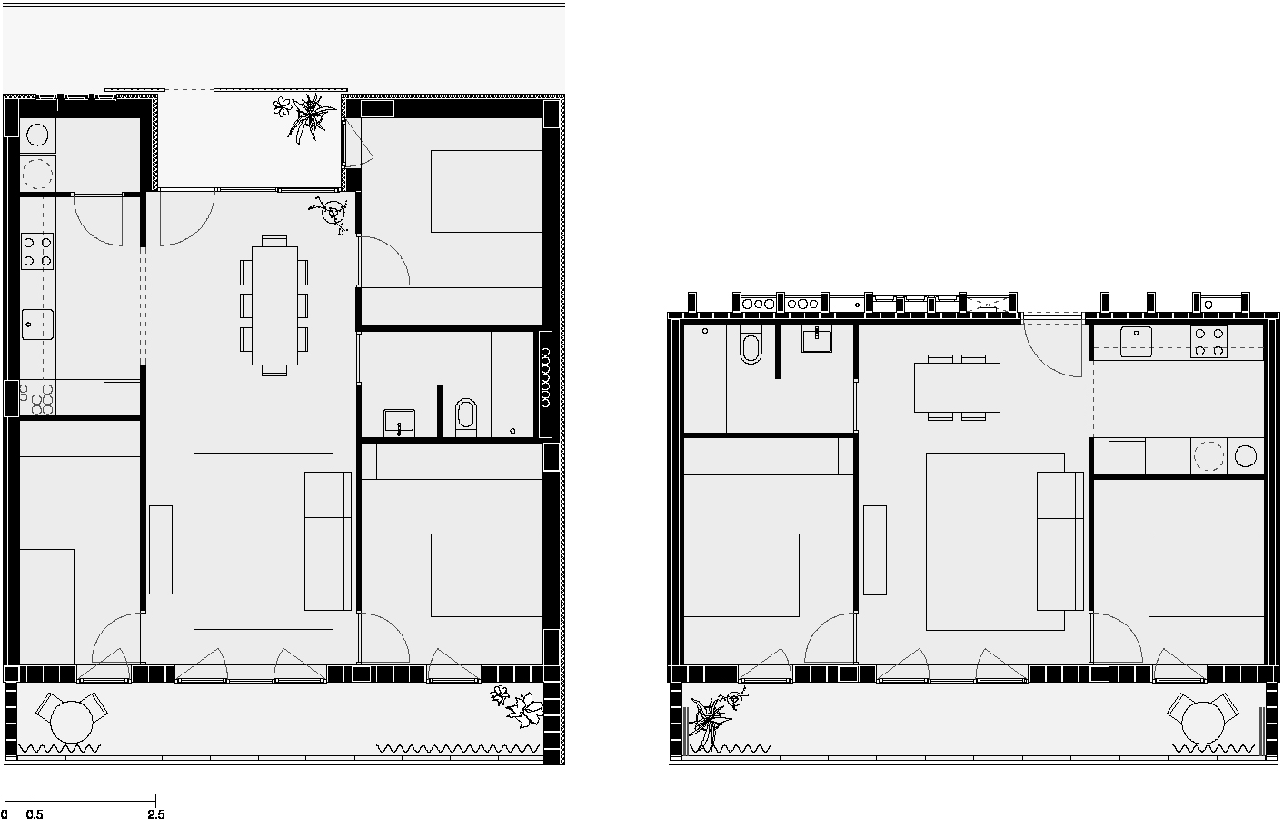
Die 39 Wohnungen sind auf zwei Baukörper verteilt. Der obere thront 17 m über dem unteren und ist auf eine Betonplatte gesetzt, die 4,20 m auskragt. So waren kaum Erdarbeiten in dem felsigen Untergrund nötig. Hier reihen sich die Apartments entlang eines Mittelflurs auf. Im unteren Baukörper hingegen, der der Topografie folgend mittig knickt, orientieren sich alle Einheiten zum Meer.


Apartment mit Meerblick, © Adria Goula
Natürliche Klimatisierung
Weil in den Wohnungen keine stromfressenden Klimaanlagen vorgesehen sind, nutzten die Architekten den Venturi-Effekt, um das Gebäude zu kühlen. Im vorderen Haus lassen Öffnungen in den Geschossdecken der Flure die Luft über alle Geschosse nach oben strömen. Die Brise ist deutlich zu spüren. Durch Lüftungsklappen über den Eingangstüren gelangt die frische Luft dann in die Wohnungen. Im hinteren Gebäude wird über Querlüftung gekühlt. Große Öffnungsflügel an beiden Seiten der Wohnung können dafür geöffnet werden. Das Gebäude erreicht die Energieeffizienzklasse A. Dazu trägt die Ausrichtung der einzelnen Gebäudeteile bei, aber auch die Hülle. Sie weist einen niedrigen Transmissionswert und einen U-Wert von 0,30 W/m²K auf.


Die Glasfassade vor den Balkonen kann geöffnet werden. © Adria Goula


Gitter-Schiebetüren der Laubengänge, © Adria Goula
Erschließung einmal anders
Im unteren Riegel erreichen die Mieter ihre Wohnung über einen Laubengang. Allerdings grenzen hier öffentliche Erschließung und privater Raum nicht unmittelbar aneinander. Ins Gebäude eingeschnittene Vorzonen schaffen einen zusätzlichen semi-öffentlichen Raum vor der Eingangstür, der als Sitzplatz, Abstellfläche für Fahrräder oder Spielbereich dient. Dabei ist es den Bewohnern selbst überlassen, ob sie Gitter-Schiebetüren zum Laubengang hin offenstehen lassen oder schließen. Nur wenn sie die Wohnung verlassen und die Fenstertüren für die Querlüftung offenbleiben, empfiehlt es sich die Gittertür zu schließen.
Architektur: DATAAE (Claudi Aguiló, Albert Domingo) + Xavier Vendrell Studio
Bauherr: IMPSOL
Standort: Carrer Sant Feliu 17 / camí de les Bateries 24-26. Montgat, Barcelona (ES)
Tragwerksplanung: Manuel Arguijo y Asociados
Bauphysik: Eletresjota tècnics associats






















