Außen städtisch, innen grün
Sozialwohnungsbau von De Zwarte Hond in Groningen
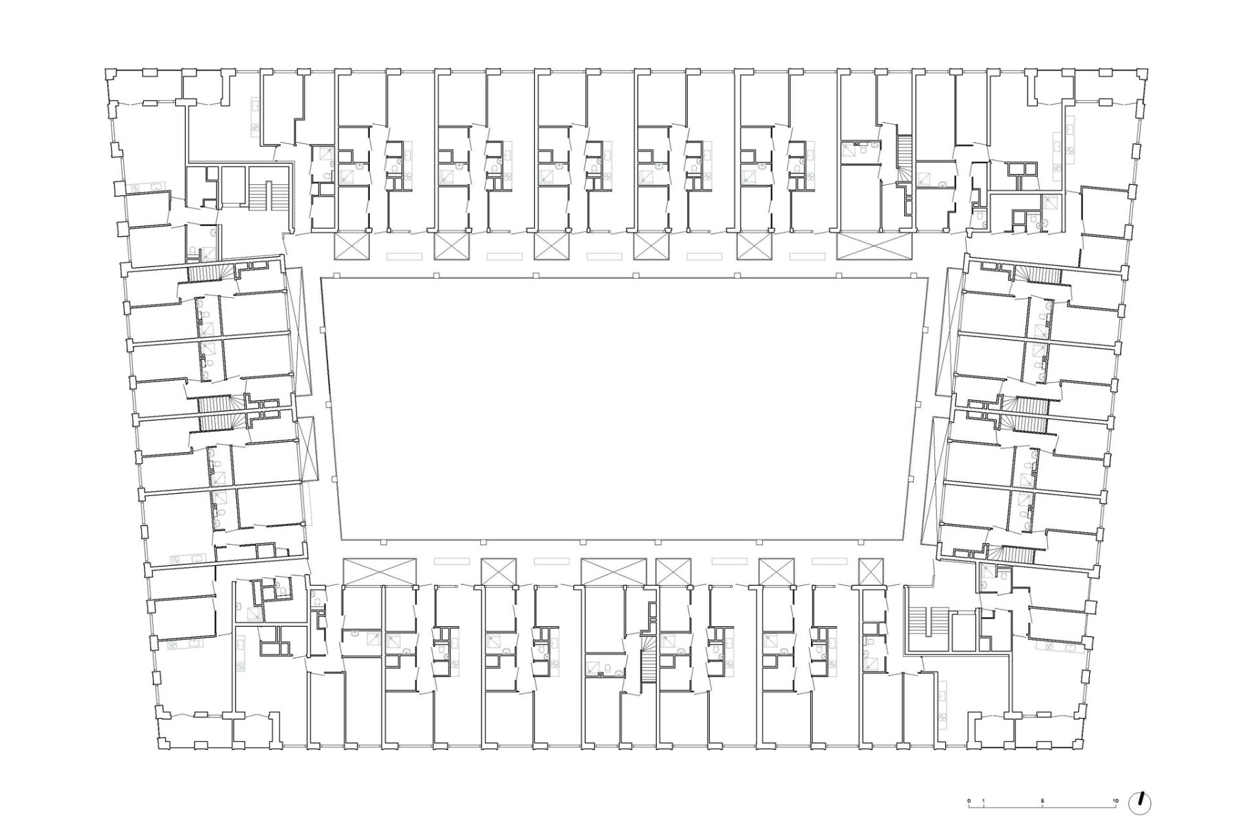
Alle 105 Mietwohnungen des Regulateur öffnen sich zum Innenhof und fast alle werden von dort über Laubengänge erschlossen. © Eva Bloem
Der Wohnungsbau Regulateur gibt sich janusköpfig: Der Stadt zeigt er Ziegelmauerwerk und regelmäßige Lochfassaden. Die Wohnungen öffnen sich zum Hof und werden auch von dort aus erschlossen.


In die Ecken des Wohnblocks sind nahezu unsichtbar Loggien integriert. © Eva Bloem
Sanierung eines Nachkriegs-Wohnquartiers
Das Nachkriegs-Wohnquartier Grunobuurt im Südwesten Groningens wird seit fast 20 Jahren großflächig saniert. Seit 2016 kooperieren dort die Wohnungsbaugesellschaft Nijestee, das Bauunternehmen Trebbe und das Architekturbüro De Zwarte Hond. Mit dem Regulateur haben sie ihr inzwischen drittes gemeinsames Projekt realisiert.
Urbane Lochfassade aus Ziegelmauerwerk
Nach außen präsentiert sich der Wohnkomplex als geschlossener Baublock mit drei bis sieben Geschossen. 105 Mietwohnungen finden darin Platz, davon 79 sozial geförderte. Dem urbanen Äußeren entspricht auch der Nutzungsmix: Das Erdgeschoss ist höher als die übrigen Etagen, sodass hier auch Flächen für Gewerbe und gemeinschaftliche Nutzungen entstanden sind. Die Lochfassaden folgen einem regelmäßigen Raster, das auch die offenen Loggien an den Gebäudeecken mit einbezieht: Auf den ersten Blick kaum sichtbar, sind sie hinter die Ziegelhülle zurückgesetzt.


Der grüne Innenhof ist Treffpunkt der Bewohner und Retentionsfläche für Regenwasser in einem. © Eva Bloem
Innenhof als grüne Oase
Von Vorteil war es, dass alle Parkplätze in eine Quartiers-Sammelgarage ausgelagert werden konnten. Das Haus ist daher nicht unterkellert und der Innenhof stand als Grünfläche für das Gemeinschaftsleben sowie zur Regenwasserretention zur Verfügung. Hierhin orientieren sich auch die Eingänge aller Wohnungen und der Treppenhäuser.


Die tiefe Balkonzone vereint öffentliche Laubengänge und private Freibereiche. Flache Sitzbänke bilden eine Trennung zwischen ihnen. © Eva Bloem
Geschickt haben die Architekten eingeschossige Wohnungen und zweigeschossige Maisonettes im regelmäßigen Grundrissraster kombiniert. Die meisten werden von umlaufenden Laubengängen erschlossen, die mit einigem Abstand vor den Fassaden vorbeilaufen. Sitzbänke trennen davon kleinere, private Freibereiche ab.


Die Ziegel sind eine Sonderanfertigung, mit der sich das gewünschte Fassadenprofil und Fugenbild herstellen ließ. © Eva Bloem


Auch die Geländer sind farblich auf den sonder angefertigten Ziegel abgestimmt. © Eva Bloem
Mauerwerk mit Profil
Für die Mauerwerksfassaden entwickelten De Zwarte Hond einen Sonderziegel mit vertikaler Scheinfuge. Auf diese Weise scheinen horizontale und vertikale Mauerwerksfugen in einer Linie durchzulaufen. Das Fassadenprofil wurde mit Ziegeln in zwei Tiefen hergestellt: 70 mm für die zurückgesetzten Flächen, 100 mm für die vorspringenden Rahmen rund um die Fenster. Da das Tageslichtangebot aufgrund von Verschattung von oben nach unten abnimmt, werden die Fenster nach unten hin sukzessiv breiter.
Mehr dazu in Detail 4.2024 und in unserer Datenbank Detail Inspiration.
Architektur: De Zwarte Hond
Bauherr: Nijestee
Standort: Paterswoldseweg 112, 9727 BJ Groningen (NL)
Tragwerks- und TGA-Planung: Sweco
Landschaftsarchitektur: Felixx Landscape Architects & Planners
Bauphysik: DGMR
Bauunternehmen: Trebbe












