Geschwungene Holzdächer
Sportbauten bei Paris von Explorations Architecture
Überdachung der Sportfelder mit Brettschichtholz und ETFE-Membran, © 11H45/Florent Michel
Verwandt und doch ganz anders erscheinen die Dächer zweier Sportbauten in Vanves bei Paris. Von der 5 m weiten Auskragung bis hin zur mehrfachen Krümmung der Fläche zeigen die beiden Gitterstrukturen aus Holz eindrucksvoll den Spielraum, den das Material im Entwurf bietet. Die Spielfeldüberdachung und der Eingangspavillon mit Umkleiden erweitern die Sportanlagen des Lycée Michelet, die nach Plänen von Explorations Architecture saniert wurden. Die weiterführende Schule befindet sich in einem denkmalgeschützten Schlossgebäude des Pariser Vororts, die Sportstätten reihen sich entlang des Boulevard du Lycee im dazugehörigen Park auf.


Eingangspavillon mit Umkleiden und Hausmeisterloge, © 11H45/Florent Michel
Dächer formen Räume
Die Dachstrukturen aus Brettschichtholz wurden von der CBS-Lifteam-Gruppe geplant und vorgefertigt. Die mehrfach gekrümmte Gitterschale der Spielfeldüberdachung überspannt mit diagonal angeordneten BSH-Elementen einen offenen Raum. Den oberen Abschluss bildet eine transparente Dachhaut aus ETFE. Der Pavillon hingegen zeigt sich als eine weitgehend geschlossene Schatulle, die ein massives Dach mit orthogonalem Balkenraster und pagodenähnlichen Dachrändern krönt.
Leichte Gitterschale
Die Überdachung der Sportfelder wird durch einen Stahlrahmen gefasst und von Stahlstützen getragen. Die Konstruktion ist zwischen 7 und 10 m hoch – schwankt also zwischen der minimalen Höhe für das Sportfeld und der maximalen Höhe laut Bebauungsplan. In der Mitte ist das Dach am höchsten, die Ecken zeigen zum Himmel. Dadurch fließt das Regenwasser zu den Rändern, wo es über zwölf in die Stahlstützen integrierte Fallrohre abgeleitet wird.


Die Holzkonstruktion der Überdachung wird von Stahlstützen getragen. © 11H45/Florent Michelt
Schweres Pagodendach
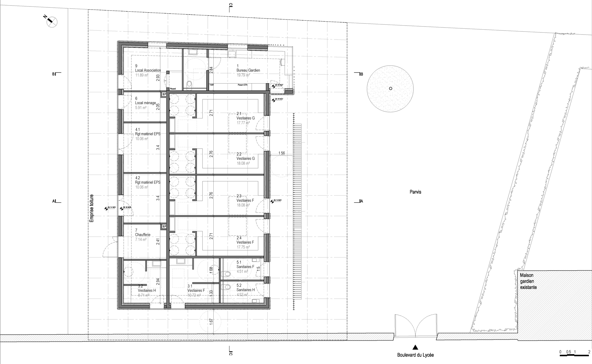
Beim Pavillon kragen die Dachränder bis zu 5 m aus. Die nach oben aufragenden Ecken werden dabei von einer unsichtbaren Stützkonstruktion stabilisiert. Über dem eigentlichen Bauwerk ruht ein Flachdach mit Oberlichtern. Getragen wird die Struktur durch Betonwände, die gleichzeitig die Räume im Inneren formen. Um den Bau legt sich eine mehrschichtige, mit Holz bekleidete Fassade. Diese berührt das Dach nicht, sondern geht über in ein zurückgesetztes, umlaufendes Oberlichtband. So erscheint das Dach nahezu schwebend.


Detail Überdachung, © 11H45/Florent Michel


Zugang Eingangspavillon, © 11H45/Florent Michel
Durch die Dächer mögen die Bauten wie ungleiche Geschwister wirken, doch die Fotos täuschen über die unterschiedlichen Größen der Bauten hinweg. Die Grundfläche des Pavillons ließe sich bis zu sechs Mal unter der Sportfeldüberdachung unterbringen.
Architektur: Explorations Architecture
Bauherr: Region Île-de-France
Standort: Bd du Lycée, 92170 Vanves (FR)
Tragwerksplanung: EVP
Landschaftsarchitektur: Base & 22 degrés
Planung + Vorfertigung Holzkonstruktion: CBS-Lifteam





























