Umgebautes Werkstattgebäude
Sportzentrum in Paris von Think Tank Architecture
Der sanierte Hallenbau und sein neuer Annex rahmen den kleinen Hinterhof eines Wohngebäudes. © Think Tank Architecture – Cécile Septet
Von der Kutschenremise über die Metallwerkstatt zum Sportzentrum – so lässt sich der Nutzungswandel beschreiben, den der Hallenbau im Hinterhof der 37 Avenue du Docteur Arnold Netter in Paris über die Jahrzehnte erfahren hat. Bis vor einigen Jahren ließ die Pariser Nahverkehrsgesellschaft RATP hier im Osten der Hauptstadt unter anderem Rolltreppen reparieren. Auch der Wohnungsbau an der Straße gehört der Gesellschaft.


Das mächtige, über 100 Jahre alte Holztragwerk des Dachs spannt sich bis heute über die Räume. © Think Tank Architecture – Cécile Septet
Vereinssport im historischen Werkstattgebäude
Nun hat die RATP die Werkstatt durch Think Tank Architecture sanieren lassen und einer mit ihr eng verbundenen Organisation überantwortet: Die 1928 gegründete Union Sportive Métropolitaine des Transports, kurz US Métro, bietet nicht nur den Mitarbeiterinnen der RATP ein weites sportliches Betätigungsfeld. 35 Abteilungen, rund 4800 Mitglieder, 34 Vollzeitangestellte und 91 Medaillengewinner bei olympischen und paralympischen Spielen sind Zahlen, die für sich sprechen.
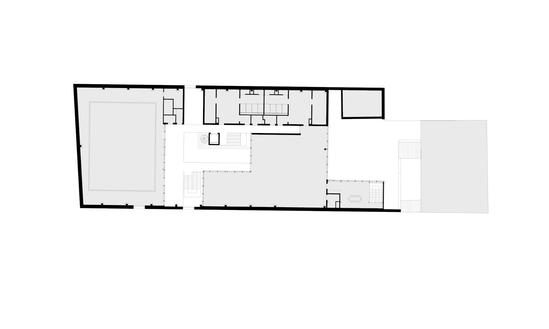
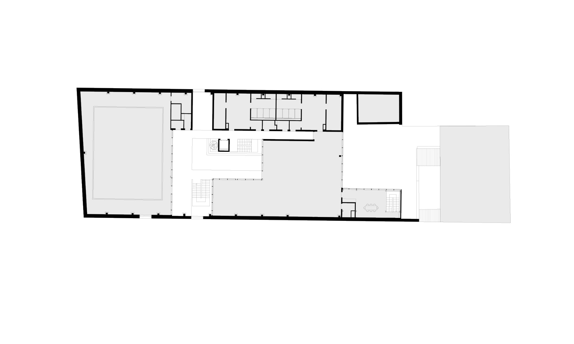
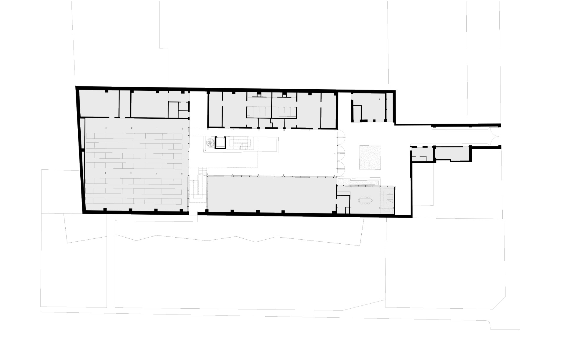
Zwei Geschosse und ein Wintergarten
Seit dem Umbau dient das einstige Werkstattgelände US Métro nun als Verwaltungssitz und Kampfsportzentrum. Die Büros sind in einem neuen Anbau im Innenhof untergekommen, die Umkleiden und Sportbereiche wurden auf zwei Ebenen in den Hallenbau integriert.


Durch Glastrennwände fällt Licht vom zentralen Wintergarten in die einzelnen Sportbereiche. © Think Tank Architecture – Cécile Septet
Sporträume
Im Erdgeschoss des Gebäudes sind unter anderem ein Fitnessraum sowie Bereiche für Gewichtheben und Crossfit untergebracht; außerdem die Haustechnik und zwei Umkleiden. Das Obergeschoss beherbergt ein Dojo für asiatische Kamfsportarten sowie einen Boxraum und zwei weitere Umkleideräume.


Auf zwei Ebenen umgeben Sporträume und Umkleiden den zentralen Erschließungsraum. © Think Tank Architecture – Cécile Septet


© Think Tank Architecture – Cécile Septet
Klimapuffer und Begegnungsraum
Die Bereiche gruppieren sich um einen zweigeschossigen Wintergarten, der als Kommunikationsraum und Klimapuffer dient. Bäume bringen etwas Grün herein, Oberlichter im Dach sorgen für Tageslicht und Entlüftung. Um auch die Sportbereiche natürlich zu belichten, sind die Trennwände im Haus – mit einigen offensichtlichen Ausnahmen wie den Umkleiden und Sanitärräumen – größtenteils verglast. Der mächtige Holzdachstuhl bringt in Erinnerung, dass man sich hier in einem sanierten Altbau bewegt.


Fassade der ehemaligen Reparaturwerkstatt der Pariser Nahverkehrsbetriebe vor dem Umbau zum Sportzentrum. © Think Tank Architecture – Cécile Septet


Statt der verputzten Lochfassade umgibt nun eine transluzente Hülle aus Glas und Polycarbonat die sanierte Halle. © Think Tank Architecture – Cécile Septet
Glas- und Polycarbonatfassade
Das Dach und die geschlossenen Fassadenflächen ließen die Architekten mit unterschiedlich profilierten Metallblechen verkleiden. In den Gebäudeöffnungen wechseln sich zwei Materialien ab, die zugleich das Klimakonzept ablesbar machen: Die nur passiv konditionierten, mit dem Wintergarten verbundenen Bereiche erhielten eine Hülle aus Polycarbonat-Wellplatten. Die beheizten Räume erhielten konventionelle, geschosshohe Verglasungen, die tiefe Einblicke in die Räume dahinter erlauben.
Architektur: THINK TANK architecture
Bauherr: RATP département Valorization Immobilière, Achats & Logistique
Standort: 37 avenue du Docteur Arnold Netter, 75012 Paris (FR)
Tragwerks- und TGA-Planung: Betem Ingénierie
Umwelttechnik: Franck Boutté Consultants
Akustik: AVA Acoustique Vivié & Associés




















