// Check if the article Layout ?>
Spuren des Neuen: Umbau von ACBS architectes
Foto: Marcin A. Pawlowski
Die Wohnungsnot ist angesichts der Knappheit an bezahlbarem Wohnraum erneut zu einem viel diskutierten Architekturthema geworden. Mit welchen Maßnahmen kann die Kluft zwischen Arm und Reich verringert werden? Welche Rolle – wenn überhaupt – spielt Architektur in diesem Prozess?
Die Architekten fühlen sich (zum Glück) nicht mehr verpflichtet, die Welt neu erfinden zu müssen. Ganz im Gegenteil: Heutzutage wird besonderes Augenmerk darauf gerichtet, sich mit den lokalen Gegebenheiten auseinanderzusetzen. Mit dem Projekt der Umwandlung eines Schulgebäudes in günstige Wohneinheiten demonstrieren ACBS architectes einen sensiblen Umgang mit der alltäglichen Umwelt.
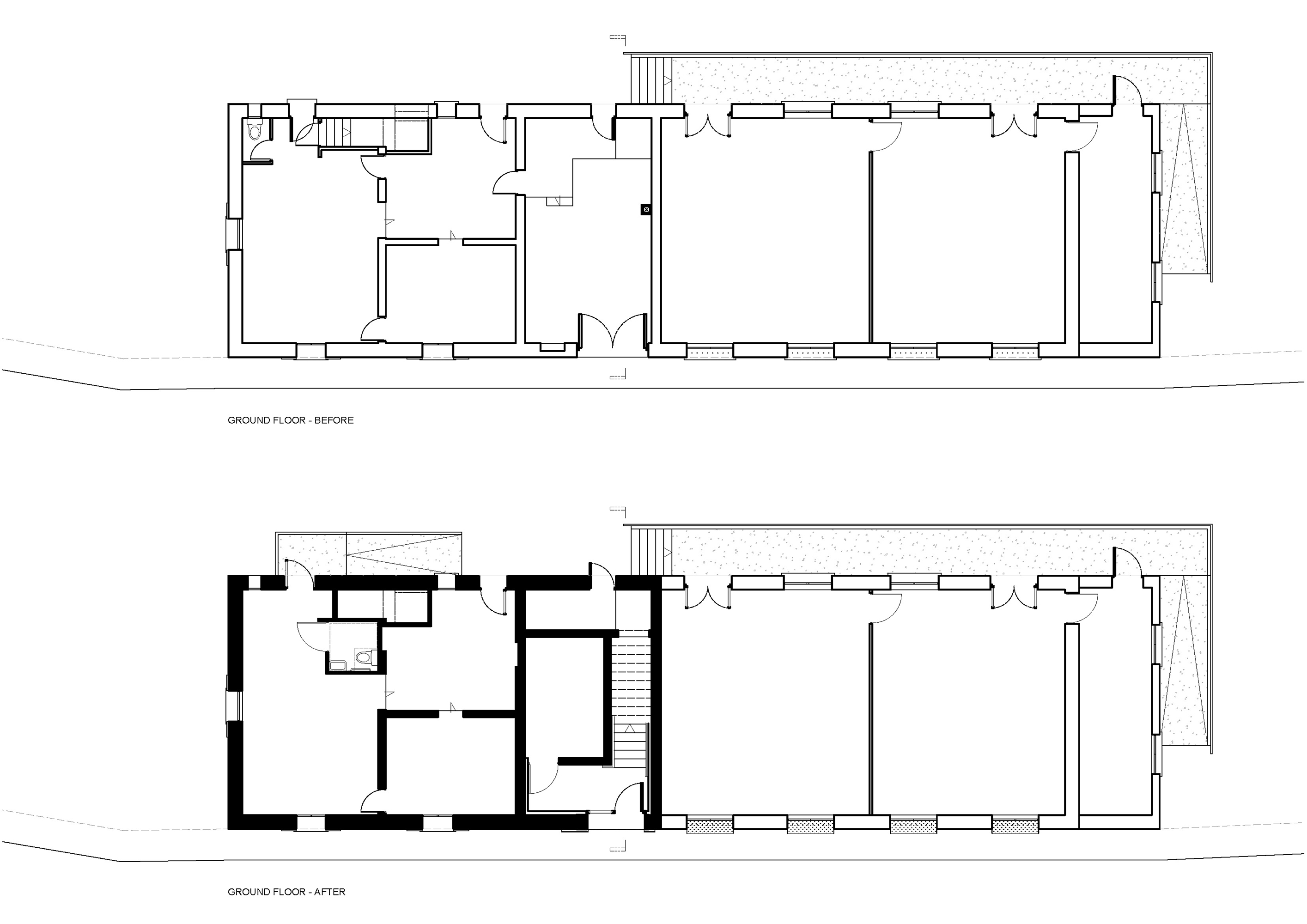
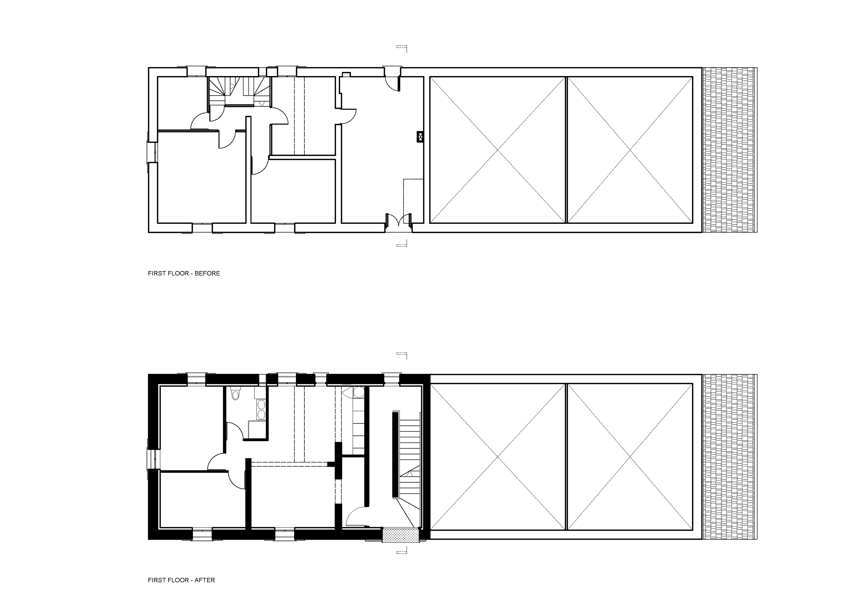
Die ursprüngliche Gebäudeaufteilung wurde vollständig neu organisiert. Die ehemaligen Technikräume machten Platz für einen neuen ebenerdigen Eingangsbereich mit einläufiger Erschließungstreppe.
Seinen industriellen Charakter erhält der Bau durch Cortenstahl-Elemente, welche ganz bewusst die ursprüngliche Fassade der ehemaligen Schule ergänzen. Vorhandene Fenster blieben erhalten und erinnern an die frühere Nutzung des Gebäudes. Im Inneren inszenieren ACBS architectes den Ausblick auf die natürliche Umgebung.
Dieser Umbau wird die Wohnungsnot in Frankreich nicht beseitigen können. Nichtsdestotrotz könnte eine aufmerksamere Planung, die auch kleine und alltägliche Gegebenheiten berücksichtigt, unsere Umwelt um einiges angenehmer erscheinen lassen.
Die Architekten fühlen sich (zum Glück) nicht mehr verpflichtet, die Welt neu erfinden zu müssen. Ganz im Gegenteil: Heutzutage wird besonderes Augenmerk darauf gerichtet, sich mit den lokalen Gegebenheiten auseinanderzusetzen. Mit dem Projekt der Umwandlung eines Schulgebäudes in günstige Wohneinheiten demonstrieren ACBS architectes einen sensiblen Umgang mit der alltäglichen Umwelt.
Die ursprüngliche Gebäudeaufteilung wurde vollständig neu organisiert. Die ehemaligen Technikräume machten Platz für einen neuen ebenerdigen Eingangsbereich mit einläufiger Erschließungstreppe.
Seinen industriellen Charakter erhält der Bau durch Cortenstahl-Elemente, welche ganz bewusst die ursprüngliche Fassade der ehemaligen Schule ergänzen. Vorhandene Fenster blieben erhalten und erinnern an die frühere Nutzung des Gebäudes. Im Inneren inszenieren ACBS architectes den Ausblick auf die natürliche Umgebung.
Dieser Umbau wird die Wohnungsnot in Frankreich nicht beseitigen können. Nichtsdestotrotz könnte eine aufmerksamere Planung, die auch kleine und alltägliche Gegebenheiten berücksichtigt, unsere Umwelt um einiges angenehmer erscheinen lassen.











