// Check if the article Layout ?>
Traces of the New: Renovation by ACBS architectes
Foto: Marcin A. Pawlowski
In the face of a shortage of affordable living space, the need for apartments has again become a hot topic in the field of architecture. How to narrow the gap between the rich and the poor? What role, if any, does architecture play in this process?
Architects (luckily) no longer feel obliged to reinvent the world. On the contrary: nowadays they are paying more attention to local conditions. With this project to transform a schoolbuilding into affordable living units, ACBS architectes have demonstrated a sensitive treatment of our everyday environment.
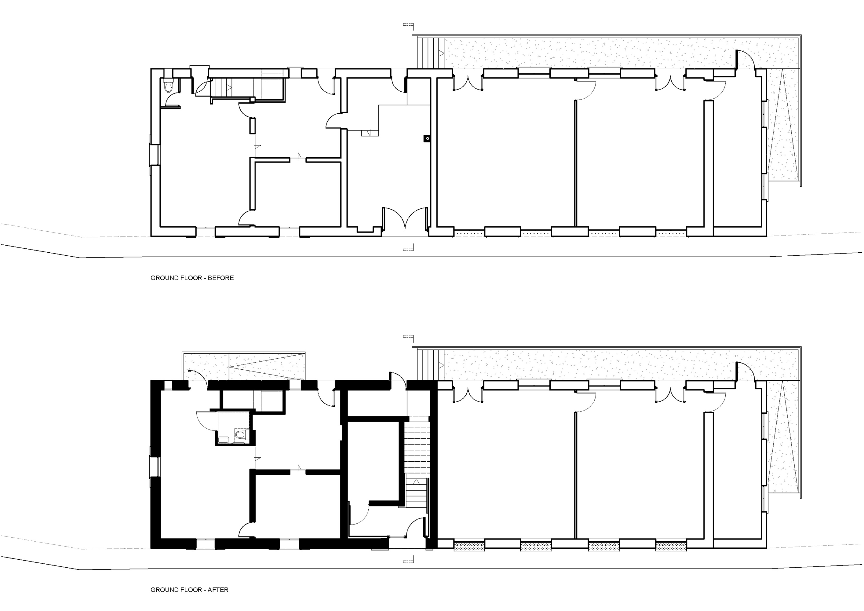
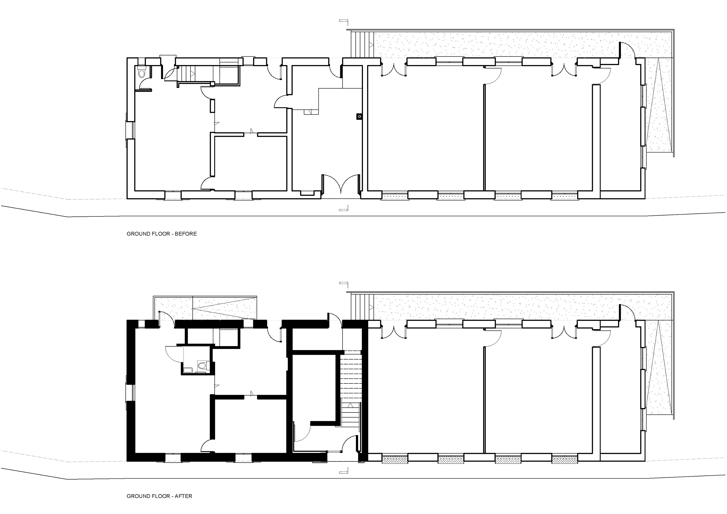
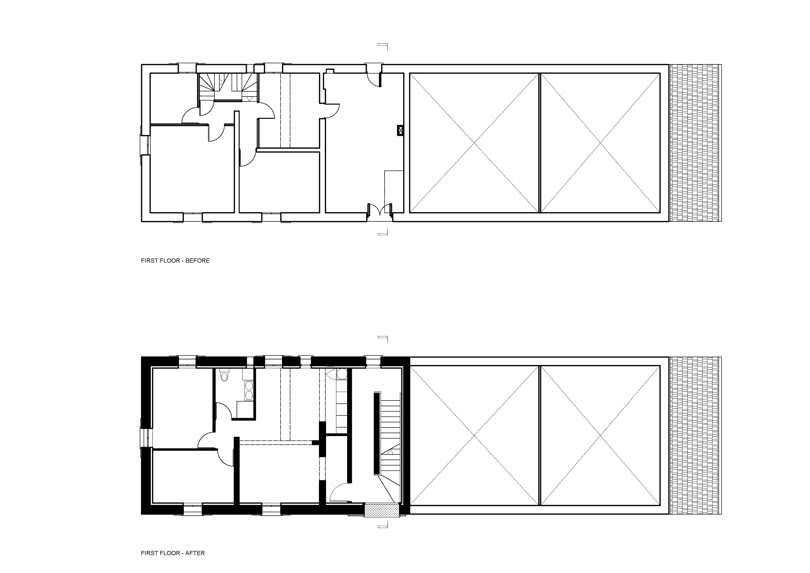
The original structure of the building has been completely reorganized. The old technical rooms have made way for a new ground-level entrance with a single flight of stairs.
The building takes its industrial character from Corten-steel elements which have deliberately been added to complement the original façade of the school. The existing windows have been kept; they recall the building’s earlier incarnation. Inside, ACBS architectes have oriented the view towards the natural surroundings.
This small renovation project will not solve the housing crisis in France. All the same, more attentive planning that accounts for smaller and everyday factors could make our surroundings seem a bit more pleasant.
Architects (luckily) no longer feel obliged to reinvent the world. On the contrary: nowadays they are paying more attention to local conditions. With this project to transform a schoolbuilding into affordable living units, ACBS architectes have demonstrated a sensitive treatment of our everyday environment.
The original structure of the building has been completely reorganized. The old technical rooms have made way for a new ground-level entrance with a single flight of stairs.
The building takes its industrial character from Corten-steel elements which have deliberately been added to complement the original façade of the school. The existing windows have been kept; they recall the building’s earlier incarnation. Inside, ACBS architectes have oriented the view towards the natural surroundings.
This small renovation project will not solve the housing crisis in France. All the same, more attentive planning that accounts for smaller and everyday factors could make our surroundings seem a bit more pleasant.











