Studentisches Wohnen neu gedacht
Studentenwohnheim für die Universität Warschau von Projekt Praga
Eingebettet in die Landschaft liegt das windmühlenartige Studentenwohnheim No. 7 in Warschau, entworfen von Projekt Praga. © Nate Cook
Dass Gebäude des öffentlichen Lebens sowohl architektonisch herausragend als auch funktional durchdacht sein können, hat das Projekt No. 7 von Projekt Praga in Warschau bewiesen. Mit einem durchdachten Raumkonzept wird die Gemeinschaft im neuen Studentenwohnheim gefördert und zugleich ein ausgewogenes Verhältnis zwischen Privatsphäre und sozialer Interaktion geschaffen – ein neuer Maßstab für modernes studentisches Wohnen.


Das Atrium dient als Bindeglied der Wohnflügel und gleichzeitig Lichtquelle der Innenräume. © Nate Cook


Blick auf einen der vier Wohnungsflügel, © Nate Cook
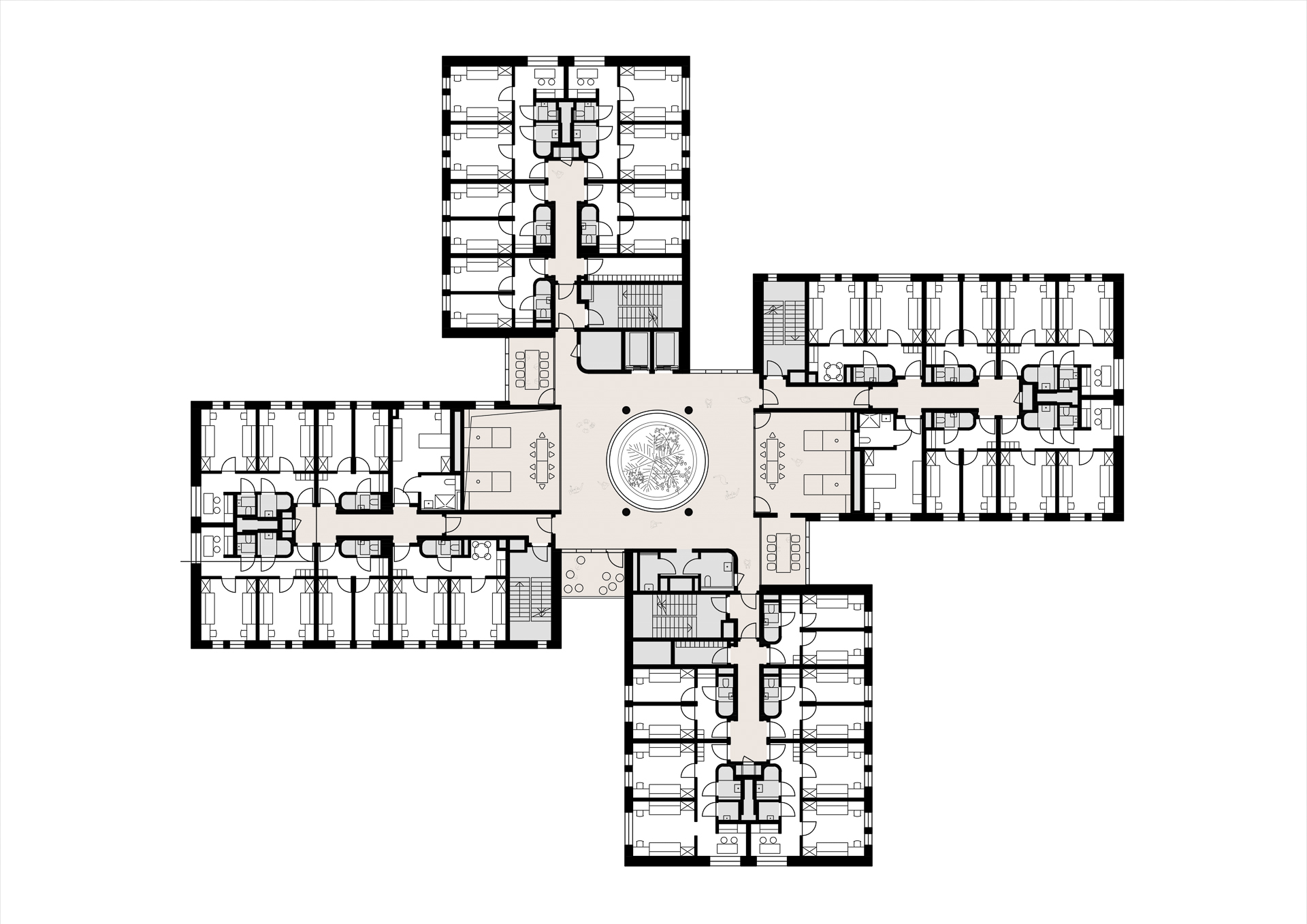
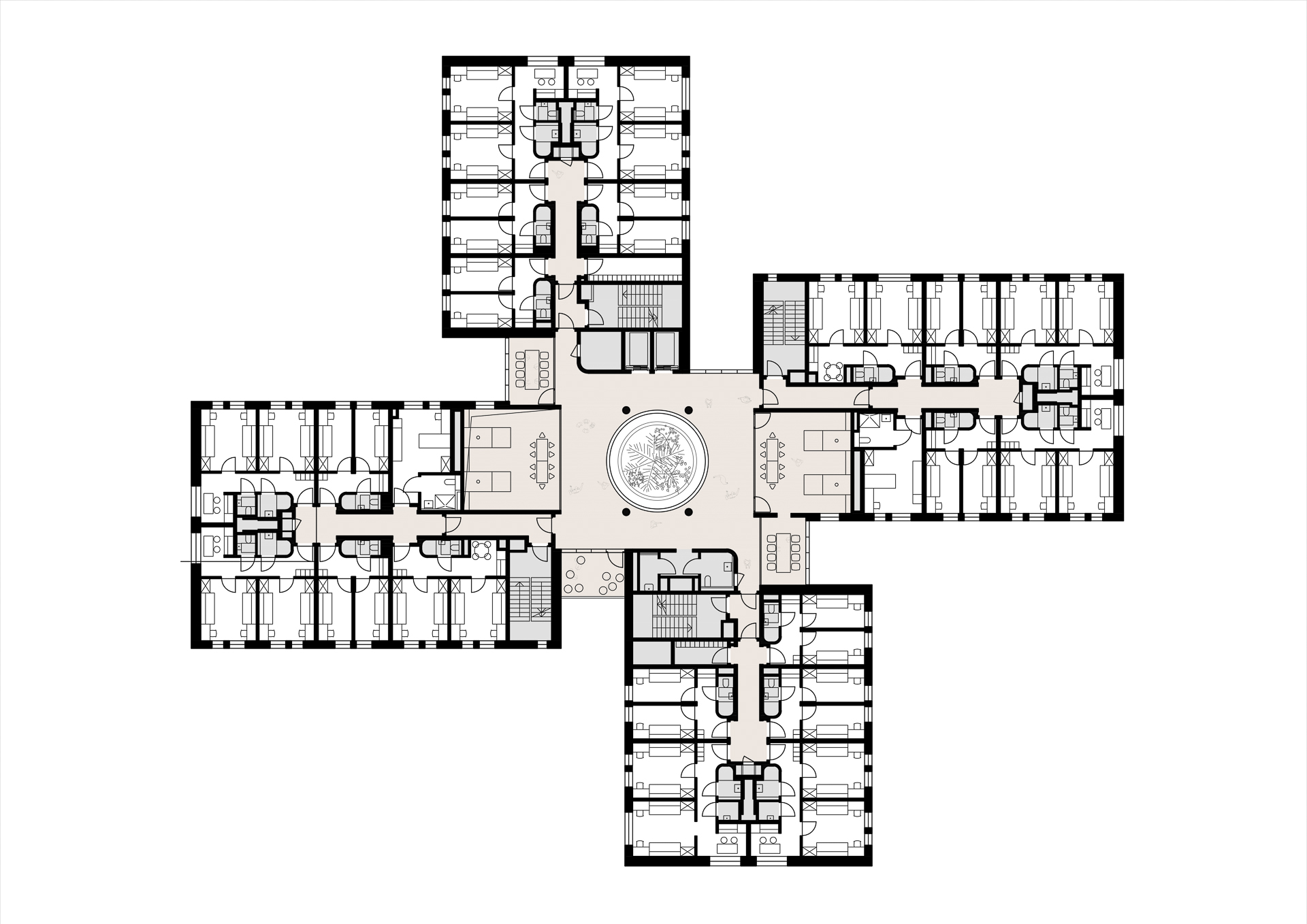
Windmühle als Raumkonzept
Von der Form einer Windmühle inspiriert, entstand ein Raumkonzept aus vier Wohnflügeln, die in der Mitte durch ein rundes Atrium miteinander verbunden sind. Durch das Aufbrechen herkömmlicher, korridorbasierter Grundrisse entstehen keine langen, monotonen Wege mehr – dies begünstigt nicht nur die Orientierung, sondern fördert zugleich das Miteinander. Das zentral platzierte, verglaste Atrium bildet zudem einen gemeinsamen Treffpunkt der Bewohner, um dem sich die gemeinschaftlich genutzten Räume gruppieren. Gleichzeitig durchflutet natürliches Licht die Innenräume und aus allen Fenstern eröffnet sich ein freier Blick ins Grüne.


Der Fitnessraum wird durch thematisch passende Outdoor-Fitnessgeräte ergänzt. © Nate Cook
Funktional, barrierefrei und gemeinschaftsfördernd
Bei der Gestaltung des Projekts sind die Bedürfnisse der künftigen Bewohner konsequent berücksichtigt worden. Erkenntnisse aus der Forschung zu studentischer Interaktion und Gemeinschaftsbildung sind direkt in den Entwurf eingeflossen. Die 138 Wohneinheiten verteilen sich gleichmäßig auf vier Gebäudeflügel und sind über ein zentrales Atrium zugänglich. Besonderer Wert wurde auf Barrierefreiheit gelegt: Das Erdgeschoss ist vollständig stufenlos zugänglich und sechzehn barrierefreie Apartments sind über alle Etagen verteilt. Prägend für den Charakter des Gebäudes sind die sorgfältig gestalteten Gemeinschaftsbereiche auf jeder Etage, die Begegnung, Austausch und Integration fördern. Im Erdgeschoss wird jeder dieser Räume funktional durch einen thematisch passenden Außenbereich ergänzt – etwa durch einen Fitnessraum mit Fitnessgeräten im Freien. So fügt sich das Gebäude harmonisch in die Umgebung ein und unterstützt sowohl soziale Interaktion als auch das Wohlbefinden der Bewohner.


Gemeinschaftsküche im Industriestil, © ONI Studio
Innengestaltung, die Geborgenheit schafft
Die Innenräume verbinden Schlichtheit mit Komfort und schaffen so eine einladende Atmosphäre, die zum Verweilen einlädt. Möbel, Geländer und architektonische Details wurden in einem warmen Rostorange gehalten, was der modernen, klaren Gestaltung zusätzlich Wärme verleiht und stilvoll wirkt. Natürliche Materialien und mit Bedacht ausgewählte Einrichtungselemente unterstützen das Gefühl von Geborgenheit. Die Küchen im modernen Industriestil fördern gemeinsames Kochen, Essen und Beisammensein.
Mehr zum Thema studentisches Wohnen: Das Studierendenwohnheim von NZI Architectes in Paris – jetzt in unserer Datenbank Detail Inspiration entdecken.
Architektur: Projekt Praga
Standort: Warschau (PL)
Tragwerksplanung: PF Project
Landschaftsarchitektur: Pasa Design
TGA-Planung: Studio Klima



















