Student living reimagined
Student Residence for the University of Warsaw by Projekt Praga
Nestled in the landscape is windmill-like student residence No. 7 in Warsaw, designed by Projekt Praga. © Nate Cook
Project No. 7 by Projekt Praga in Warsaw has demonstrated that public buildings can be both architecturally outstanding and functionally well thought out. A well-designed spatial concept promotes community spirit in the new student residence while creating a balance between privacy and social interaction – setting a new standard for modern student living.


The atrium connects the residential wings and serves as a source of light for the interior spaces. © Nate Cook


View of one of the four residential wings, © Nate Cook
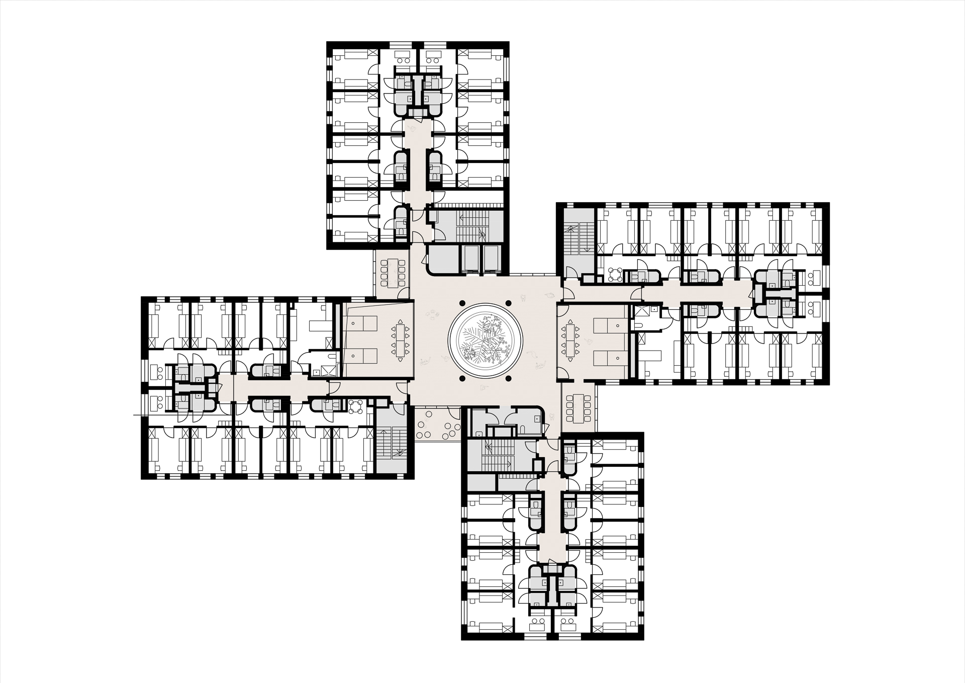
Windmill as a spatial concept
Taking inspiration from the shape of a windmill, the concept of four residential wings connected by a round atrium in the middle was created. Breaking away from conventional corridor-based floor plans means there are no long, monotonous corridors, making it easier to find your way around and promoting social interaction. The glazed atrium, which is located in the centre of the building, also forms a common meeting place for residents, around which the communal areas are grouped. At the same time, natural light floods the interior spaces, and all windows offer an unobstructed view of the greenery outside.


The fitness room is complemented by thematically appropriate outdoor fitness equipment. © Nate Cook
Functional, barrier-free and community-focused
The project was designed with the needs of future residents in mind. Findings from research into student interaction and community building were directly incorporated into the design. The 138 residential units are evenly distributed across the building's four wings and are accessible via a central atrium. Particular emphasis was placed on accessibility: the ground floor is completely step-free, and sixteen barrier-free apartments are distributed across all floors. The carefully designed communal areas on each floor promote interaction, exchange and integration, and are a defining feature of the building. On the ground floor, these rooms are complemented by thematically appropriate outdoor areas, such as a fitness room with outdoor fitness equipment. The building thus blends harmoniously into its surroundings, supporting both social interaction and the well-being of its residents.


Industrial-style communal kitchen, © ONI Studio
Interior design that fosters a sense of security
The interiors strike a balance between simplicity and comfort, creating a welcoming atmosphere that encourages to linger. The furniture, railings and architectural details are kept in a warm, rust-orange colour, which adds warmth to the clean, modern design and creates a stylish look. Natural materials and carefully selected furnishings further enhance this feeling of security. The modern, industrial-style kitchens encourage cooking, dining and socialising.
Discover more on the topic of student housing in our Detail Inspiration database: Student Housing in Paris by NZI Architectes.
Architecture: Projekt Praga
Location: Warsaw (PL)
Structural engineering: PF Project
Landscape architecture: Pasa Design
Building services engineering: Studio Klima



















