Advertorial
Studierendenwohnanlage in München-Giesing
Direkt am Mittleren Ring in München-Giesing setzt die neue Studierendenwohnanlage einen identitätsstiftenden städtebaulichen Akzent. © Rainer Taepper
Lorem Ipsum: Zwischenüberschrift
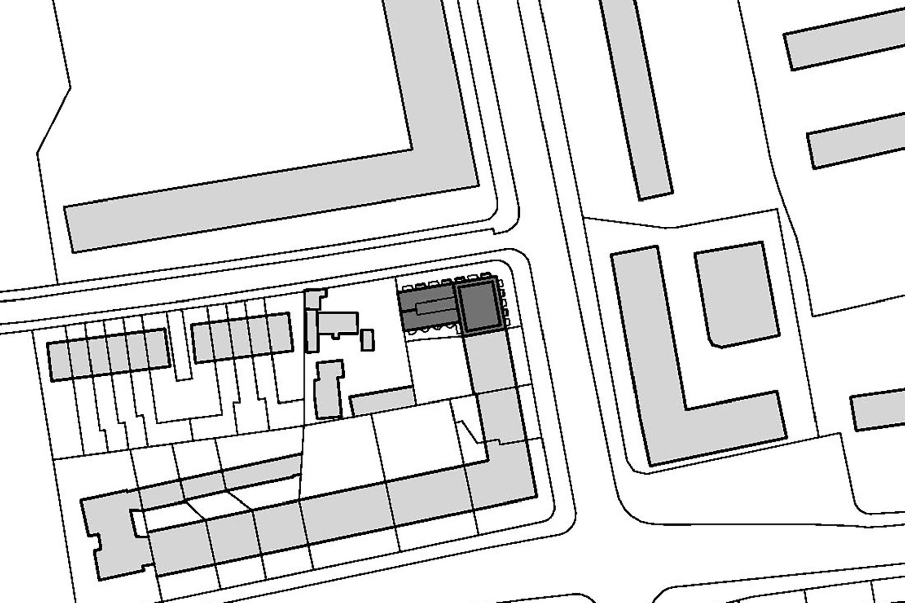
Wohnraum ist knapp – besonders in gefragten Universitätsstädten wie München betrifft das vor allem Studierende. Um diesem Bedarf zu begegnen, wurde auf einem vergleichsweise kleinen Grundstück in München-Giesing eine privatfinanzierte Studierendenwohnanlage realisiert, die als markanter Stadtbaustein neue innerstädtische Qualitäten schafft. Eine besondere Herausforderung war die Lage. Direkt am verkehrsreichen Mittleren Ring gelegen, galt es, Wohnraum mit hoher Aufenthaltsqualität und Außenraumbezug zu realisieren.


Die verglasten Balkonloggien erhöhen die Aufenthaltsqualität, fungieren als Lärmschutz und prägen durch ihre markante Geometrie das städtebauliche Erscheinungsbild. © Rainer Taepper
Lorem Ipsum: Zwischenüberschrift
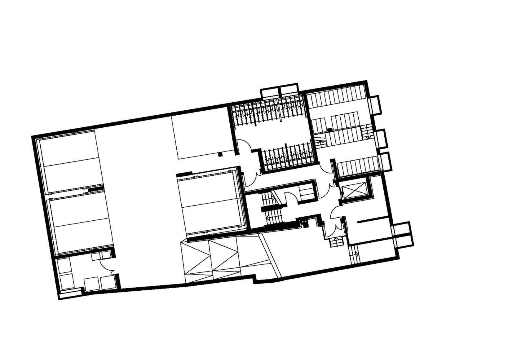
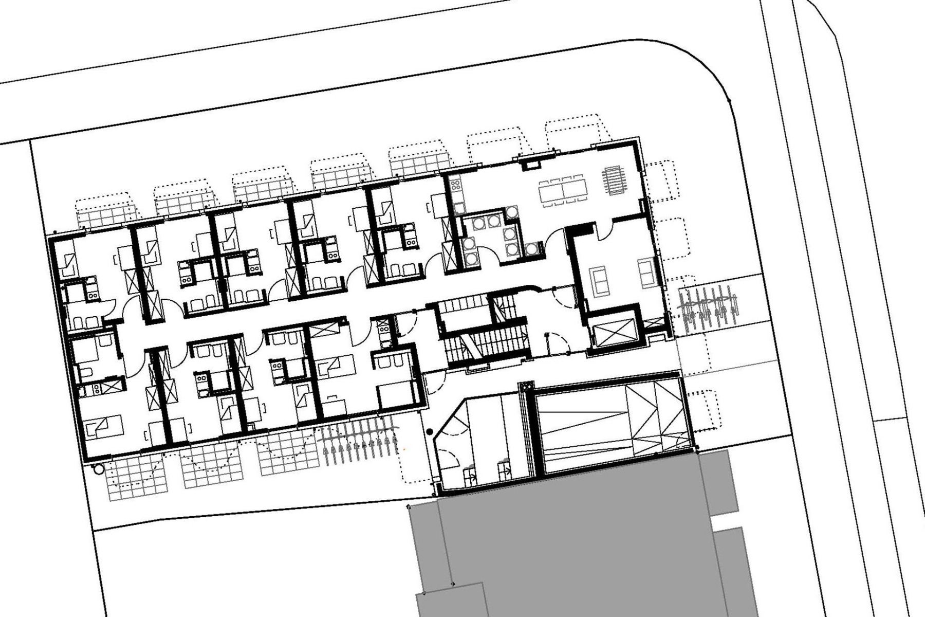
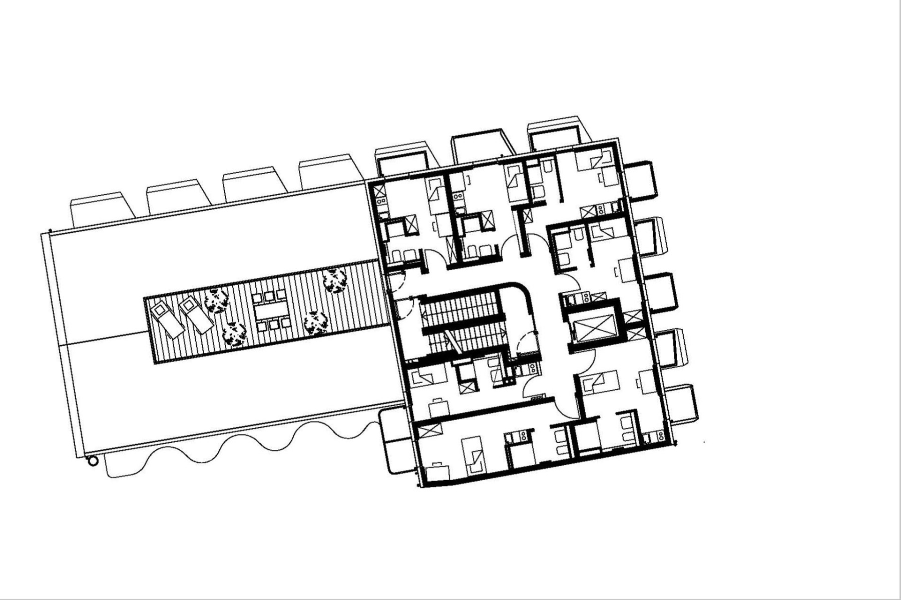
Die Wohnanlage umfasst 65 Einzelapartments mit Wohnflächen zwischen circa 18 und 37 m², davon ist ein Drittel barrierefrei. Das studentische Miteinander wird durch großzügige Gemeinschaftsbereiche gefördert. Eine Tiefgarage, ein Fahrradraum sowie individuell nutzbare Abstellflächen runden das Raumangebot ab.


Die reliefartige Fassadengestaltung mit ihren markanten Vor- und Rücksprüngen verleiht dem Gebäude eine eigenständige Charakteristik. © Rainer Taepper


Bei den Ganzglas-Kuben lassen sich auch die seitlichen Verglasungen auffalten – so entstehen Freisitze mit offenem Eckbereich. © Rainer Taepper
Fassade mit lebendigem Licht- und Schattenspiel
Auf den straßenseitigen Fassaden wechseln sich Loggien aus Glas mit einer Auskragung von bis zu einem Meter und Stahlbeton-Fertigteile mit einer Tiefe von eineinhalb Metern ab. Ihre Anordnung folgt einem stringenten Raster, das die Abmessungen der Studierendenapartments vorgibt. „Die Putzfassade dient als Leinwand für das eigentliche Fassadenmotiv“, erläutert Architekt Jürgen Seifert die gestalterische Intention. „Durch unterschiedlich geneigte Seitenflächen der Kuben entsteht ein vielschichtiges Spiel aus Licht und Schatten – und damit eine lebendige Gebäudehülle.“ Die Glasflächen, die oberhalb der Brüstung als Schiebe-Dreh-Elemente ausgeführt sind, dienen funktional als effektiver Lärmschutz. Geöffnet verwandeln sie die Balkonloggien in private Freisitze. Die Verglasungen dienen zugleich als Pufferzone mit solaren Einträgen. Sie reduzieren Transmissionswärmeverluste und tragen so zu einer effizienten Gebäudehülle bei.


Geschwungene Balkone mit filigranen, in sich verdrehten Stabgeländern akzentuieren die Fassade zum Innenhof. © Rainer Taepper
Filigrane Verglasung mit Schallschutzwirkung
Für maximalen Lichteinfall und effektiven Schallschutz kamen in den öffenbaren Verglasungen der Balkonloggien Schiebe-Dreh-Elemente des Systems Proline T von Solarlux zum Einsatz. Auf Wunsch des Architekten wurden diese mit gerahmten Festverglasungen als Brüstungselemente kombiniert, die besonders schlanke Profilansichten ermöglichen sollten. Ihre Bedienung ist komfortabel und folgt dem Schiebe-Dreh-Prinzip: Jedes Glaselement läuft oben und unten in einer Führungsschiene, lässt sich seitlich verschieben und um 90 Grad nach innen drehen. So können sie platzsparend als unauffällige Glaspakete auf einer Seite geparkt werden.
Der Architekt entschied sich aufgrund der filigranen Anmutung bewusst für das System Proline T: „Die senkrecht rahmenlose Verglasung wirkt angenehm schlank. Ich habe das Schiebe-Dreh-System bereits mehrfach eingesetzt – die Proportionen stimmen, der Schallschutz überzeugt. Mir geht es um filigrane, flexible Lösungen, die Offenheit und Wohlbefinden fördern, anstatt hermetisch abzuschotten.“


Die reliefartige Fassadengestaltung mit ihren markanten Vor- und Rücksprüngen verleiht dem Gebäude eine eigenständige Charakteristik. © Rainer Taepper


Die flexible Balkonverglasung reduziert den Straßenlärm und ermöglicht die ganzjährige Nutzung der Balkonloggien. © Rainer Taepper


© Rainer Taepper
Architektur für Identität und Lebensqualität
Mit der neuen Studierendenwohnanlage in Giesing gelang es, unter schwierigen städtebaulichen Rahmenbedingungen funktionale und gestalterische Ansprüche in Einklang zu bringen. So wird das Gebäude zum Stadtbaustein, der nicht nur auf seine Umgebung reagiert, sondern auch für die Studierenden einen Ort mit Wiedererkennungswert und Wohlfühlatmosphäre schafft. Oder wie es Architekt Jürgen Seifert formuliert: „Der Entwurf soll nach innen für die Bewohner und nach außen für die betrachtende Öffentlichkeit qualitätvoll und identitätsstiftend sein – ein Ort, an dem man gerne lebt.“
Hersteller: Solarlux
Produkt: Schiebe-Dreh-System Proline T von Solarlux
Projekt: Studierendenwohnanlage mit 65 Apartments
Architektur: juergenSeifert.com Architektur planen & beraten GmbH
Adresse: Chiemgaustraße 147, 81549 München-Giesing
Bauherr: BPD Immobilienentwicklung GmbH
Energiestandard: KfW-55-Standard























