Monument für einen Hähnchenzüchter
Sunner Museum in China von Atelier Alter
Drei wechselseitig geneigte Baukörper mit Gründächern beherbergen das neue Firmenmuseum. Die weitgehend geschlossene Gebäudehülle ist mit gefalteten Betonelementen verkleidet. © Cyan & Orange Images
Dass große Firmen sich in eigenen Firmenmuseen verewigen, hat in China eine gewisse Tradition. Ein ungewöhnliches Exemplar eines solchen Privatmuseums hat das Architekturbüro Atelier Alter jetzt in der südostchinesischen Provinz Fujian fertiggestellt. Das Sunner Museum steht am Ausläufer der Wuyi-Berge nahe dem Ort Guangze, wo das gleichnamige Unternehmen – einer der größten Züchter von Brathähnchen in China – seinen Sitz hat. Vor allem dessen Erfolge in den vergangenen vier Jahrzehnten sollen in dem rund 11 000 m² großen Gebäudekomplex gewürdigt werden.


Sanft ansteigende Rampen führen hinauf ins 25 m hohe Atrium und zur öffentlich zugänglichen Dachterrasse. © Highlite Images
Gründach und gefaltete Betonfassade
Die naturschöne Lage des Museums in den Flussauen, umgeben von Wäldern, war eine wesentliche Inspirationsquelle für die Architekten. Vor allem die umliegenden Bergketten beeinflussten den Entwurf: Sie spiegeln sich in den drei begrünten, aufwärts gekrümmten Dachflächen wider, die auch außerhalb der Öffnungszeiten des Museums für die Öffentlichkeit zugänglich sind. Die gefalteten Betonfassaden sind von gefalteten Spundwänden aus Stahl inspiriert, die in der Landschaftsgestaltung verwendet werden. An den Gebäudeeingängen sind sie wie ein Faltenvorhang zurückgeschlagen und machen großen Pfosten-Riegelverglasungen Platz. Das feine Rillenmuster im Beton soll den Wasserabfluss von den Fassaden erleichtern.


Die Ausstellungsräume widmen sich der Geschichte der Hühnerzucht – und der Entwicklungsgeschichte des Huhns seit der Frühzeit. © Highlite Images
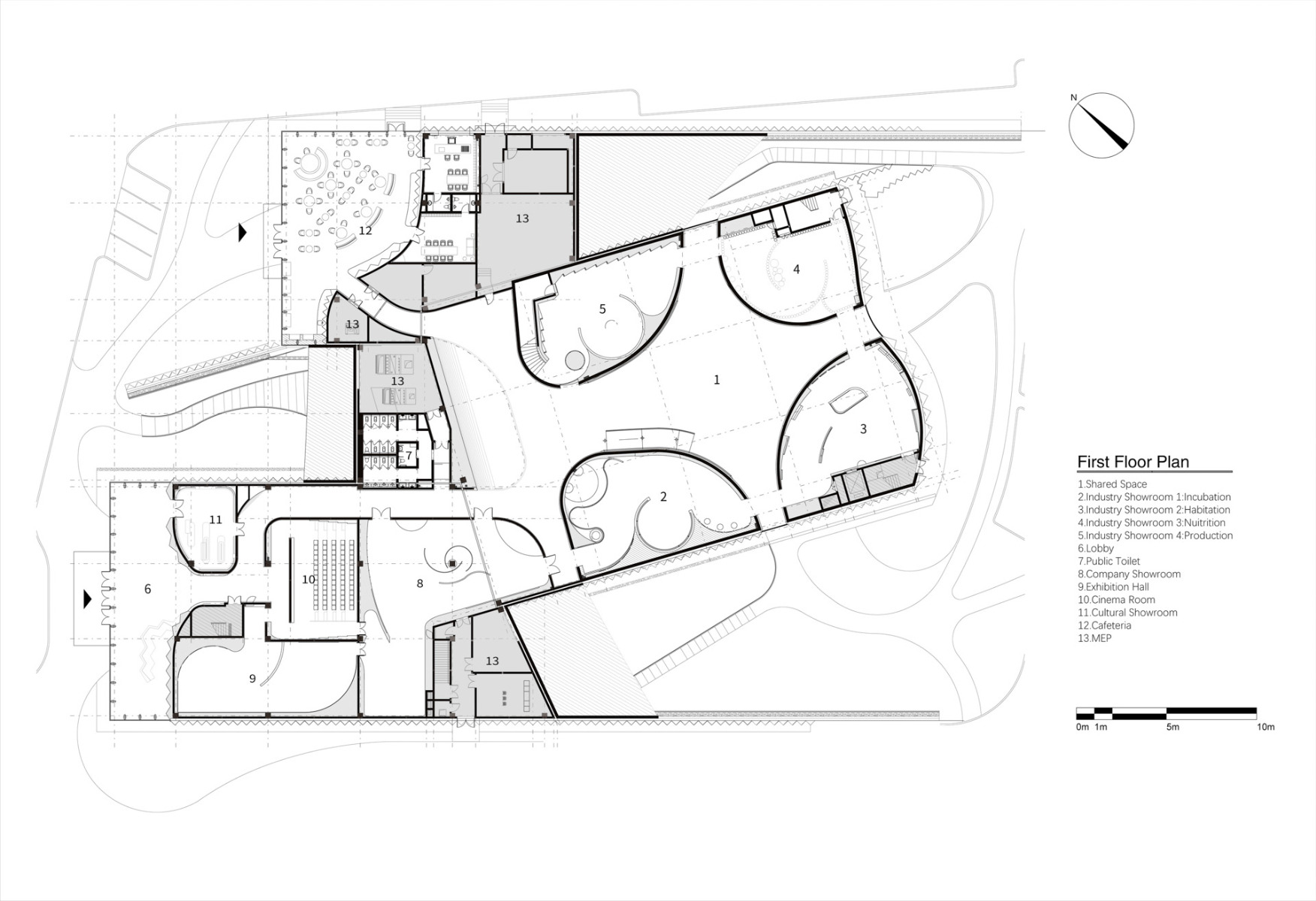
Sieben Ausstellungsräume und ein Atrium
Im Erdgeschoss des Museums finden sich der Empfangsbereich, ein Café, ein Saal für Wechselausstellungen und ein Auditorium. Hinzu kommen fünf der insgesamt sieben Ausstellungssäle, die sich mit der Hühnerzucht und der Unternehmensgeschichte des Auftraggebers befassen. Weiter oben im höchsten der drei Baukörper gibt es zwei weitere Ausstellungsräume, außerdem führt hier der Weg hinaus auf eine Dachterrasse. Gekrümmte Wandscheiben aus Beton umgeben die stützenfreien Säle und grenzen sie von einem 25 m hohen Atrium ab. Der große Erschließungsraum ist das räumliche Herzstück des Hauses. Er erhält Licht von oben durch ein nach Norden geneigtes Glasoberlicht. Die Begrünung der Dachflächen soll helfen, Heiz- und Kühlenergie zu sparen. Im Gegenzug verschwanden die technischen Anlagen vom Dach ins Gebäudeinnere hinter abgehängte Decken und in Technikräume in den schlecht nutzbaren Ecken und Winkeln der künstlichen Berglandschaft.
Architektur: Atelier Alter Architects
Bauherr: Sunner Holding
Standort: Sunner Group Complex, Guangze County, Nanping City, Fujian (CN)
Tragwerksplanung: Beijing No. 3 Construction Engineering
Landschaftsarchitektur: Locus Associates
Fassadenplanung: Ping Zhu
Lichtplanung: Z Design & Planning
Geschossfläche: 11 000 m2
Baukosten: 21 Mio. US-Dollar



























