Monument to a chicken farmer
The Sunner Museum in China by Atelier Alter
Three inclined structures with green roofs house the new company museum. The largely closed building envelope is clad with folded concrete elements. © Cyan & Orange Images
It is somewhat of a tradition in China for large companies to immortalise themselves in their own corporate museums. Atelier Alter's Sunner Museum is an unusual example of such a private museum, located in the south-eastern Chinese province of Fujian. The Sunner Museum stands at the foot of the Wuyi Mountains, near the town of Guangze, home to the eponymous company – one of the largest breeders of broiler chickens in China. The 11,000 m² building complex is intended to honour the company's successes over the past four decades.


Gently sloping ramps lead up to the 25 m high atrium and the publicly accessible roof terrace. © Highlite Images
Green roof and folded concrete facade
The museum's beautiful natural setting in the river meadows, encircled by forests, was a major source of inspiration for the architects. In particular, the surrounding mountain ranges influenced the design, with the three green, upward-curving roof surfaces reflecting their shape. These surfaces are also accessible to the public outside the museum's opening hours. The concrete facades are inspired by the folded steel sheet piles commonly used in landscaping. At the building entrances, they fold back like pleated curtains to make way for large post-and-beam glazing. The fine groove pattern in the concrete is designed to facilitate water drainage from the facades.


The exhibition rooms are dedicated to the history of chicken breeding and the evolutionary history of chickens since prehistoric times. © Highlite Images
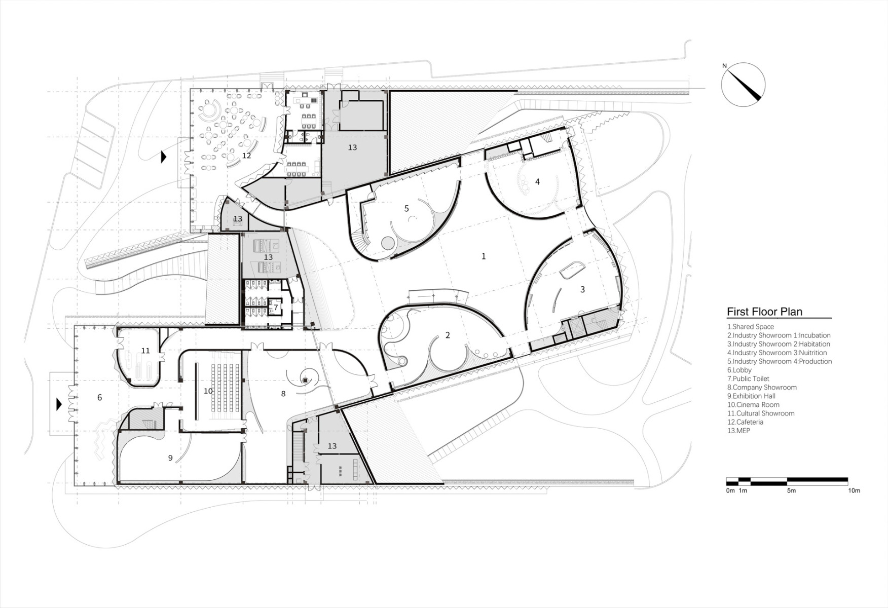
Seven exhibition rooms and an atrium
The ground floor of the museum contains a reception area, a café, a hall for temporary exhibitions, and an auditorium. Five of the seven exhibition rooms are also located here and deal with chicken breeding and the client's company history. Further up, in the tallest of the three buildings, there are two more exhibition rooms and a path leading out to a roof terrace. Curved concrete wall panels surround the column-free halls and separate them from the 25 m high atrium. The large access area is the spatial heart of the building. It receives light from above through a north-facing glass skylight. The greening of the roof surfaces is intended to reduce heating and cooling energy costs. In return, technical installations have been moved from the roof to the interior of the building, hidden behind suspended ceilings and in technical rooms located in the poorly usable corners and angles of the artificial mountain landscape.
Architecture: Atelier Alter Architects
Client: Sunner Holding
Location: Sunner Group Complex, Guangze County, Nanping City, Fujian (CN)
Structural engineering: Beijing No. 3 Construction Engineering
Landscape architecture: Locus Associates
Facade planning: Ping Zhu
Lighting design: Z Design & Planning
Floor area: 11 000 m2
Construction costs: 21 Mio. US-Dollar



























