Wohnhaus mit separatem Praxisraum
Tidal House auf der Nordseeinsel Texel
Blick von Straßenseite aus auf das Tidal House, © Lars van Es
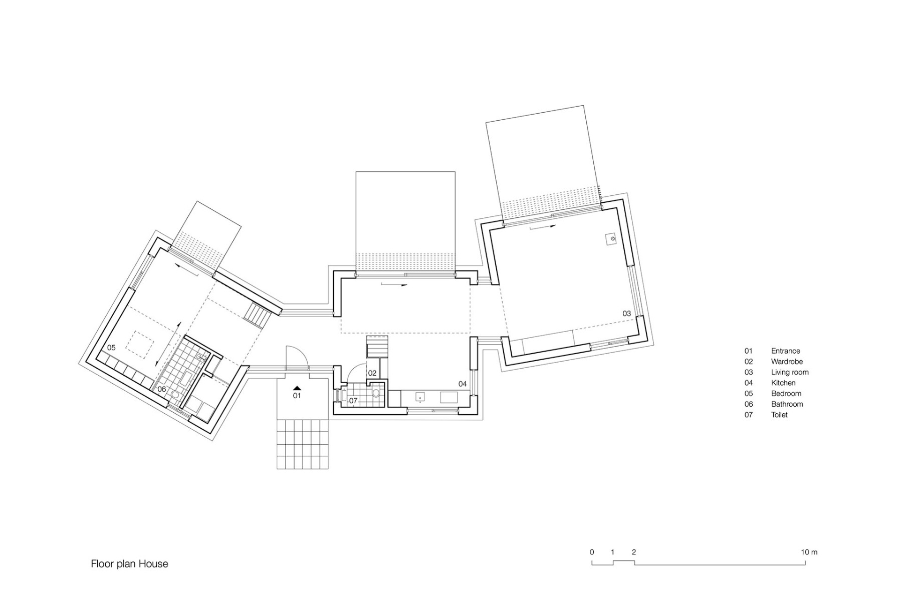
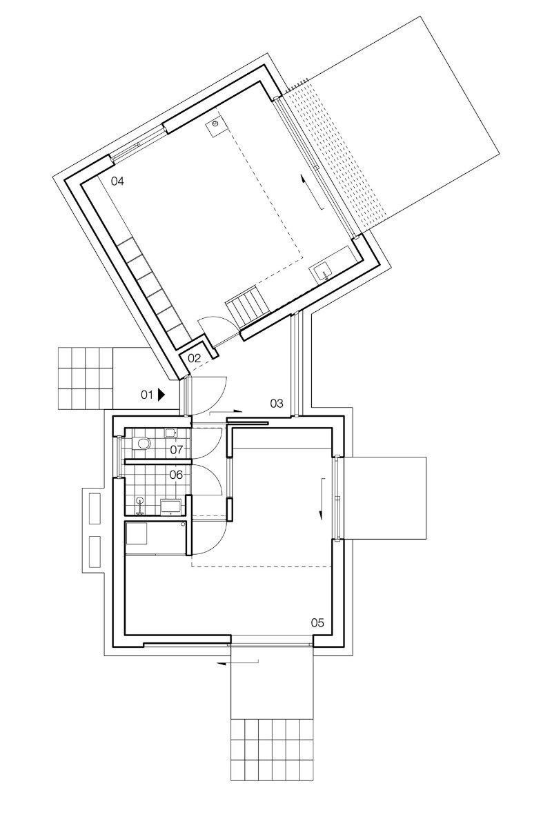
Das niederländische Studio To Po Ma untersucht in seinem Projekt „The Tidal House“ die Beziehungen zwischen Material, Landwirtschaft und Bewohnern. Das Haus steht auf der Insel Texel am Rande eines ländlichen Gebietes, umgeben von Wald, Dünen und der Nordsee. Der Entwurf besteht aus einem Wohnbereich und einer separaten Praxis mit Wartezimmer.


Das Tidal House umfasst einen Wohnbereich und separate Praxisräume. © Lars van Es
Von den Gezeiten zurückgelassen
Das Tidal House besteht aus fünf ähnlichen Volumen, die scheinbar willkürlich auf dem Gelände platziert sind. Die einzelnen Baukörper unterscheiden sich durch ihre unterschiedliche Drehung und Verschiebung. Dadurch entsteht die Illusion, dass die Gezeiten die Körper hinterlassen haben. Die Freiräume zwischen den Volumen sollen in Zukunft das Haus mit der Landschaft verbinden.
Lichtspiel
Licht und Atmosphäre der Innenräume verändern sich durch die dynamische Umgebung. Zur Straßenseite sind die Baukörper bewusst weitgehend geschlossen gehalten. Auf der Rückseite ermöglichen große Fenster und Schiebetüren den Bezug zur Landschaft.


Große Fenster und Schiebetüren bringen Licht in die Wohn- und Praxisräume. © Lars van Es
Konstruierte Landschaft
Die Innenräume bestehen aus offenen, durchgehenden Räumen. Eine horizontale Differenzierung wurde durch einen Materialwechsel in 2,40 m Höhe geschaffen. Dieser Materialwechsel zwischen Birkensperrholz, Stuck und Stahlträgern beeinflusst das Erleben des Innenraums als gebaute Landschaft von Räumen und Übergängen.


Holz charakterisiert den hellen Wohnraum. © Lars van Es


Im Innenraum kommen verschiedene Materialien wie Holz, Stahl und Stuck zum Einsatz. © Lars van Es
Nachhaltig bauen
Das Thema Nachhaltigkeit ist im Entwurf durch mehrere Elemente berücksichtigt. Zum Beispiel durch die vorgefertigte Holzstruktur, eine Fassadenverkleidung und Fensterrahmen aus nachhaltigem modifiziertem Holz. Darüber hinaus besteht die Dacheindeckung aus recyceltem Aluminium. Solarzellen auf dem Dach des Schuppens und eine Luft-Wasser-Wärmepumpe erzeugen Energie.
Architektur: Studio to po ma
Bauherr: privat
Standort: Texel island, Den Burg (NL)
Bauunternehmen: Bouw & Timmerbedrijf Texel
























