Bauen im Kontext
Kunsthaus in Göttingen
Foto: Dominik Keul
Mit dem Kunsthaus von Atelier ST ist im Süden der Göttinger Altstadt ein Gebäude für Wechselausstellungen zeitgenössischer Künstler entstanden, das sich auf Arbeiten auf Papier spezialisiert hat. Die treibende Kraft hinter dem Neubau war der Verleger Gerhard Steidl, der zwei Häuser weiter einen Verlag für Kunstbücher, Philosophie und politische Literatur betreibt und nun auch als Gründungsdirektor der neuen Kultureinrichtung fungiert. Im Nachbargebäude, einem jahrhundertealten Fachwerkhaus, hat er auch das Günter-Grass-Archiv etabliert. Zusammen bilden diese Einrichtungen die Keimzelle des Kunstquartiers „KuQua“, das die Stadt Göttingen in der Gegend etablieren will.
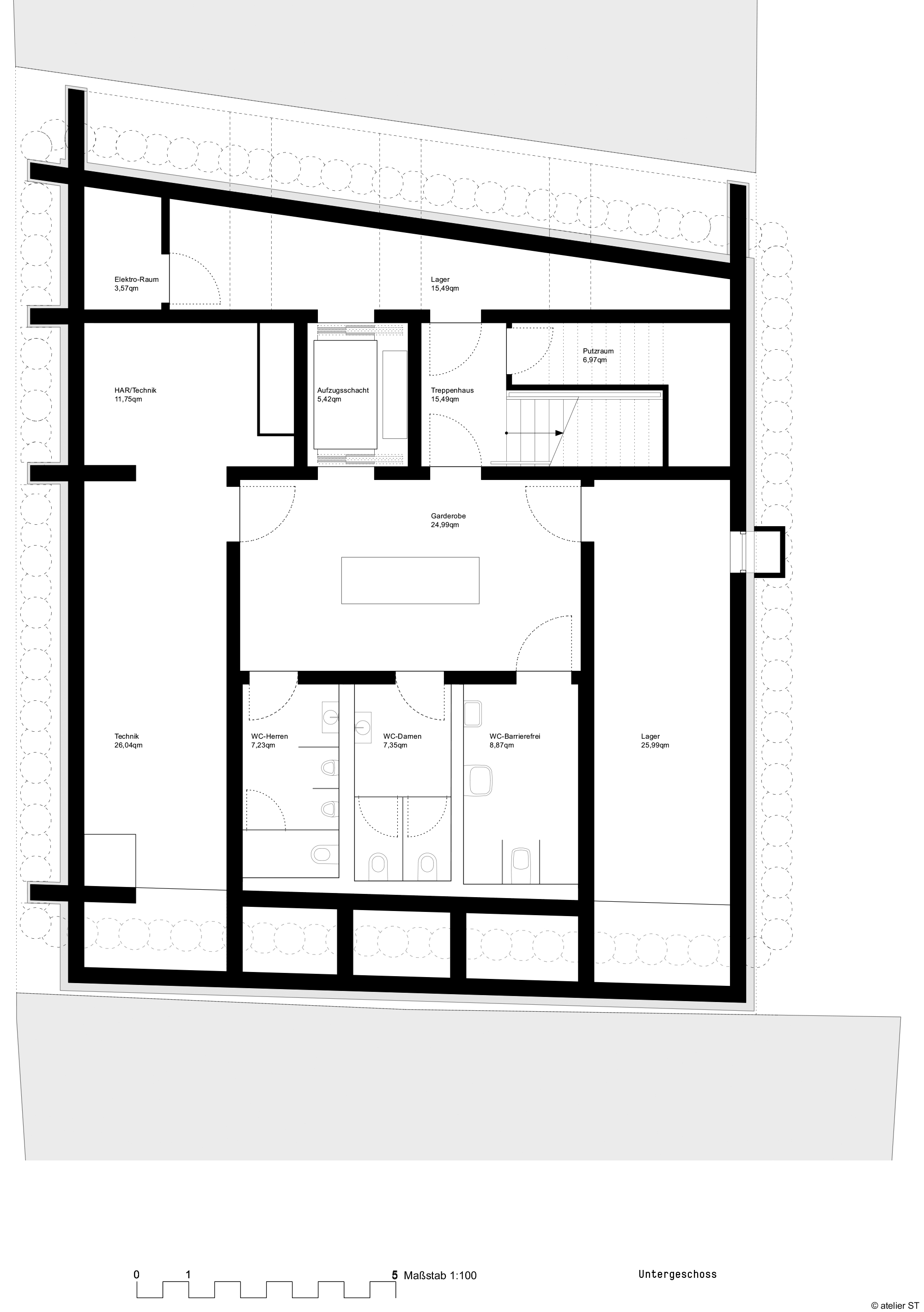
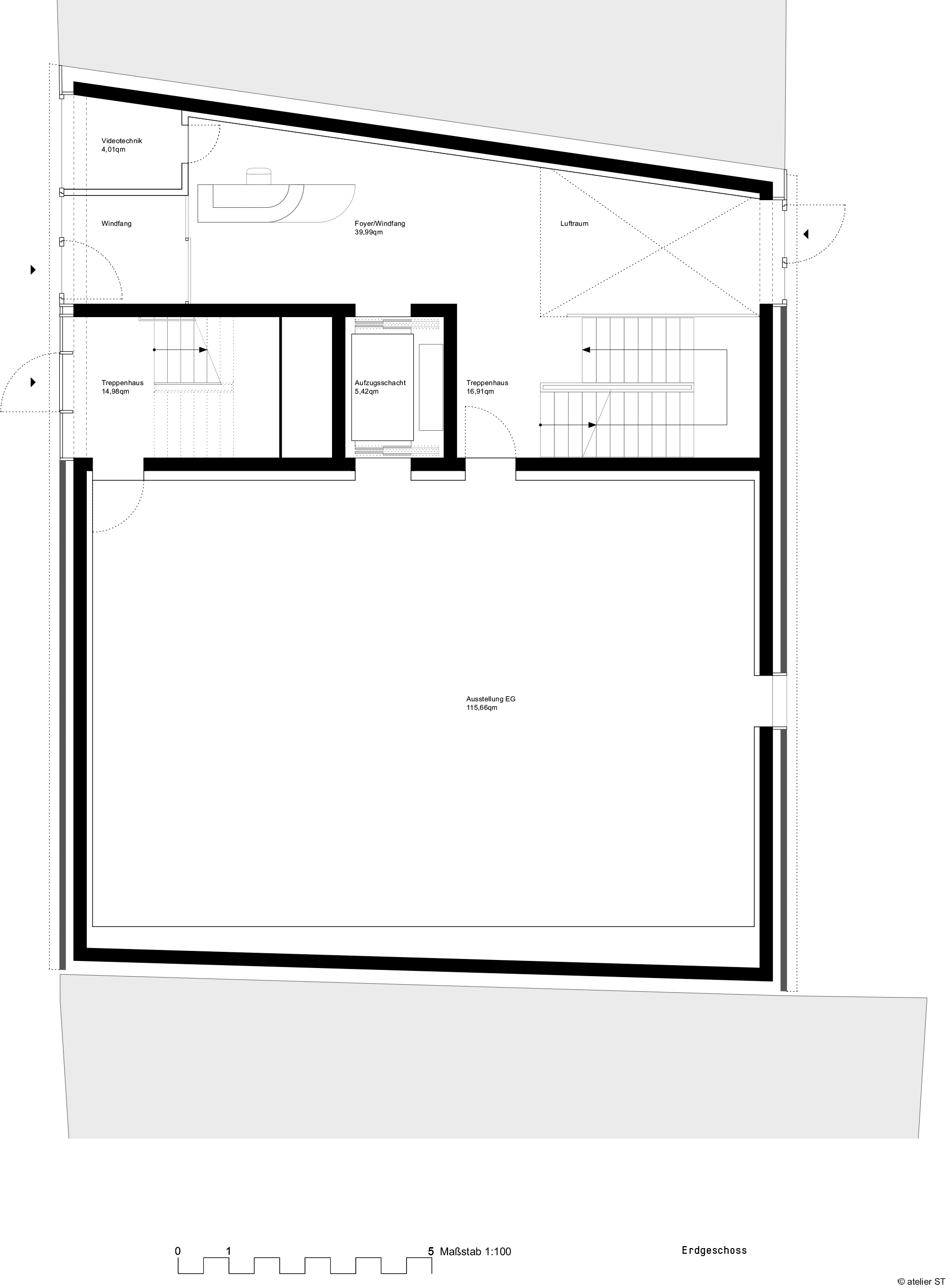
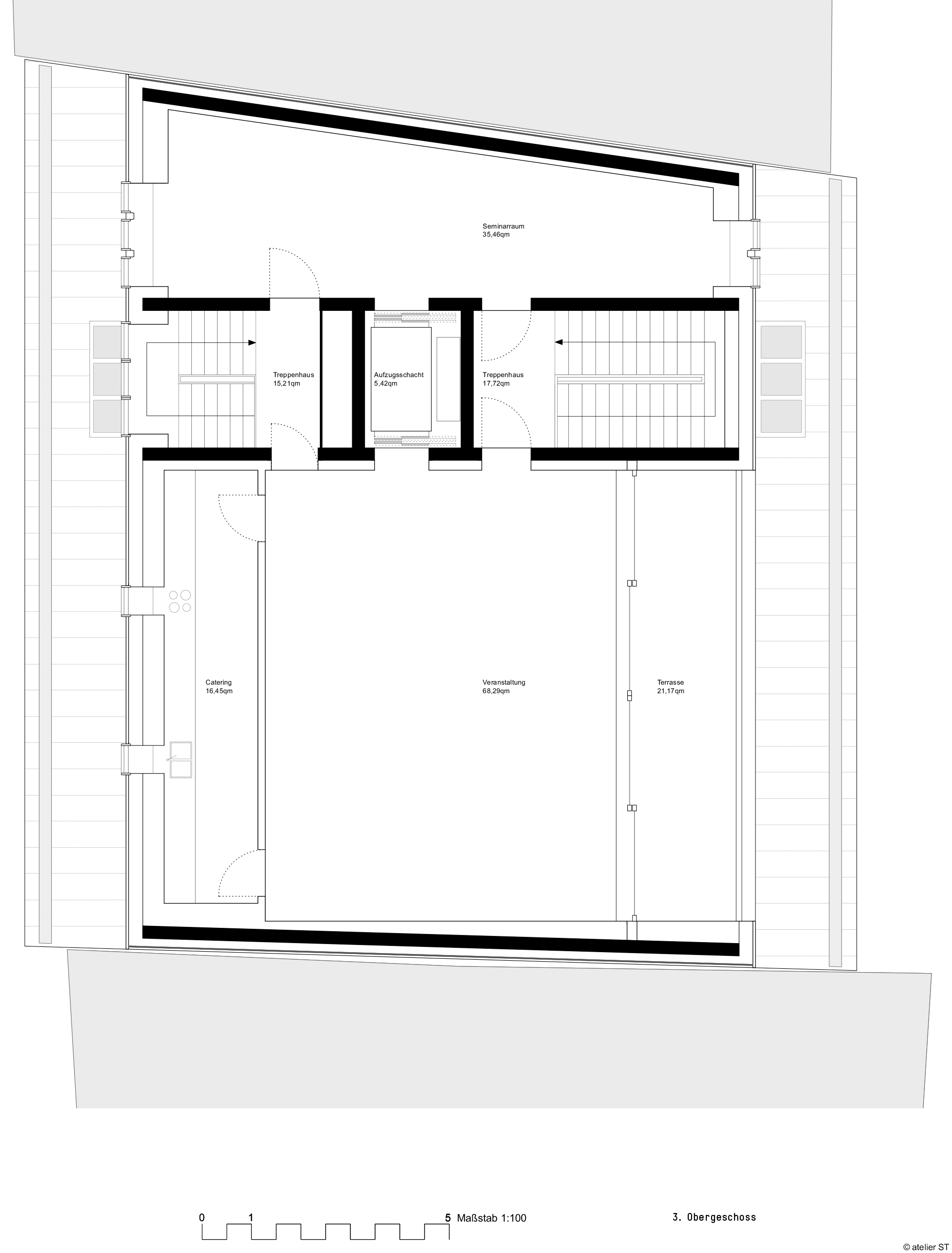
Bei ihrem Entwurf für den Neubau ließen sich Atelier ST sichtlich von der Bauform der umliegenden Fachwerkhäuser mit ihrem geschossweise auskragenden Rähm inspirieren. Eine Entscheidung, die auch durch den Bebauungsplan begünstigt wurde, dessen Vorgaben die Architekten bis auf den letzten Zentimeter ausnutzten. So gelang es ihnen, auf 140 m2 Grundfläche insgesamt 500 m2 Ausstellungs- und Veranstaltungsräume unterzubringen. Das Erdgeschoss und die beiden Ebenen darüber umfassen je einen 120 m2 großen und 3,20 m hohen, stützenfreien Galerieraum. Unter dem Spitzdach gibt es ein „Forum“ für Veranstaltungen und Kunstvermittlung mit etwa 100 m2 Fläche und eine kleine Ausgabeküche. Lager, Technikflächen, Garderobe und Sanitäranlagen sind allesamt im Untergeschoss untergebracht.
Während Dachfenster und eine zurückgesetzte Dachterrasse auf der Hofseite das oberste Geschoss großzügig mit Tageslicht versorgen, gibt es in den unteren Etagen nur wenige schlanke, bodentiefe Fenster, die sich aus konservatorischen Gründen mit Schiebeelementen abdunkeln lassen. Die Fotografien, Drucke und Zeichnungen können so ganz ohne UV-Strahlung im LED-Licht präsentiert werden.
Die enge Beziehung des Hauses und seines Spiritus rector Steidl zum Papier hat auch an den Fassaden ihre Spuren hinterlassen: Mit einem gekämmten Modellierputz haben die Architekten hier die Struktur großer Papierstapel, wie sie in Archiven und Verlagen anzutreffen sind, nachempfunden. Dahinter verbirgt sich eine gut gedämmte, zweischalige Außenwandkonstruktion. Strom, Wärme und Kälte für das Gebäude liefert ein Gas-Blockheizkraftwerk, dessen Abwärme in Kombination mit einer Absorptionskältemaschine ganzjährig für die Klimatisierung des Gebäudes genutzt wird. Durch ein adiabates Rückkühlsystem kann die natürliche Verdunstungskälte für die Kälteerzeugung genutzt werden. Durch die Kombination aus Kraft-Wärme-Kopplung, Wärmerückgewinnung, LED-Technik und guter Dämmung erreicht das Kunsthaus den Energiestandard eines KfW-Effizienzhauses 55.
Mehr dazu in Detail 1/2.2022 und in unserer Datenbank Detail Inspiration.
Weitere Informationen:
Architektur: Atelier ST
Bauherr: Stadt Göttingen, vertreten durch: Fachdienst Hochbau und Objektverwaltung
Standort: Düstere Str. 7, 37073 Göttingen (DE)
Tragwerksplanung: MVD - Ingenieurgesellschaft für Bauwesen
Ausschreibung/Bauleitung: ONP Planungs + Projekt GmbH
TGA-Planung: BBS GmbH
Lichtplanung: Fischer & Partner

















