// Check if the article Layout ?>
Türkiser Faden: Coworking und Kunsthandwerk im »Hubba-to« in Bangkok
Foto: Wison Tungthunya
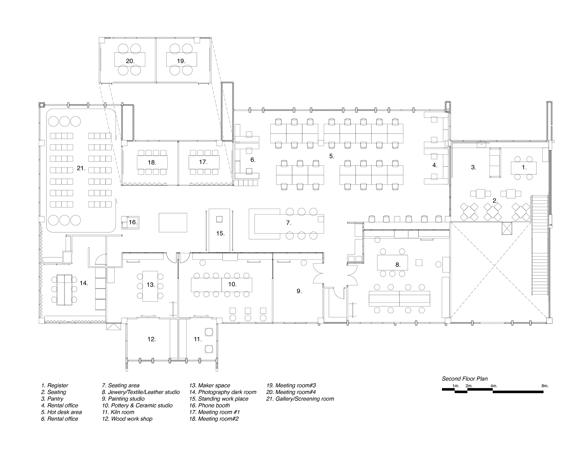
Der Coworking Space »Hubba-to« mit Flächen für Kunsthandwerk umfasst, auf zwei Geschosse verteilt, rund 1000 Quadratmeter. Während das Obergeschoss flächenmäßig den größten Teil ausmacht, wartet das Erdgeschoss mit auffallend hohen Decken auf. Der Eingangsbereich verbindet die beiden Niveaus über einen großen Luftraum miteinander und ermöglicht Blickbezüge zwischen oben und unten. Rechts poitioniert ist die Treppe, die in das Büro- und Arbeitslevel weiterführt. Zentral empfängt den Besucher ein kleines Café mit freistehender Theke, die direkt an den offenen Liftschacht des Lastenaufzugs anschließt. Vorbei an ein paar Tischgruppen gelangt man in den hinteren Teil, der sich über Eck nach links weiterentwickelt und aus Einzelhandel, loungeartig angelegten Sitzgruppen und dem der Kulinarik gewidmeten »Food lab« besteht. Eine kleine Terrasse bietet die Möglichkeit, seine Pause im Freien zu genießen.
Über die Stiege gelangt man in das Obergeschoss, das sich ganz dem Arbeiten widmet. Administrative Funktionen, sowie eine Teeküche mit Sitzgelegenheiten empfangen hier die Nutzer von »Hubba-to«. Direkt im Anschluss fügen sich in einem großen offenen Raum verschiedene Arbeitsmodelle aneinander. Den Anfang bildet ein Desksharing-Bereich, in dem jeder arbeitet, wo er gerade Platz findet. Zusätzlich gibt es an den Wänden einige fixe Schreibtischplätze. Ein langer Tisch für Teamaktivitäten steht ebenso wie ein Stehtisch zur freien Verfügung. Des Weiteren findet man eine Telefonzelle, die störungsfreie Kommunikation garantiert, vier separate Konferenzräume und einen Bereich für Vorträge oder Präsentationen, der bei Bedarf mit Vorhängen abgetrennt werden kann. An die vielfältigen Büroflächen schließen abgeschlossene Räume an, die unterschiedliche handwerkliche Aktivitäten ermöglichen. Diese setzen sich aus einem Atelier für Schmuck, Textil und Leder, einer Töpferei- und Keramikabteilung, einer Holzwerkstätte, sowie einer Dunkelkammer zusammen.
Das Design von »Hubba-to« entwickeln die Architekten Supermachine Studio ausgehend von der Philosophie des Networkings, auf der das Coworking-Konzept basiert. Sie inszenieren die notwendigen Installationen als lebendige Struktur, die sich durch sämtliche Räume frisst und alles miteinander vernetzt und verbindet. Die türkisen Rohre laufen entlang der Wände und Decken und enden in unterschiedlichen Beleuchtungselementen, die zum Hingucker werden. Komplettiert wird der Coworking-Space von rohen grauen Sichtbetonoberflächen, schwarz lackierten Stahlpaneelen, Acrylfarbe und stahlgerahmten Fenster und Türen, die gemeinsam mit den sichtbaren Leitungsführungen den Industriecharakter stimmig abrunden.






















