// Check if the article Layout ?>
Turquoise Threads: Coworking and Handicrafts at Hubba-to in Bangkok
Foto: Wison Tungthunya
Distributed over two storeys, the Hubba-to coworking space, which includes areas for handicrafts, covers around 1,000 square metres. While the upper storey takes up the greater part of the area, the ground floor features strikingly high ceilings. The two levels are joined via a large atrium in the entryway, which enables views between upstairs and downstairs. The stairway is positioned to the right; it leads to the office and working level. In the centre, a small café receives visitors with a free-standing counter that is directly adjacent to the open shaft of the freight elevator. Just past a few table groupings, visitors reach the rear of the complex, which turns a corner to the left and accommodates retail spaces, lounge-like seating arrangements and the Food Lab, which is devoted to gastronomy. A small terrace offers visitors the possibility to enjoy a break in the open air.
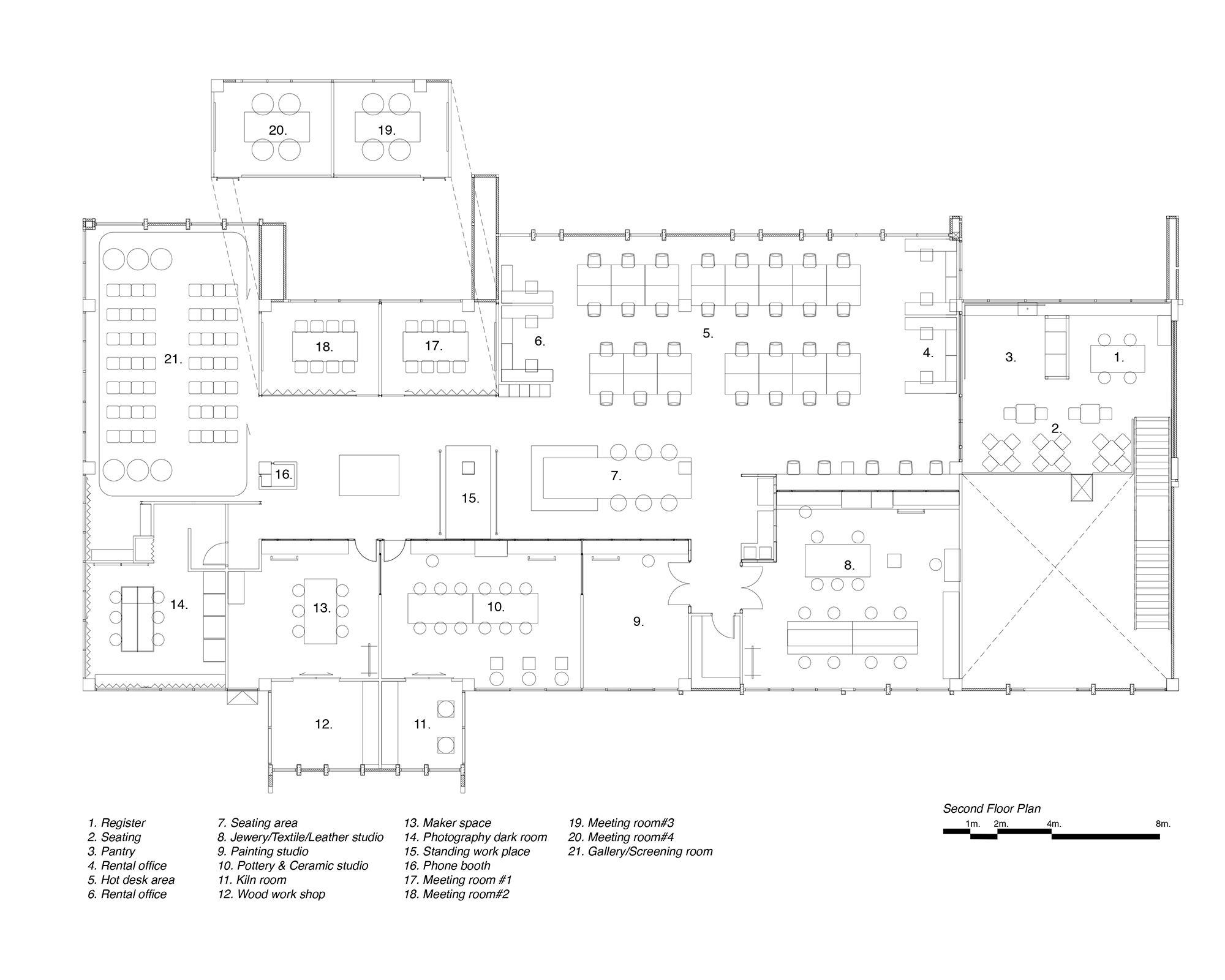
The stairs lead to the second floor, which is completely devoted to work. Administrative functions such as the kitchenette with seating, receive Hubba-to’s users here. Directly next door, various working models have been arranged side by side. These start with a desk-sharing area, where people work wherever they can find room. Furthermore, there are a few fixed desk spaces along the walls. A long table is available for team activities, as is a standing-height table. There are also a telephone booth that ensures uninterrupted communication, four separate conference rooms and an area for lectures and presentations; this zone can be curtained off as needed. Many closed-off rooms that enable handiwork are located next to the office areas. These rooms comprise a studio for jewellery, textiles and leather, a pottery and ceramics section, a woodworking shop and a darkroom.
The architects from Supermachine Studio developed the design for Hubba-to according to the philosophy of networking, which is based on the concept of coworking. They have staged the required installations as a living structure that winds its way through all the spaces, connecting and interweaving everything with everything else. The turquoise pipes run along the walls and ceilings and end in various lighting elements that are eye-catchers in their own right. The coworking space is rounded off with rough grey exposed-concrete surfaces, black-lacquered steel panels, acrylic paint and steel-framed windows and doors which, with the visible cable runs, provide a suitable complement to the industrial character of the space.
The stairs lead to the second floor, which is completely devoted to work. Administrative functions such as the kitchenette with seating, receive Hubba-to’s users here. Directly next door, various working models have been arranged side by side. These start with a desk-sharing area, where people work wherever they can find room. Furthermore, there are a few fixed desk spaces along the walls. A long table is available for team activities, as is a standing-height table. There are also a telephone booth that ensures uninterrupted communication, four separate conference rooms and an area for lectures and presentations; this zone can be curtained off as needed. Many closed-off rooms that enable handiwork are located next to the office areas. These rooms comprise a studio for jewellery, textiles and leather, a pottery and ceramics section, a woodworking shop and a darkroom.
The architects from Supermachine Studio developed the design for Hubba-to according to the philosophy of networking, which is based on the concept of coworking. They have staged the required installations as a living structure that winds its way through all the spaces, connecting and interweaving everything with everything else. The turquoise pipes run along the walls and ceilings and end in various lighting elements that are eye-catchers in their own right. The coworking space is rounded off with rough grey exposed-concrete surfaces, black-lacquered steel panels, acrylic paint and steel-framed windows and doors which, with the visible cable runs, provide a suitable complement to the industrial character of the space.






















