Umsteigen, bitte! Bike & Ride-Station in Kingston von Sarah Wigglesworth Architects
Foto: BuroHappold
Nicht, dass Boris Johnson bisher ein besonders Faible für seine europäischen Nachbarstaaten an den Tag gelegt hätte. 2014 jedoch, noch als Bürgermeister von London, lobte er das Programm der „Mini-Hollands“ aus: Die äußeren Londoner Stadtbezirke sollten sich mit Konzepten zur Förderung des Fahrradverkehrs um insgesamt 100 Millionen Pfund Fördermittel bewerben. Namensgeber und ideelles Vorbild waren dabei die niederländischen Großstädte, die auf dem Weg schon einige Schritte weiter sind als die britischen. Drei Bezirke – Enfield, Waltham Forest und Kingston-upon-Thames – erhielten schließlich den Zuschlag für den Löwenanteil dieser Summe und ertüchtigen seither ihre Fahrradinfrastruktur.
Dreiteilige Maßnahme
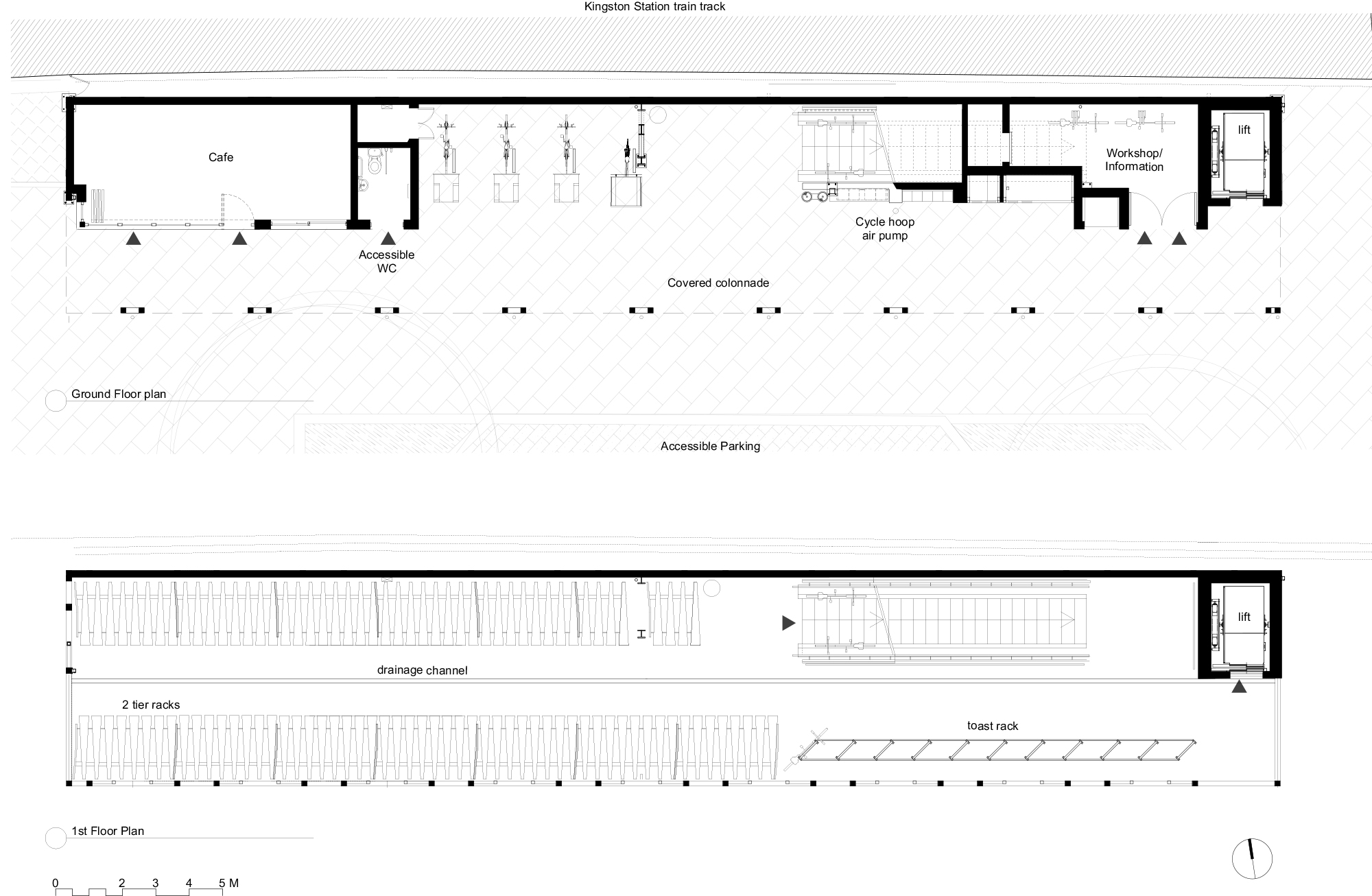
Mit der Umgestaltung ihres Bahnhofsumfelds hat der Bezirk Kingston im Südwesten von London nun einen Schlüsselbaustein seines Konzepts umgesetzt. Die von Sarah Wigglesworth Architects und den Ingenieuren von BuroHappold geplante Maßnahme besteht aus drei Teilen: einem neu gestalteten und gepflasterten Bahnhofsvorplatz, einer dreigeschossigen, „Cycle Hub“ genannten Fahrradgarage und einer neuen Brücke über die Nationalstraße A307, die unweit des Bahnhofs die Gleise unterquert. Letztere wurde komplett vorgefertigt, ist breiter als ihre Vorgängerin und wiegt doch nur ein Drittel davon. Entlang des Gleisbetts ist außerdem ein neuer, linearer Park entstanden, der das Zentrum von Kingston mit dem westlich gelegenen Themseufer und dem „Bushy Park“ rund um den Königspalast Hampton Court verbindet.
398 Fahrräder auf drei Ebenen
Der sichtbarste Bestandteil der Baumaßnahmen ist sicher der Cycle Hub: 398 Fahrräder finden auf seinen drei Ebenen Platz. Im Erdgeschoss gibt es eine Fahrradwerkstatt; außerdem sollen hier künftig noch ein Café und ein (Lasten)fahrradverleih entstehen. Ein in unterschiedlich große Dreiecke aufgelöstes Stahlfachwerk gliedert die beiden Längsfassaden. Dem eigenen Bekunden nach greifen die Architekten damit Motive der Gotik und der historischen Bebauung von Kingston auf. Zumindest im direkten Bahnhofsumfeld lässt sich dieser Bezug indes kaum nachvollziehen. Dafür haben die Diagonalstütze und -streben noch eine ganz prosaische Funktion: Sie tragen nicht nur die Geschossdecken, sondern steifen das Gebäude zugleich in Längsrichtung aus.


















