All Change, Please! Bike & Ride Station in Kingston by Sarah Wigglesworth Architects
Foto: BuroHappold
Not that Boris Johnson displays much fondness these days for Britain’s neighbouring countries but back in 2014, when he was still mayor of London, he initiated a programme of Mini-Hollands in which London’s outer districts were invited to compete for £100 million in funding with concepts for fostering bicycle traffic. The programme took its name and inspiration from the Dutch cities several steps further along on this path than British ones. The lion’s share of the competition sum was ultimately won by three districts – Enfield, Waltham Forest and Kingston upon Thames – all of which have since been upgrading their cycling infrastructure.
Three-part measure
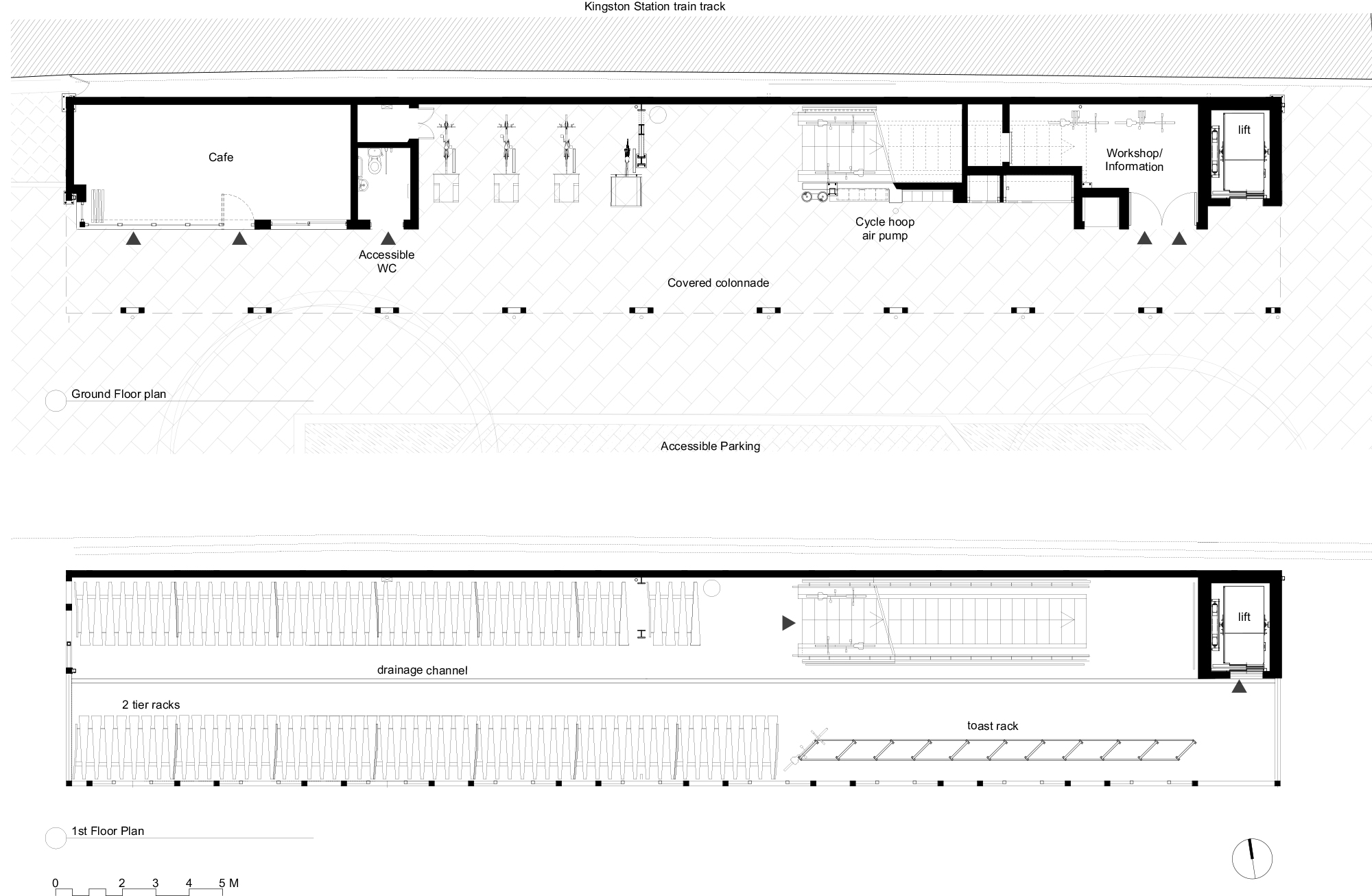
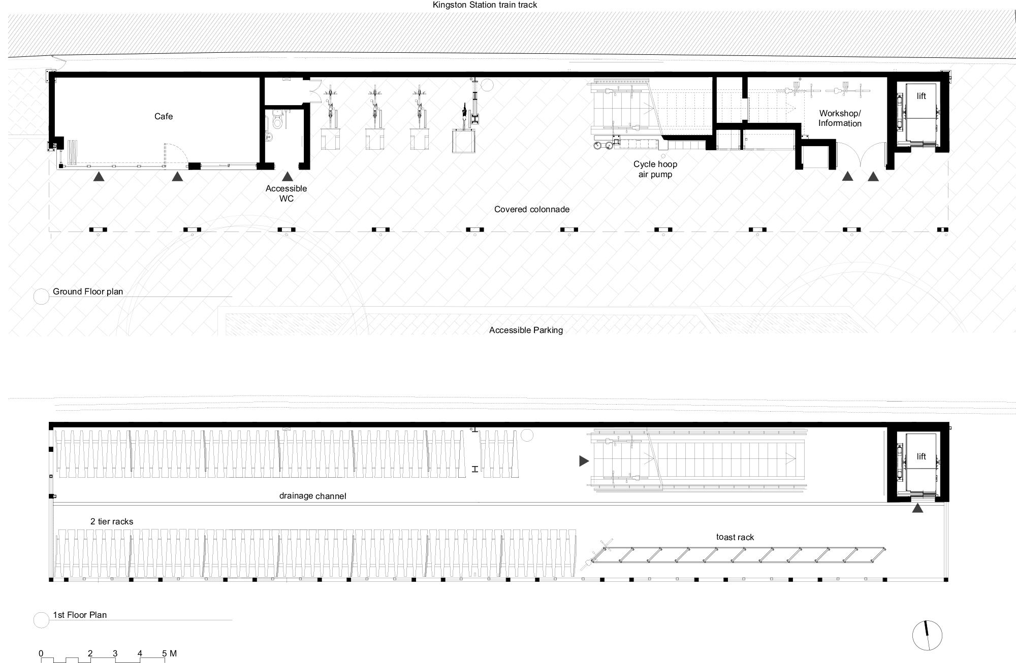
Kingston, a district of southwestern London, has now completed a key component in its concept by remodelling the environs of the train station. The measure planned by Sarah Wigglesworth Architects and the engineers from Buro Happold consists of a three-part one involving a redesigned and re-paved station plaza, a three-storey bike park named the Cycle Hub, and a new bridge over the A307 main road that passes below the tracks at the train station. The new bridge was completely fabricated offsite, is wider than its predecessor and weighs a third less. A new linear park has also been created adjacent to the rail tracks to link downtown Kingston with the banks of the Thames to the west and Bushy Park in the Hampton Court Palace area.
398 bikes on three storeys
The most visible element in the building measures is undoubtedly the Cycle Hub, which offers parking space for 398 bikes on three storeys and a cycle repair workshop on the ground floor, where a café and (cargo) cycle rental are also to come about. The building’s two long façades are articulated by a steel lattice of triangles of differing size – in reference, according to the architects – to Kingston’s gothic motifs and historical buildings, neither of which are much apparent, at least not in the immediate area of the station. All the same, the diagonal trusses and bracings additionally fulfil a very prosaic function in that they not only support the Cycle Hub’s intermediate floors but also provide it longitudinal stiffening.


















