Wohnen auf der Lagerhalle
Veemgebouw von Caruso St John Architects
Veemgebouw in Eindhoven, © Filip Dujardin
Caruso St John Architects bauten das ehemalige Lagergebäude auf dem Philips-Areal in Eindhoven behutsam zu einem multifunktionalen Gebäude um. Nun kommen eine Markthalle, Büros, temporäre Nutzungen, ein Wohngebäude und ein Parkhaus darin unter.


Ein farbiger Eingang führt in das multifunktionale Gebäude. © Filip Dujardin
Das ehemalige Lagergebäude Veemgebouw am Stadtrand von Eindhoven ist eine Architekturikone, die für die Firmengeschichte von Philips steht. Der Konzern prägte die Stadt über viele Jahre und trug zu ihrem Wachstum bei, da die zahlreichen Mitarbeiter Wohnraum vor Ort benötigten. Doch 1996 schloss Philips die Produktionsstätten in der holländischen Kleinstadt und verlagerte sie größtenteils ins Ausland. Das langgestreckte Areal Strijp-S verwandelt sich nun in ein neues Stadtviertel mit vielfältiger Nutzungsmischung, basierend auf dem Masterplan von Jo Coenen und West 8.
Wettbewerb
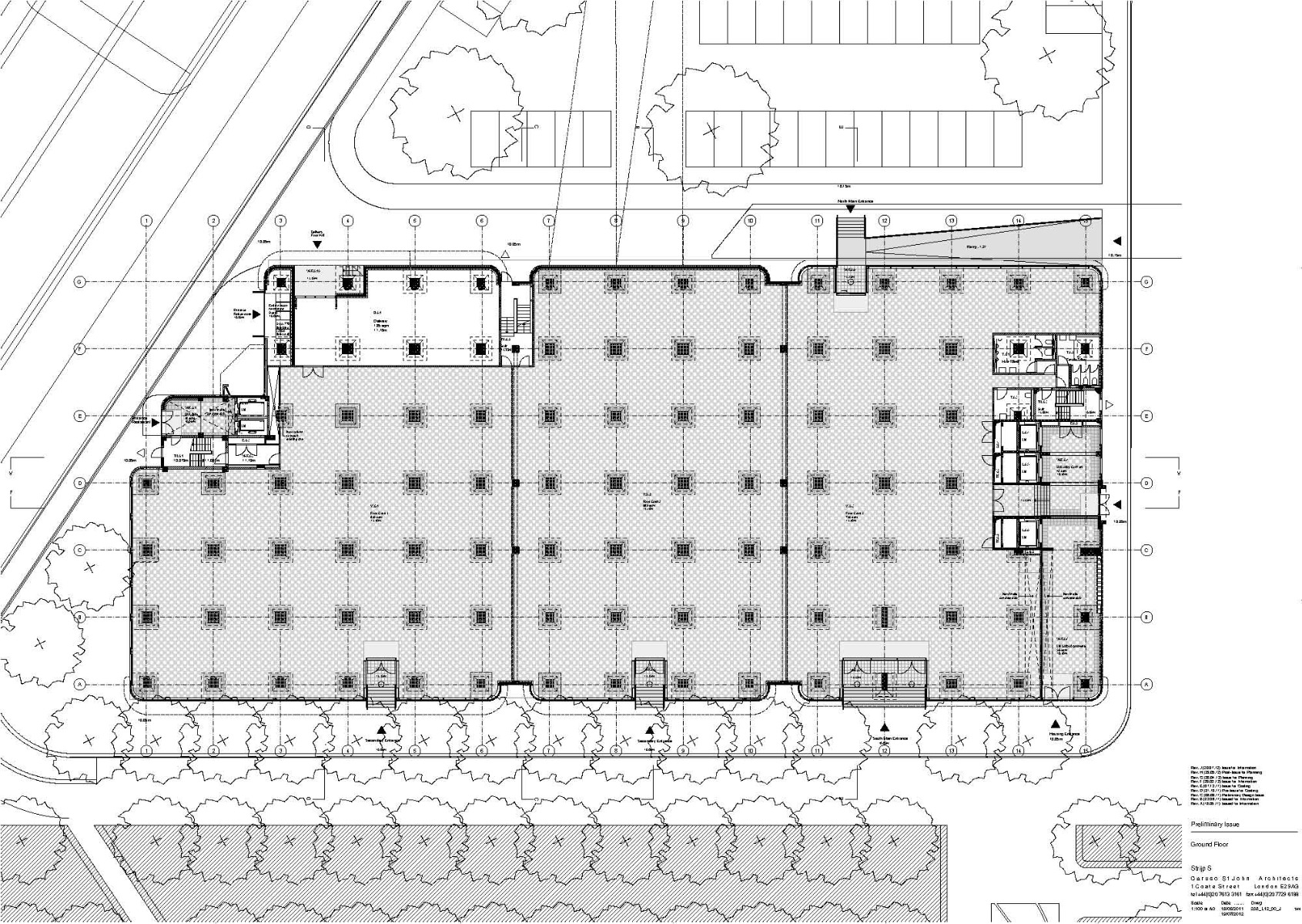
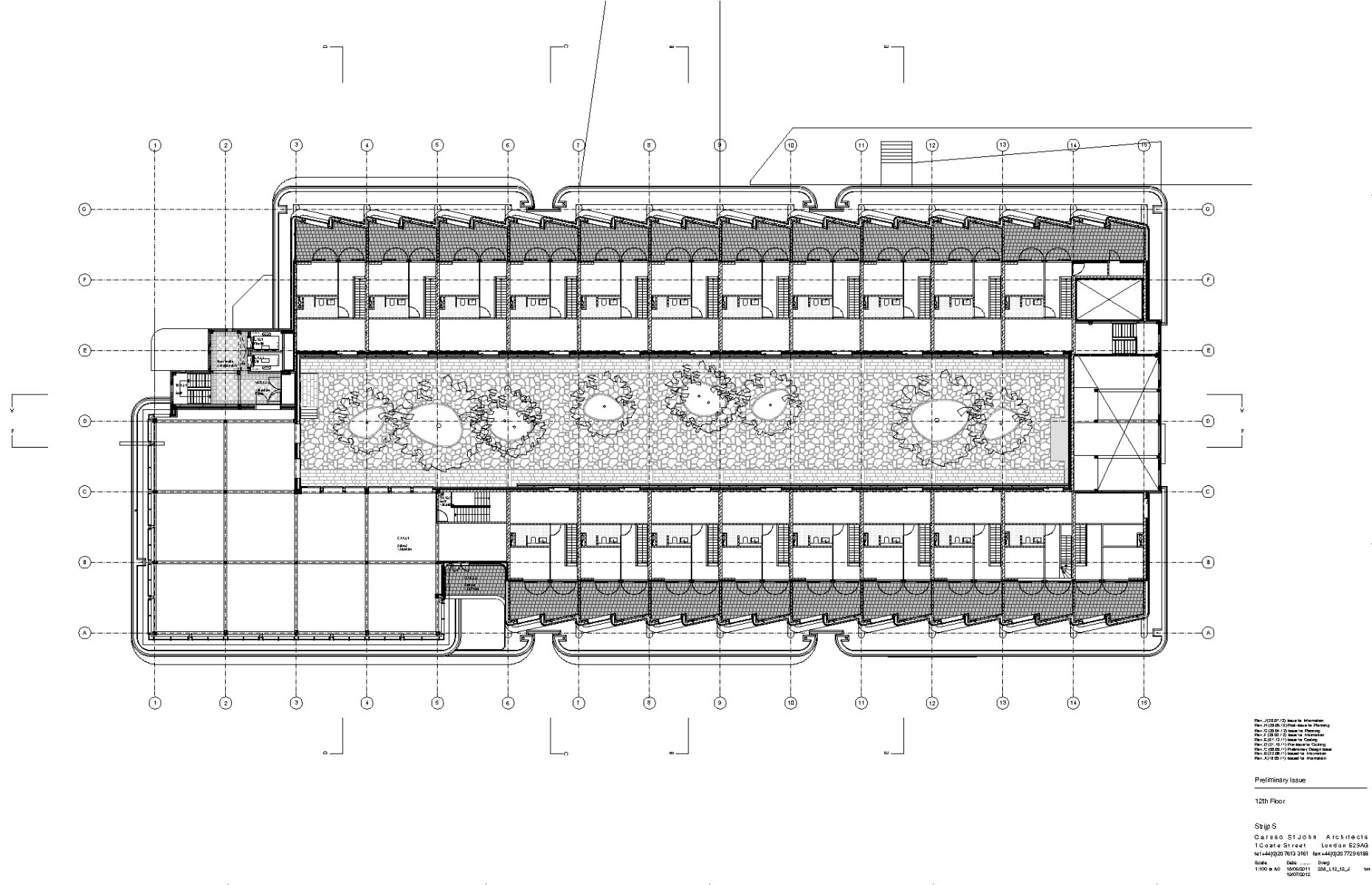
Der gemeinnützige Wohnungsanbieter Trudo schrieb 2007 einen Ideenwettbewerb für das Lagergebäude aus, das den Schlusspunkt des Areals an der Ringstraße bildet. Die tiefen Grundrisse, die geschlossenen Fassaden und das enge Stützenraster erschwerten eine Umnutzung als Wohngebäude, die von der Stadt vorgesehen war. Caruso St John Architects überzeugten die Jury mit der Idee den denkmalgeschützten Baukörper nahezu unangetastet zu belassen und die Wohnnutzung auf dem Dach anzuordnen. Das Tragwerk des Altbaus ermöglichte einen dreigeschossigen Aufbau rund um einen Innenhof.


Parkhaus, © Filip Dujardin
Flexibel parken und arbeiten
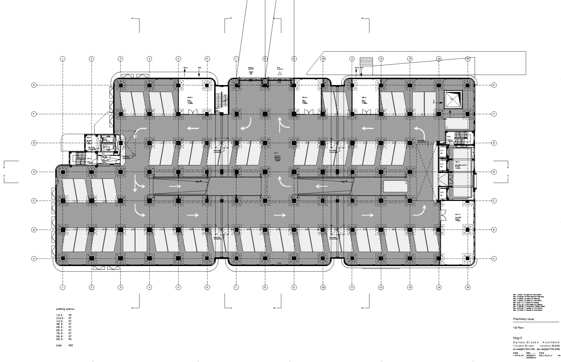
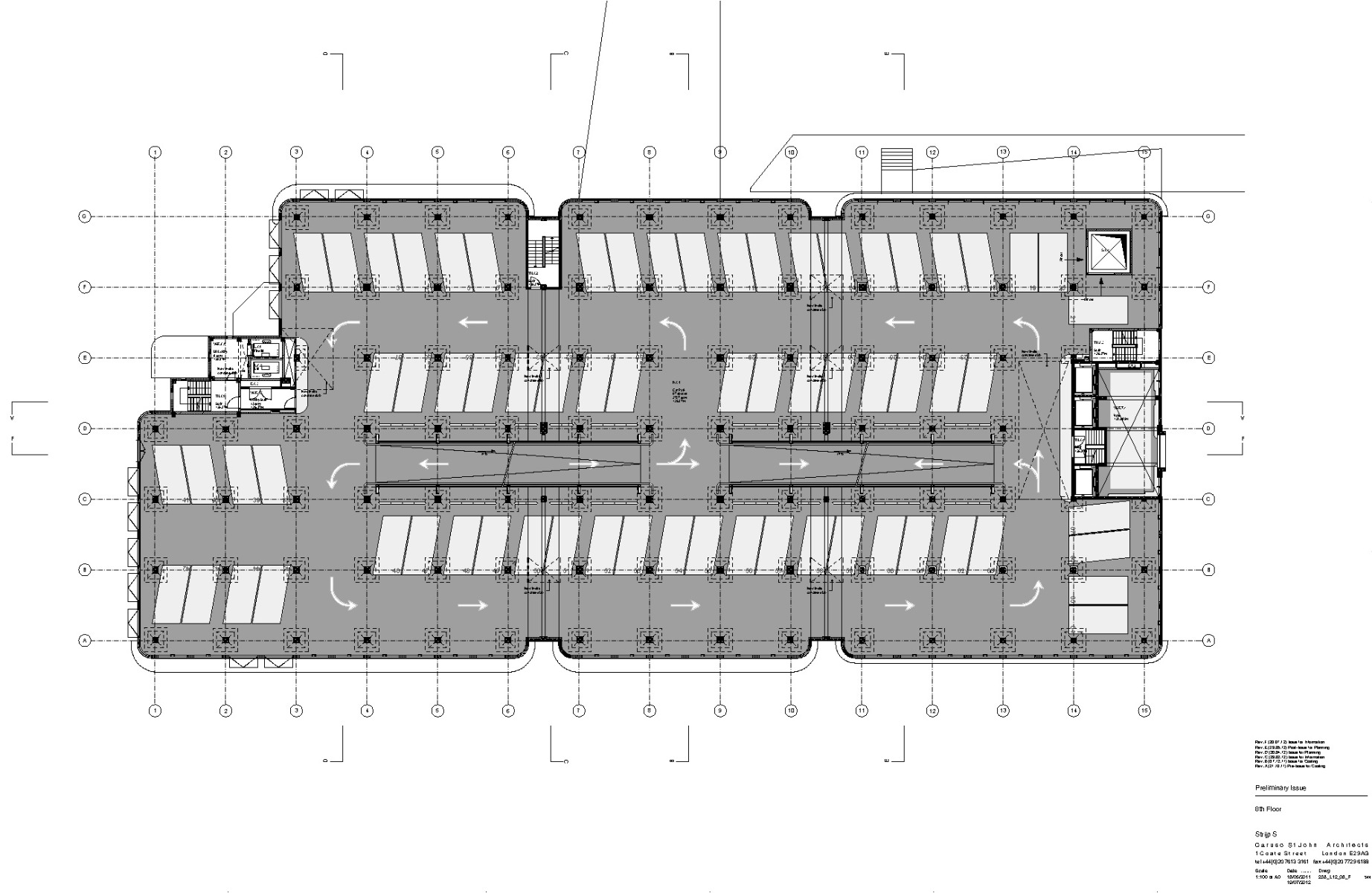
Für das Bestandsgebäude schlugen die Architekten eine Nutzung als Parkhaus vor, um die hohe Nachfrage nach Stellplätzen für das gesamte Areal zu erfüllen. Die verbleibenden Flächen auf den oberen Geschossen werden temporär an kleine Firmen und Start-Ups, oder als Ausstellungsfläche vermietet. Bei sinkendem Bedarf an Stellplätzen können die temporären Nutzungen jederzeit erweitert werden und auch die übrigen Geschosse des Parkhauses einnehmen.


Eingang zur Markthalle im Erdgeschoss, © Filip Dujardin
Markthalle
Im Erdgeschoss bietet eine Markthalle, mit Supermarkt, Essständen und Verkaufsflächen den Nutzern ein breites Angebot an Lebensmitteln. Auch ein Restaurant mit Freiflächen wurde in der Gebäudeecke platziert, nachdem es auf dem Dach nicht die nötige Besucherzahl erreichen konnte.


Wohnen auf dem Dach, © Filip Dujardin


Innenhof mit Wohnungen, © Filip Dujardin
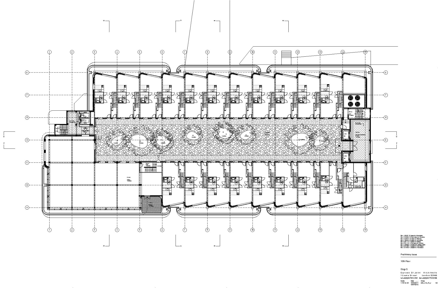
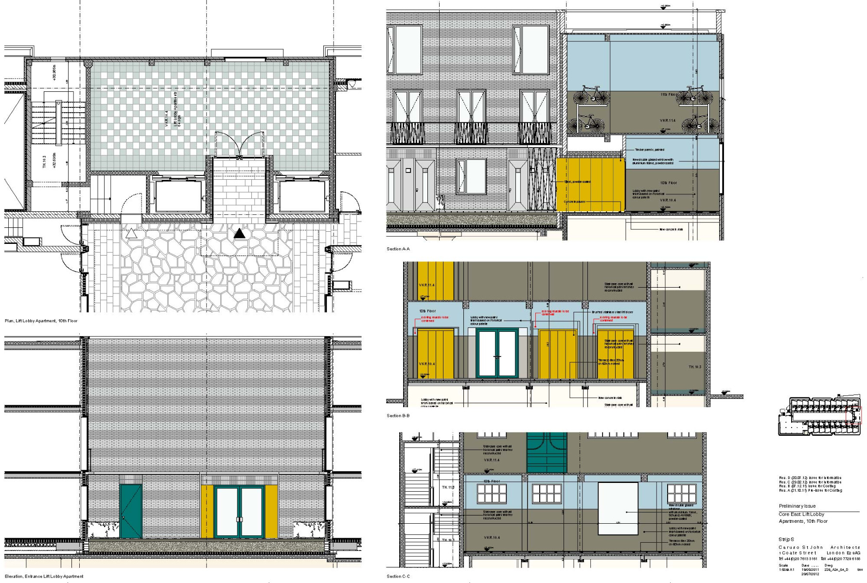
Wohnbebauung auf dem Dach
Das Kernstück des Entwurfs ist jedoch die Wohnbebauung auf dem Dach. Die ziegelverkleidete Zick-Zack-Fassade fügt sich harmonisch ins Bild des Altbaus. Um den Innenhof herum zeigt sie sich als glatte weiße Fläche, akzentuiert mit farbigen Türen und Verkleidungen. Alle Wohnungen sind einzeln über den Hof erschlossen. Über den eingeschossigen Apartments liegen zweigeschossige Maisonettwohnungen, die über eine schmale Treppe erreichbar sind. Sie verfügen über kleine Dachterrassen im 12. Obergeschoss. Eine Wandscheibe mit einem großen Fenster dient dort als Windschutz und rahmt den Blick auf die Stadt.
Mehr dazu in Detail 9.2023 und in unserer Datenbank Detail Inspiration.
Architektur: Caruso St John Architects
Bauherr: Trudo
Standort: Eindhoven (NL)
Bauleitung: V/Architecten
Tragwerksplanung: Tielemans Bouwconstructies Eindhoven
TGA-Planung: LTC & C Installatiemanagement Eindhoven
Bauunternehmen: Stam + de Koning
























