Holzbau mit Strohballendämmung
Vereinsheim bei Lausanne von Localarchitecture
Spielerische Elemente lockern die Form des strengen Riegels des Vereinsheims ab. Hier die Eingangssituation an der südlichen Stirnseite mit Bullaugenfenster und fünfeckiger Eingangstür. © Mathieu Gafsou/Localarchitecture
Rund 50 Jahre stand das einstige Vereinsheim des FC Venoge in Dailliens. Dann war es so heruntergekommen, dass nur noch ein Abriss infrage kam. Beim Entwurf für einen Neubau legte das Büro Localarchitecture aus Lausanne Wert auf einen minimalen CO2-Fußabdruck sowie die Nutzung lokaler Ressourcen und Arbeitskräfte.


Die Räume unter dem elegant gekrümmten Dachrand sind zu vier Baukörpern zusammengefasst. Mit Ausnahme der Bar haben sie alle geschlossene Fassaden. © Mathieu Gafsou/Localarchitecture
Schlankes Photovoltaikdach
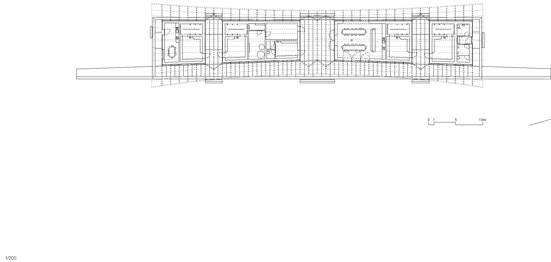
Das langgestreckte Gebäude flankiert den örtlichen Fußballplatz und dient zugleich als dessen Haupttribüne. Vier geschlossene Baukörper mit Umkleiden, Lagerräumen und einer Bar versammeln sich unter dem eleganten, auf beiden Seiten weit auskragenden Blechdach. Sein schmaler Dachrand ist konkav gekrümmt. Das lockert die strenge Riegelform des Neubaus auf und greift nach Angaben der Architekten auch die Silhouette der Jura-Bergen im Hintergrund auf. Auf beiden Seiten trägt das Blechdach eine Photovoltaikanlage.


Die Bar im zentralen Bereich der Tribüne ist von beiden Seiten belichtet. © Mathieu Gafsou/Localarchitecture
Vorgefertigte Fassadenpaneele
Für den Holzbau nutzten die Architekten überwiegend Lärche aus der Region. An den Fassaden wechseln sich die Kragträger, die das Dach tragen, mit grün lasierten Fassadenpaneelen ab. Die 37 vorgefertigten Fassadenelemente sind mit insgesamt 1200 Strohballen gedämmt. Um die kleinformatigen Ballen herzustellen, wurde eigens eine alte Ballenmaschine wieder in Betrieb genommen. Das Ballenmaß gab bis ins kleinste Detail die Abmessungen der Räume vor. Dagegen wurde der Betonverbrauch für das Gebäude auf ein Minimum reduziert. Er beschränkt sich auf die Bodenplatte, die leicht über das Gelände angehoben ist und zugleich als Tribüne dient, und die schlanken Streifenfundamente, die nur minimal ins Erdreich einbinden.
Architektur: Localarchitecture
Bauherr: Gemeinde Dailliens
Standort: Chemin de l’Arbalète, 1306 Daillens (CH)
Holzbauplanung: Bureau Cambium
Tragwerksplanung: 2M
Landschaftsarchitektur: Pascal Heyraud
HLS-Planung: Energa
Bauunternehmen: Amédée Berrut












