Verwoben mit der Stadt: Umbau der Fermi-Schule in Turin
Foto: Simone Bossi
Nachdem sie 2016 den internationalen Wettbewerb gewinnen konnten, haben BDR bureau 2019 den Umbau der Enrico Fermi-Schule abgeschlossen. Das Gebäude liegt im Turiner Stadtteil Nizza Millefonti, einem ehemaligen Industriegebiet zwischen dem stillgelegten Automobilwerk Lingotto, welches Renzo Piano maßgeblich umbaute, und dem Fluss Po. Das Projekt ist eines der ersten des jungen Büros, das sich erst im Jahr des Wettbewerbs gründete. Mit dem Umbau wollen sie eine Art Fallstudie zur Umnutzung etlicher italienischer Schulbauten aus der gleichen Zeit durchgeführt haben.
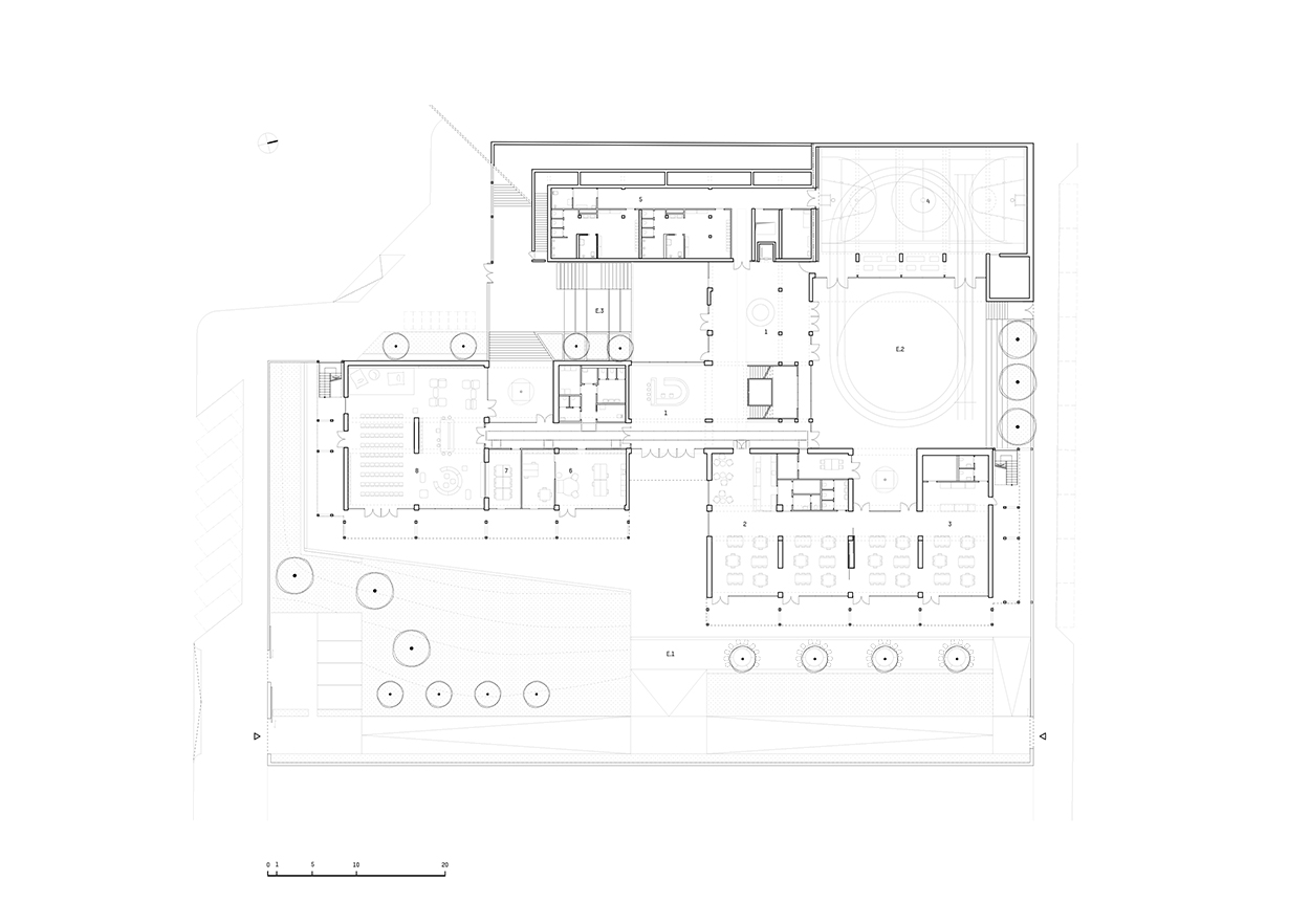
Um den Gebäudekomplex auch für neue Lehrkonzepte nutzen zu können, mussten die Architekten die Abläufe im Gebäude von Grund auf neu denken. Nach den neuen Plänen wird die Schule mit dem Umfeld verwoben und Teil des öffentlichen Raums. Die Eingänge wurden auf die ehemalige Rückseite verlagert, wo sich nun großzügige Grünanlagen angliedern. So entsteht ein gradueller Übergang von der Straße über den halböffentlichen Bereich hin zu den Unterrichtsräumen. Im Erdgeschoss befinden sich Räume zur öffentlichen Nutzung, wie die Sporthalle, eine Bücherei und das Auditorium.
Eine Stahlstruktur, bespannt mit einem leichten Metallgitter, hüllt das Gebäude neu ein und schafft so vor jedem Unterrichtsraum einen Balkon. Die Fassaden des Altbaus wurden zudem mit farbigem Putz in unterschiedlichen Körnungen gegliedert. Es entsteht eine neue, kohärent gestaltete Landmarke im Wohnviertel.
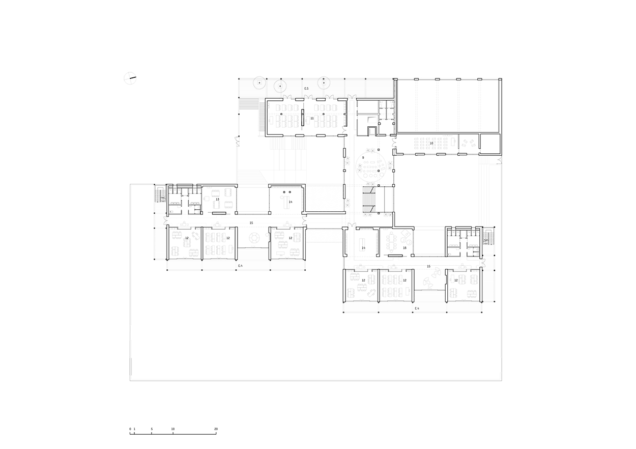
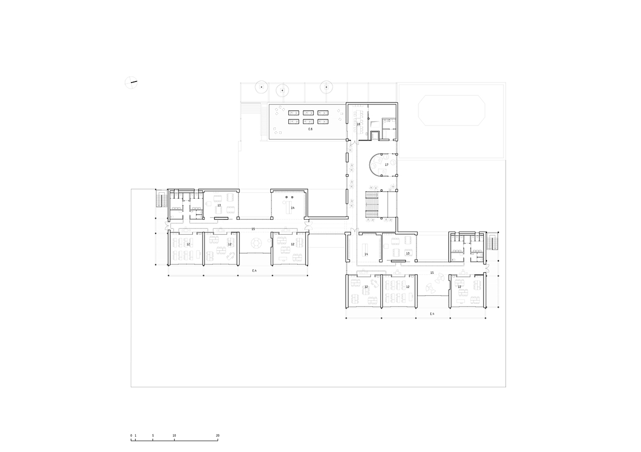
Im Innenraum sind die Erschließungsflächen zu Gemeinschafts- und Pausenräumen geworden. Über alle Etagen verbindet diese Bereiche ein kräftig rotes Treppengehäuse, das die Sprache der angefügten Balkone aufgreift,. Die Unterrichtsräume sind in Clustern organisiert, zu denen jeweils auch eine Garderobe, Nebenräume und ein informeller Lernbereich gehören. BDR bureau war auch an der Gestaltung des Mobiliars für die Enrico Fermi-Schule beteiligt, das sich durch eine klare Formensprache, robuste Materialien und farbliche Akzente auszeichnet.
Weitere Informationen:
Bruttogeschossfläche: 5096 m²
Grundstückfläche: 5579 m²
Gesamtkosten: 7,3 Mio. €
Statik- und Ausführungsplanung: Sintecna srl
Technik- und Elektroberatung: Proeco ss
Nachhaltigkeits- und Akustikberatung: Onleco srl
Möbeldesign: BDR bureau
Bauaufsicht: Sintecna srl
Art direction: BDR bureau
Projektmanager: FCA Partecipazioni S.p.A





























