Interwoven with the City: Renovation of the Fermi School in Turin
Foto: Simone Bossi
After winning the international design competition, BDR bureau completed their renovation of the Enrico Fermi School in 2019. The building stands in Turin’s Nizza Millefonti district, a former industrial area located between the decommissioned Lingotto car factory, substantially renovated by Renzo Piano, and the river Po. The school is one of the most recent projects for BDR bureau, which was actually established the same year the competition was announced. The architects wanted to use the renovation as a sort of case study for repurposing many different types of Italian school buildings from the same period as the Fermi School.
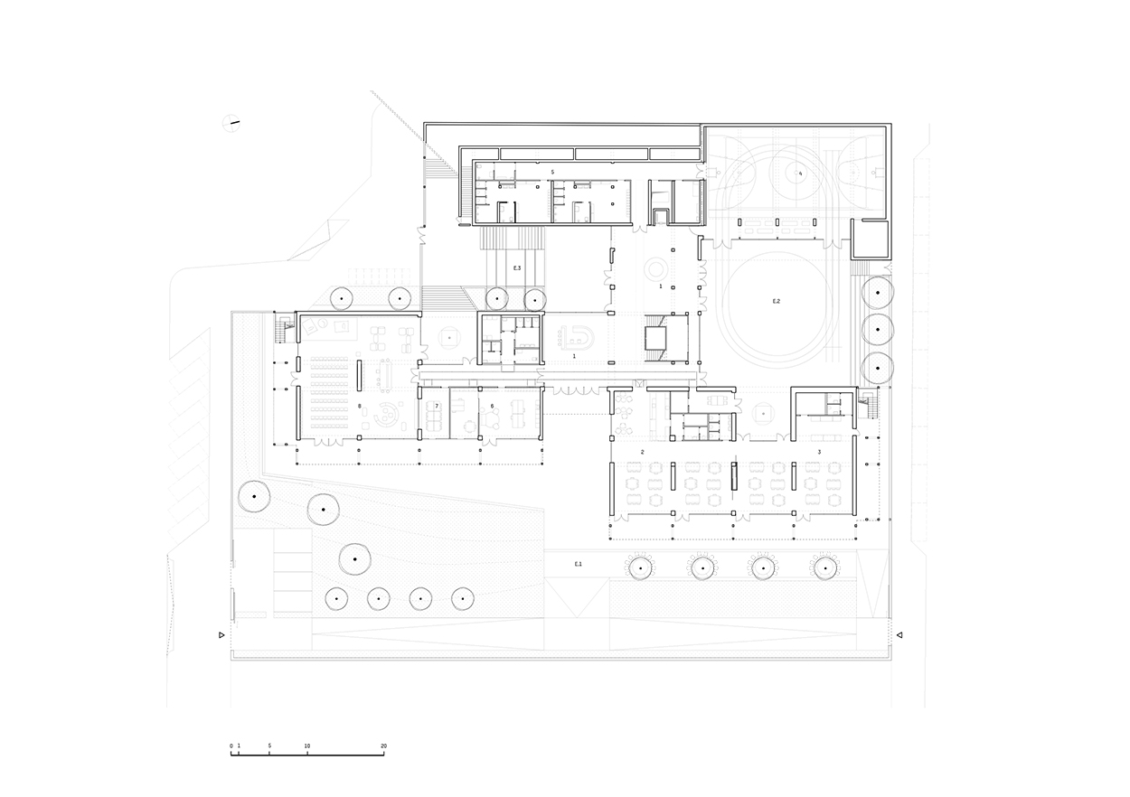
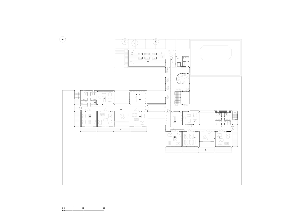
In order to make the building complex suitable for new teaching concepts, the architects had to completely rethink its spatial sequences. According to the new plans, the school is interconnected with its environment and forms part of the public space. The entrances have been moved to the rear of the old school, where they now open onto generous green spaces. This creates a gradual transition from the road to the classrooms via the semi-public area. The ground floor is home to spaces for public use, such as the gymnasium, library and auditorium.
A steel structure covered with a light metal grid now veils the building and forms a balcony in front of every classroom. The façades of the old structure have been distinguished with coloured plastering of various textures. The result is a new, coherently designed landmark for the neighbourhood.
Inside, the access areas have become communal spaces and break rooms. These areas are connected on all floors via a vivid, red stairwell that takes up the language of the added balconies. The classrooms are organized in clusters; each has a coatroom, ancillary spaces and an informal learning space. The furnishings for the Enrico Fermi School are characterized by a clear style, robust materials and colourful accents; BDR bureau was involved in their design.
Further information:
Gross area: 5096 m²
Area: 5579 m²
Total cost: 7,3 Mio. €
Statics- and detailed planning: Sintecna srl
Technology- und electro consultation: Proeco ss
Sustainability- and acoustics consultation: Onleco srl
Furniture design: BDR bureau
Building supervision: Sintecna srl
Art direction: BDR bureau
Project management: FCA Partecipazioni S.p.A





























