Rekonstruktion einer Kaiservilla
Villa Muhr in Bohinj von Ofis Arhitekti
Die Villa Muhr steht auf einem Hanggrundstück am Ortseingang von Ribčev Laz. Von der Talseite aus ist die Gliederung des Gebäudes in einen Sockel aus Stein und einen Aufbau aus Holz gut zu erkennen. © Miran Kambic
Der Ort Ribčev Laz liegt am Ufer eines Sees zu Füßen der höchsten Berge Sloweniens. Ein Wanderparadies – und eine Lizenz zum Gelddrucken für die ortsansässigen Hoteliers, möchte man meinen. Doch bis vor einigen Jahren lag der Ort noch im Dornröschenschlaf. 2019 kaufte dann der Kryptomillionär und Gründer der Kryptobörse Bitstamp, Damian Merlak, nicht weniger als vier Hotels in der Umgebung. Sie alle waren ebenso traditionsreich wie heruntergekommen, manche standen jahrelang leer. Merlak wollte sie zu neuem Leben erwecken, entweder durch Sanierung oder durch Abriss und Neubau.


Weit auskragende Stahlträger stütze die Obergeschosse. Die Fassaden bestehen aus geflammtem Holz. © Miran Kambic
Vor zehn Jahren eingestürzt
Das bislang größte Projekt des Finanziers war die 2022 abgeschlossene Sanierung des Hotel Bohinj am östlichen Ufer des Bohinjsko Jezero (Wocheiner See). Das Vier-Sterne-Hotel mit seinen 69 Zimmern wurde von Ofis Arhitekti aus Ljubljana generalüberholt und erweitert. Auf seinem Grundstück stand ursprünglich auch die traditionsreiche Villa Muhr. 1902 hatte der Architekt Franz Ritte von Neumann für den Wiener Großhändler Adolf Muhr errichtet. In den folgenden gut 110 Jahren diente sie nacheinander als Jagdschloss, Residenz des jugoslawischen Königs Aleksandar Karađorđević, Krankenhaus und Annex des nahe gelegenen Hotels. 2014 war das Bauwerk so heruntergekommen, dass es einstürzte. Nur die Fundamente blieben erhalten.


Auch in den Innenräumen dominieren warme Holztöne und Naturmaterialien. © Miran Kambic
Symbiose aus Holz, Stein und Stahl
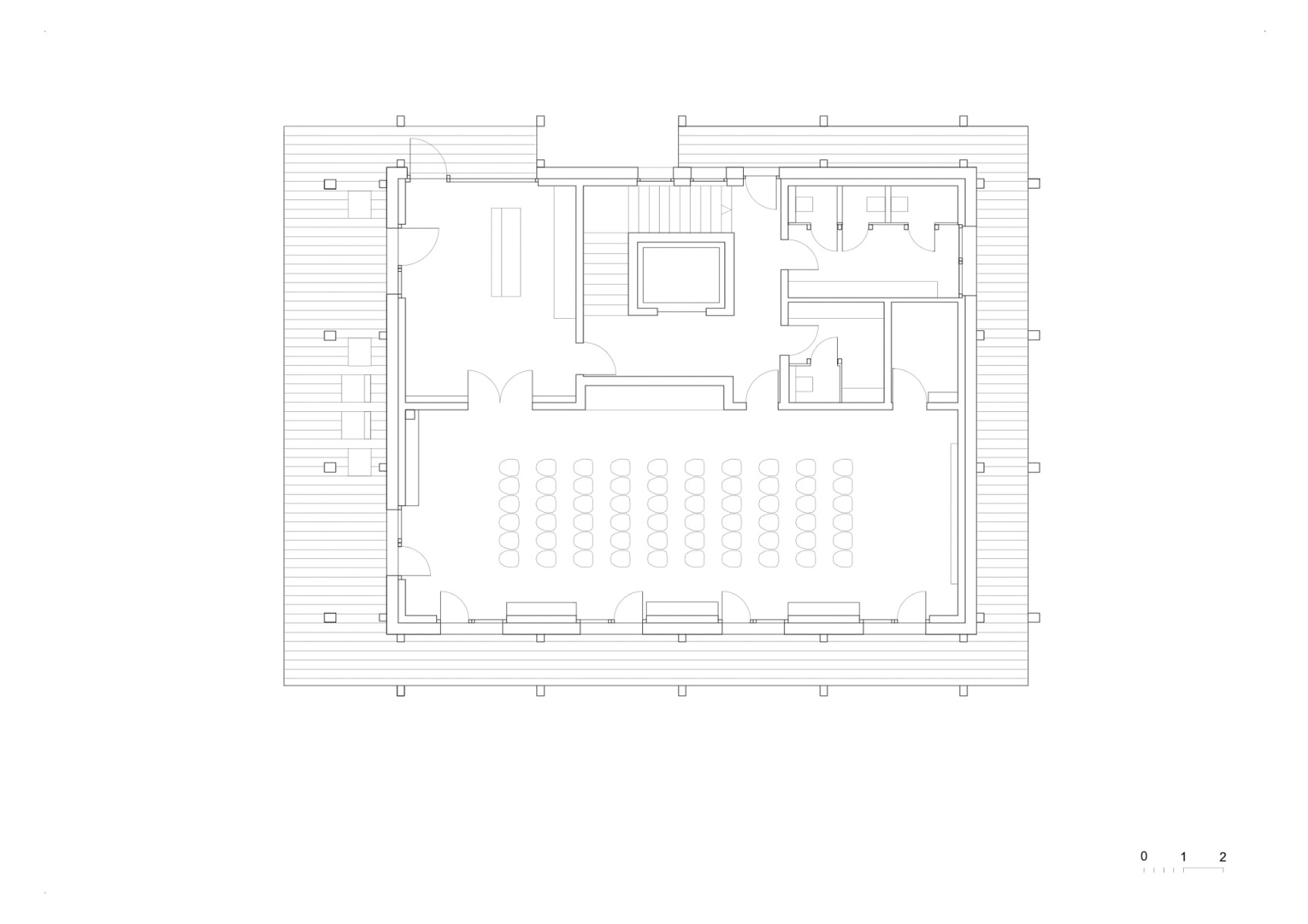
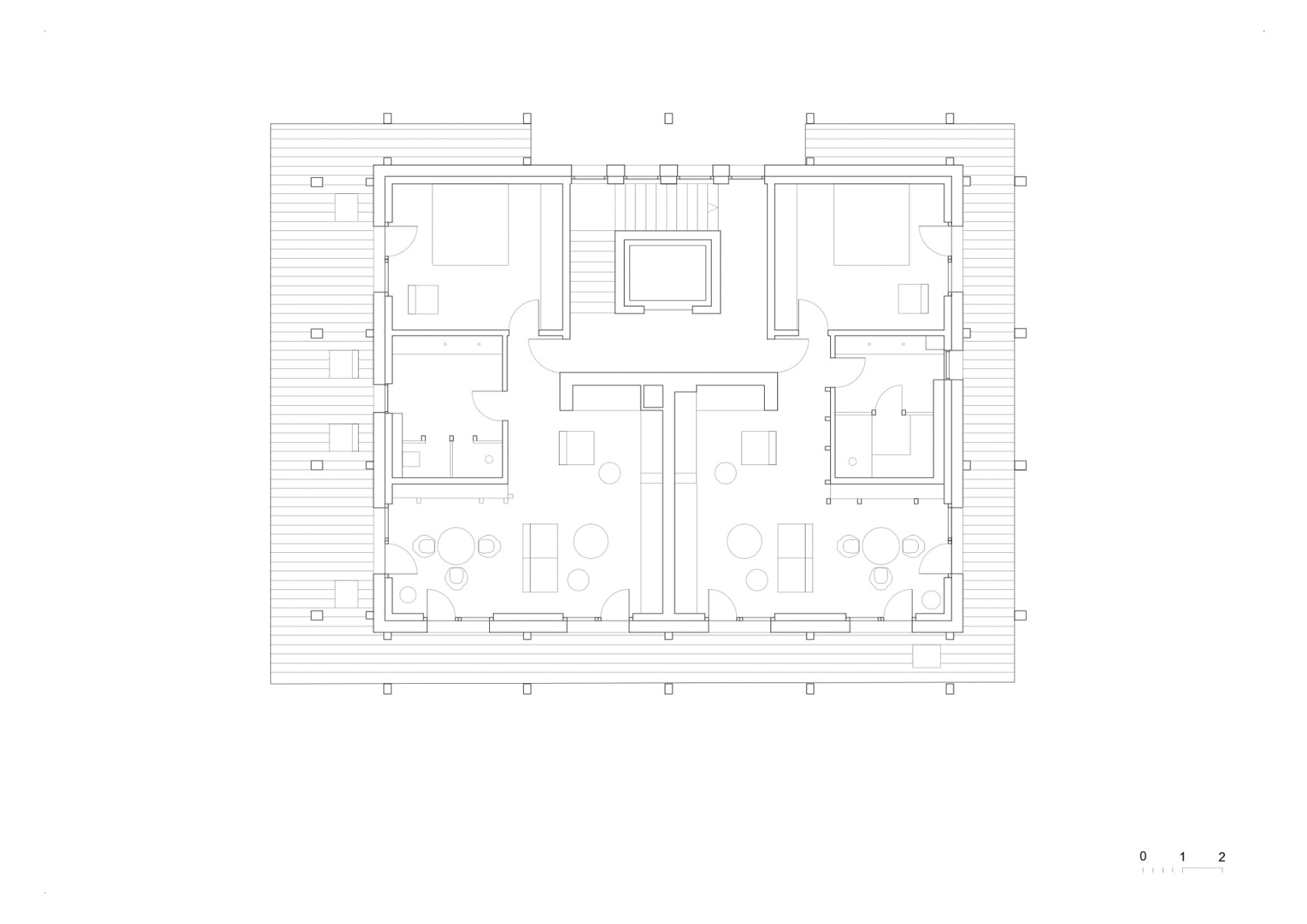
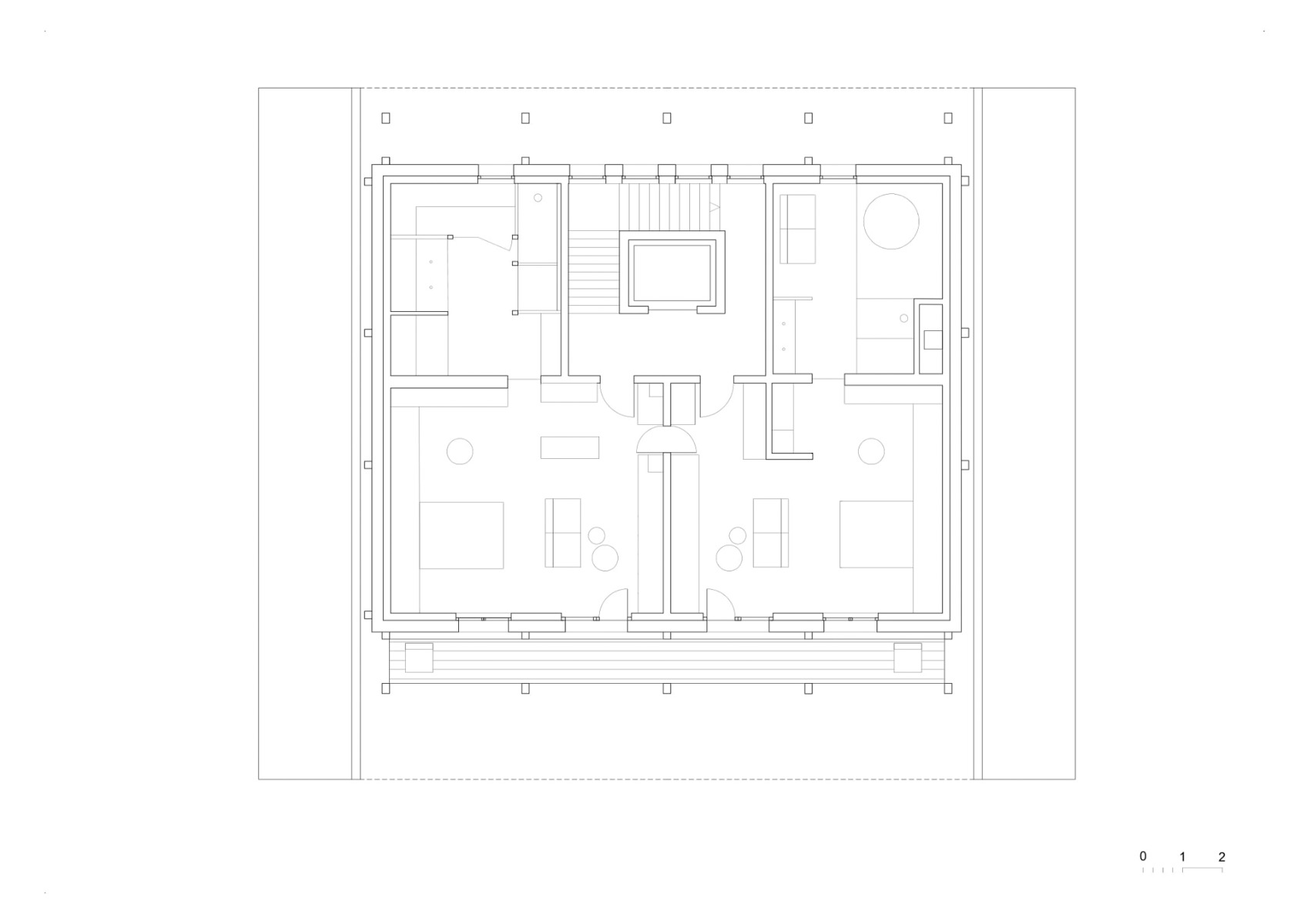
Mit dem Wiederaufbau betraute Merlak erneut Ofis Arhitekti. Ihr Entwurf orientiert sich formal und in der Raumaufteilung eng am Original. Für das teils ins Gelände eingegrabene Erdgeschoss nutzten die Architekten die Bruchsteine der alten Ruine. Darüber erhebt sich, auf ein markant auskragendes Stahlrost gebettet, ein dreigeschossiger Holzbau. Das Fichtenholz der Fassaden und Balkone wurde auf traditionelle Weise geflammt, um es langlebiger zu machen. Im Inneren des Gebäudes sind drei unterschiedliche Nutzungen vereint: ein Restaurant im Erdgeschoss, eine Konferenzetage im ersten Obergeschoss und vier individuell eingerichtete Luxus-Suiten in den beiden obersten Geschossen.


In den Obergeschossen der Villa wurden vier luxuriöse Suiten eingerichtet. © Miran Kambic
Restaurant, Konferenzetage und Luxussuiten
Mit Kaminöfen, individuellen Saunen und Blicken über den See lassen die Suiten nahezu keine Wünsche offen. Überall im Haus finden sich Details, die örtliche Materialien und Bautraditionen aufgreifen – von Kronleuchtern aus Sturmholz bis zu Fensterläden, die von den Heuraufen der Region inspiriert sind. Der Verbindungstunnel zwischen der Villa und dem Hauptgebäude des Hotels wurde wiederhergestellt und beherbergt künftig eine Ausstellung über die Geschichte der Villa und ihre Bedeutung für die Region.
Architektur: OFIS arhitekti
Bauherr: Hotel Bohinj
Standort: Ribčev Laz 45, 4265 Bohinjsko jezero (SI)
Innenarchitektur: OFIS arhitekti, Drugačno pohištvo
Tragwerksplanung: Project PA
HLS-Planung: MM-biro
Elektroplanung: PRO-elekt
Brandschutz: Lozej
Bauunternehmen: Tosidos























