Reconstruction of an imperial Villa
Villa Muhr in Bohinj by Ofis Arhitekti
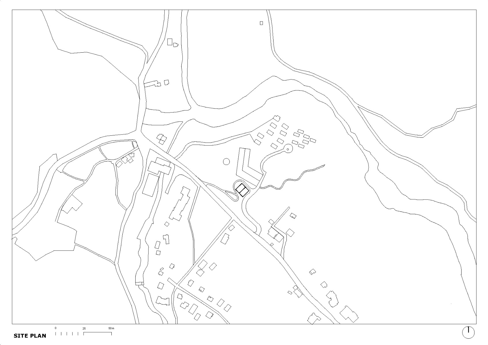
Villa Muhr stands on a hillside plot at the entrance to Ribčev Laz. From the valley side, the building's structure, with its stone base and wooden superstructure, is clearly visible. © Miran Kambic
Ribčev Laz is located on the shores of a lake at the foot of Slovenia's highest mountains. It is a hiker's paradise and a licence to print money for local hoteliers. But until a few years ago, the area was still sleepy. Then, in 2019, Damian Merlak, the founder of the Bitstamp crypto exchange and a crypto millionaire, bought no fewer than four hotels in the area. They were all steeped in tradition and dilapidated, with some having stood empty for years. Merlak wanted to breathe new life into them through renovation or demolition and rebuilding.


Wide cantilevered steel beams support the upper floors. The facades are made of flamed wood. © Miran Kambic
Collapsed ten years ago
The financier's largest project to date was the renovation of the Hotel Bohinj, located on the eastern shore of Lake Bohinj, which was completed in 2022. The four-star hotel, which has 69 rooms, was completely renovated and expanded by Ofis Arhitekti from Ljubljana. The traditional Villa Muhr originally stood on the site. It was built in 1902 by architect Franz Ritte von Neumann for the Viennese wholesaler Adolf Muhr. Over the next 110 years, it successively served as a hunting lodge, the residence of Yugoslav King Aleksandar Karađorđević, a hospital, and an annexe to the nearby hotel. By 2014, the building had fallen into such disrepair that it collapsed. Only the foundations remained.


Warm wood tones and natural materials also dominate the interior. © Miran Kambic
A symbiosis of wood, stone and steel
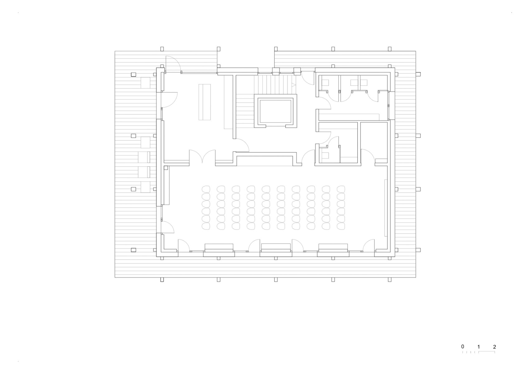
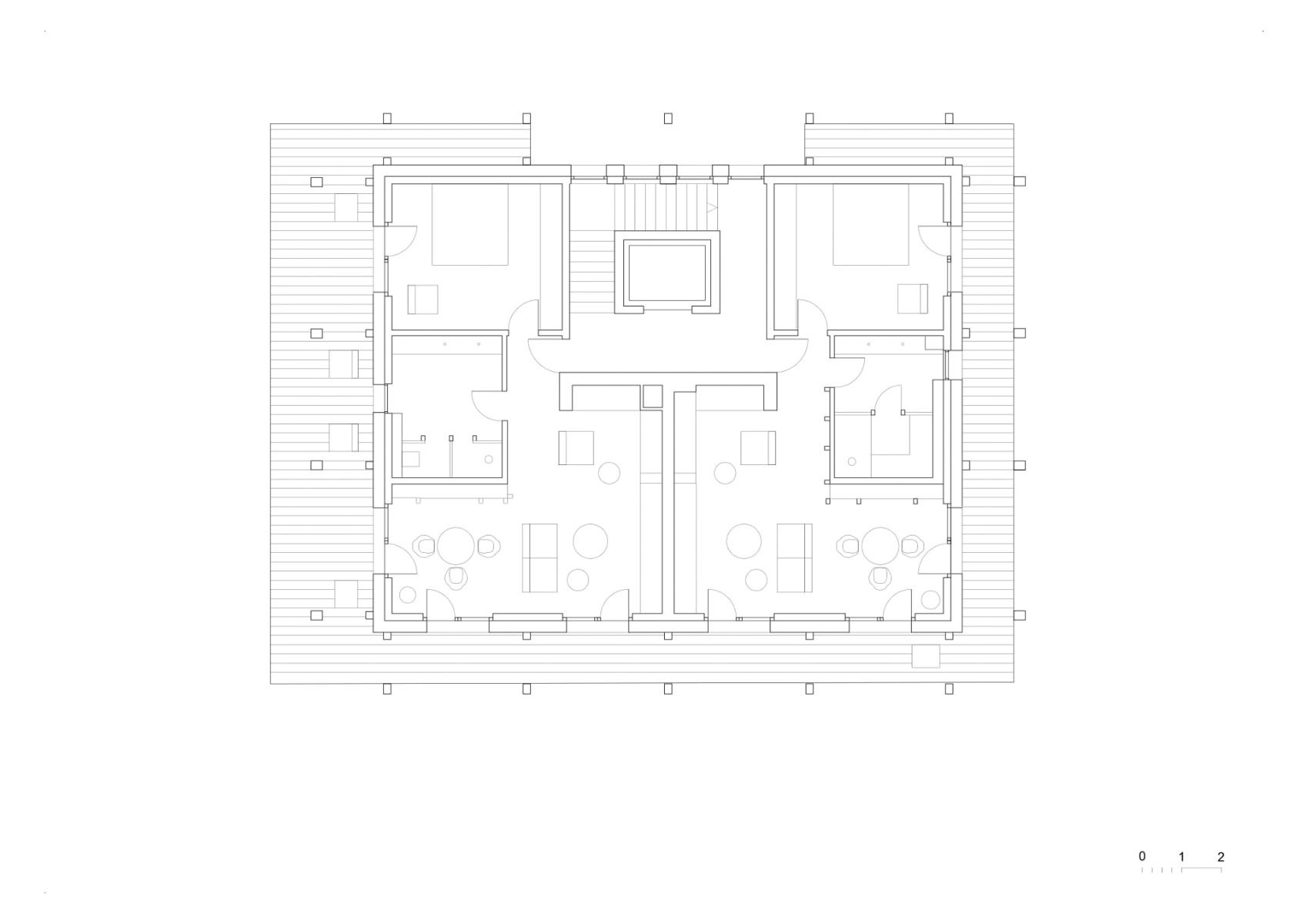
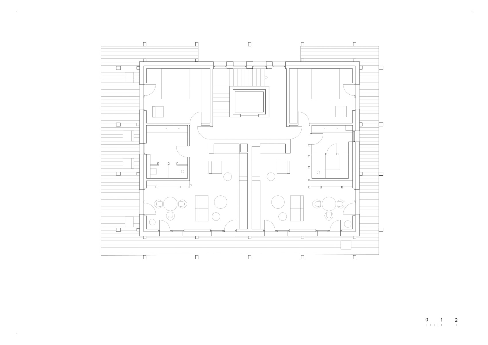
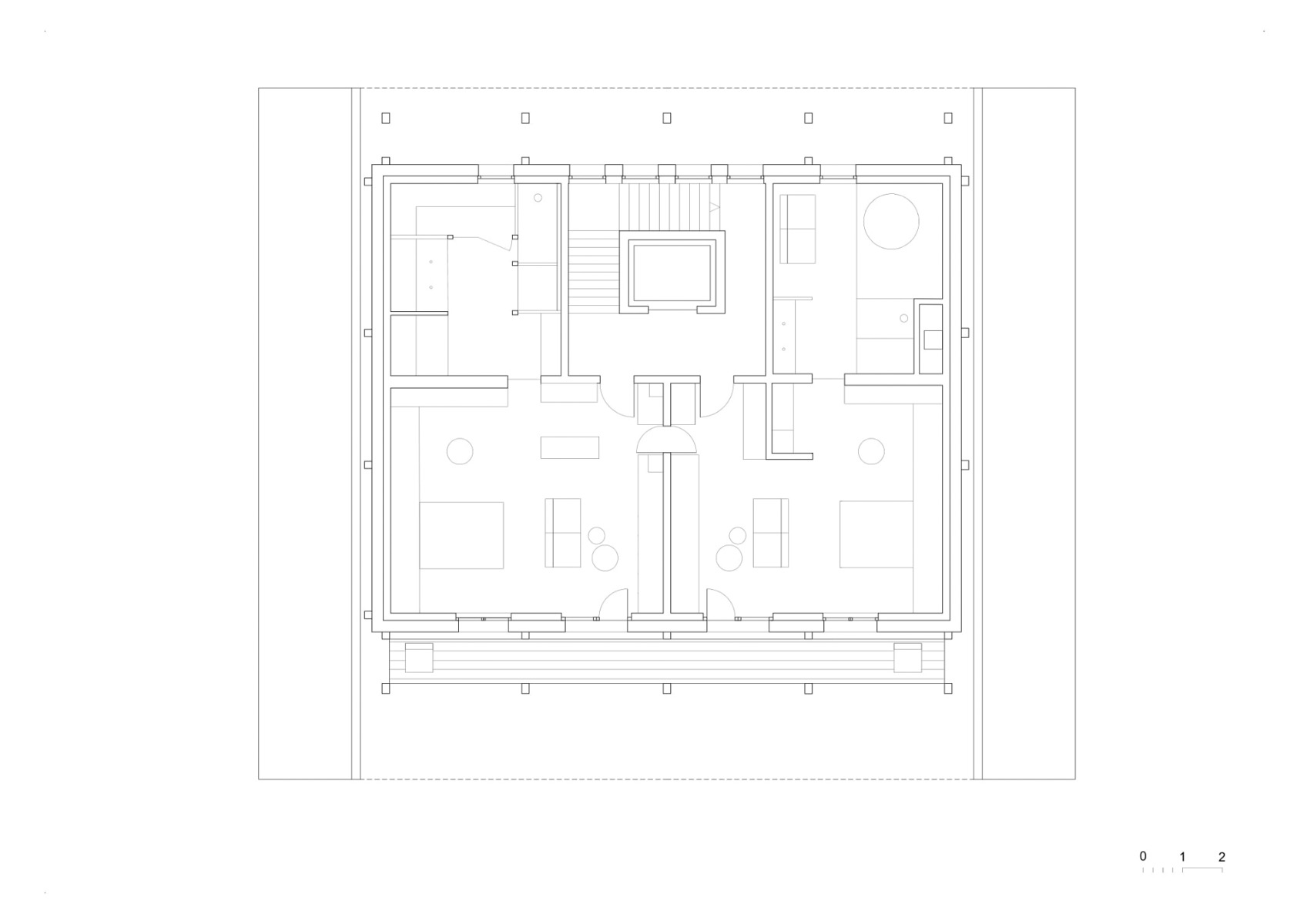
Merlak once again entrusted Ofis Arhitekti with the reconstruction work. The design closely follows the original in terms of form and room layout. The architects used the broken stones from the old ruins for the partly buried ground floor. Above this rises a striking three-storey wooden structure, supported by a cantilevered steel grid. The spruce wood used for the facades and balconies was flamed in the traditional manner to increase its durability. The building houses three different spaces: a restaurant on the ground floor, a conference area on the first floor, and four individually furnished luxury suites on the top two floors.


The upper floors of the villa house four luxurious suites. © Miran Kambic
Restaurant, conference floor and luxury suites
With wood-burning stoves, private saunas and stunning lake views, these suites offer everything you could desire. Throughout the house, details reflect local materials and building traditions, from chandeliers crafted from storm-damaged wood to shutters inspired by the region's hayracks. The connecting tunnel between the villa and the main hotel building has been restored and will house an exhibition on the history of the villa and its importance to the local area.
Architecture: OFIS arhitekti
Client: Hotel Bohinj
Location: Ribčev Laz 45, 4265 Bohinjsko jezero (SI)
Interior design: OFIS arhitekti, Drugačno pohištvo
Structural engineering: Project PA
HVAC planning: MM-biro
Electricity planning: PRO-elekt
Fire prevention: Lozej
Contractor: Tosidos























