Kindgerechter Lernraum
Vorschule in Billom von Rue Royale Architectes
Vorschule in der französischen Kleinstadt Billom, © Vladimir de Mollerat du Jeu
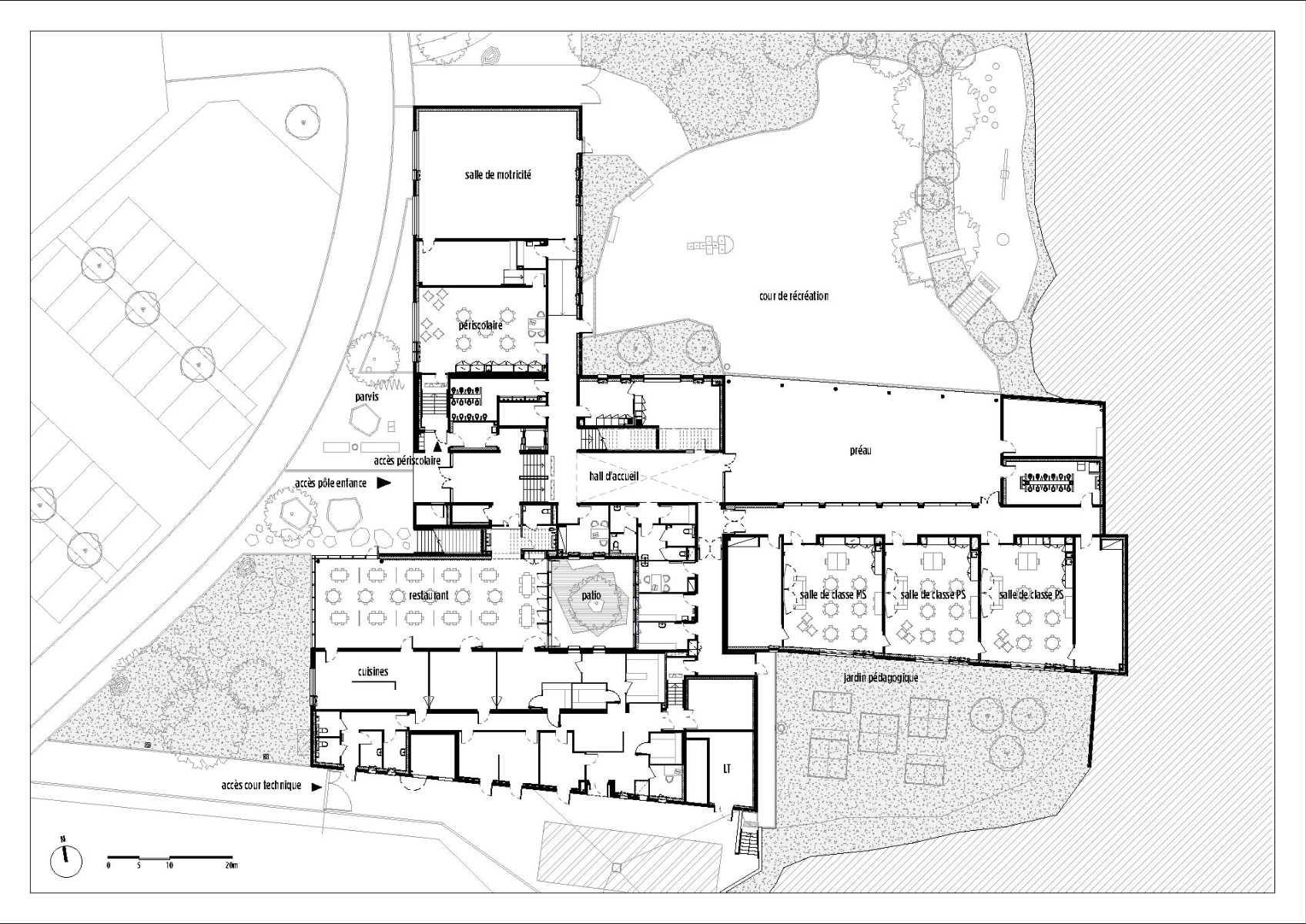
Die Vorschule École de la Croze von Rue Royale Architectes in der französischen Kleinstadt Billom ist aus Holz und Beton gebaut. Sie soll zum kindgerechten Bildungsort werden. Um den Neubau bestmöglich in seine Umgebung zu integrieren, geht das Planerteam auf die topografischen Gegebenheiten ein und gestaltet ein kompaktes Ensemble mit Innenhöfen und begrünten Dächern.


Die Schule ist aus Holz und Beton gebaut. © Vladimir de Mollerat du Jeu
Zirkulations- und Außenflächen
Rund um den Bildungsbau entstehen durch die Hanglage vielfältige Zirkulations- und Außenflächen, die von den Landschaftsarchitekten Atelier du Bocal gestaltet wurden. So führt beispielsweise von der namensgebenden Rue de la Croze im Osten ein Weg über das Dach der Schule bis zum Haupteingang.
Holz und Sichtbeton aus der Region
Während der hohe Sockel des Gebäudes in sandgestrahltem Sichtbeton ausgeführt ist, handelt es sich bei dem riegelförmigen Obergeschoss um eine Holzrahmenkonstruktion mit senkrechter Douglasien-Schalung. Die unterschiedlich breiten Latten stammen aus dem französischen Zentralmassiv und verleihen den Fassaden des Schulhauses einen verspielten Rhythmus. Sowohl das übrige Holz als auch die Zuschlagstoffe für den Beton stammen ebenfalls aus der Region.


Zentrale Empfangshalle der Vorschule, © Vladimir de Mollerat du Jeu
Erschließung des Bildungsbaus
Die Erschließung des Bildungsensembles erfolgt von Westen her. Über die zentrale Empfangshalle gelangt man hier entweder in den Hort im nördlichen Trakt oder in den Südflügel mit Mensa und Küche. Im Gebäudeteil hinter dem zweigeschossigen Foyer schließen die Klassenzimmer und Schlafbereiche der Vorschule an. Sie bieten Platz für 120 Kinder von drei bis sechs Jahren und öffnen sich in der unteren Etage auf der einen Seite zu einem überdachten Freibereich, auf der anderen zu einem geschützten Innenhof.


Lichthöfe und großflächige Verglasungen sorgen für helle Innenräume. © Vladimir de Mollerat du Jeu


Außenfläche, © Vladimir de Mollerat du Jeu
Im oberen Stockwerk befindet sich auf dem Dach eine weitere Außenfläche. Eine über dem Eingang positionierte Bibliothek mit Blick auf den Vorplatz vervollständigt das Raumprogramm. Dank Lichthöfen und großflächigen Verglasungen zeigt sich das Innere der Vorschule hell und freundlich. Unbehandelte Holzoberflächen sorgen in Form von Akustikdecken, Fensterrahmen und Türen für eine kindgerechte Atmosphäre.
Architektur: rue royale architectes
Bauherr: Ville de Billom
Standort: 63160 Billom (FR)
Tragwerksplanung: TPF ingénierie
Landschaftsplanung: Atelier du Bocal
Leitsysteme: Atelier Supernova
















