Child-friendly learning space
Nursery School in Billom by Rue Royale Architectes
Nursery school in the small French town of Billom, © Vladimir de Mollerat du Jeu
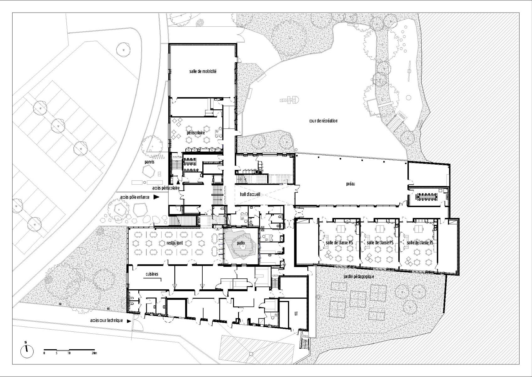
The École de la Croze by Rue Royale Architectes, which is located in the small French town of Billom, is built of wood and concrete. It is sure to be a child-friendly space for education. In order to best integrate the new building into its surroundings, the planning team considered the topographical conditions and designed a compact ensemble with inner courtyards and planted roofs.


The school is built of wood and concrete. © Vladimir de Mollerat du Jeu
Circulation areas and outdoor spaces
The slope has created diverse circulation areas around the school, as well as outdoor spaces designed by the landscape architects from Atelier du Bocal. For instance, a walkway leads from the Rue de la Croze, the road to the east that gives the school its name, to the main entrance via the roof of the building.
Wood and exposed concrete from the region
While the tall plinth of the building is made of sandblasted exposed concrete, the block-shaped upper level is a wood-framed construction with vertical formwork of Douglas fir. The slats, which are of various widths, come from France’s Massif Central and give the schoolhouse facades a playful rhythm. The remaining wood and the aggregates for the concrete also come from local sources.


The central reception hall of the nursery school, © Vladimir de Mollerat du Jeu
Access to the school
The educational ensemble is accessed from the west. Via the central reception hall, visitors then enter either the north wing, which is home to the nursery school, or the south wing, which accommodates the cafeteria and kitchen. The classrooms and nap areas of the nursery school join onto the main building behind the two-storey lobby. They offer space for 120 children ages three to six; on the lower level, they open to create a covered outdoor area on one side and a sheltered inner courtyard on the other.


Atria and extensive glazing ensure bright interiors. © Vladimir de Mollerat du Jeu


An outdoor space, © Vladimir de Mollerat du Jeu
The roof of the upper level features a further outdoor area. A library that sits over the entrance to the school and offers a view of the front schoolyard rounds out the spatial program. Thanks to atria and extensive glazing, the interior of the nursery school is bright and welcoming. Untreated wood surfaces in the form of acoustic ceilings, window frames and doors ensure a child-friendly ambience.
Architecture: rue royale architectes
Client: Ville de Billom
Location: 63160 Billom (FR)
Structural engineering: TPF ingénierie
Landscape planning: Atelier du Bocal
Guidance systems: Atelier Supernova
















