Was braucht der Mensch? Wohn- und Atelierhaus in Basel
Foto: Barbara Bühler
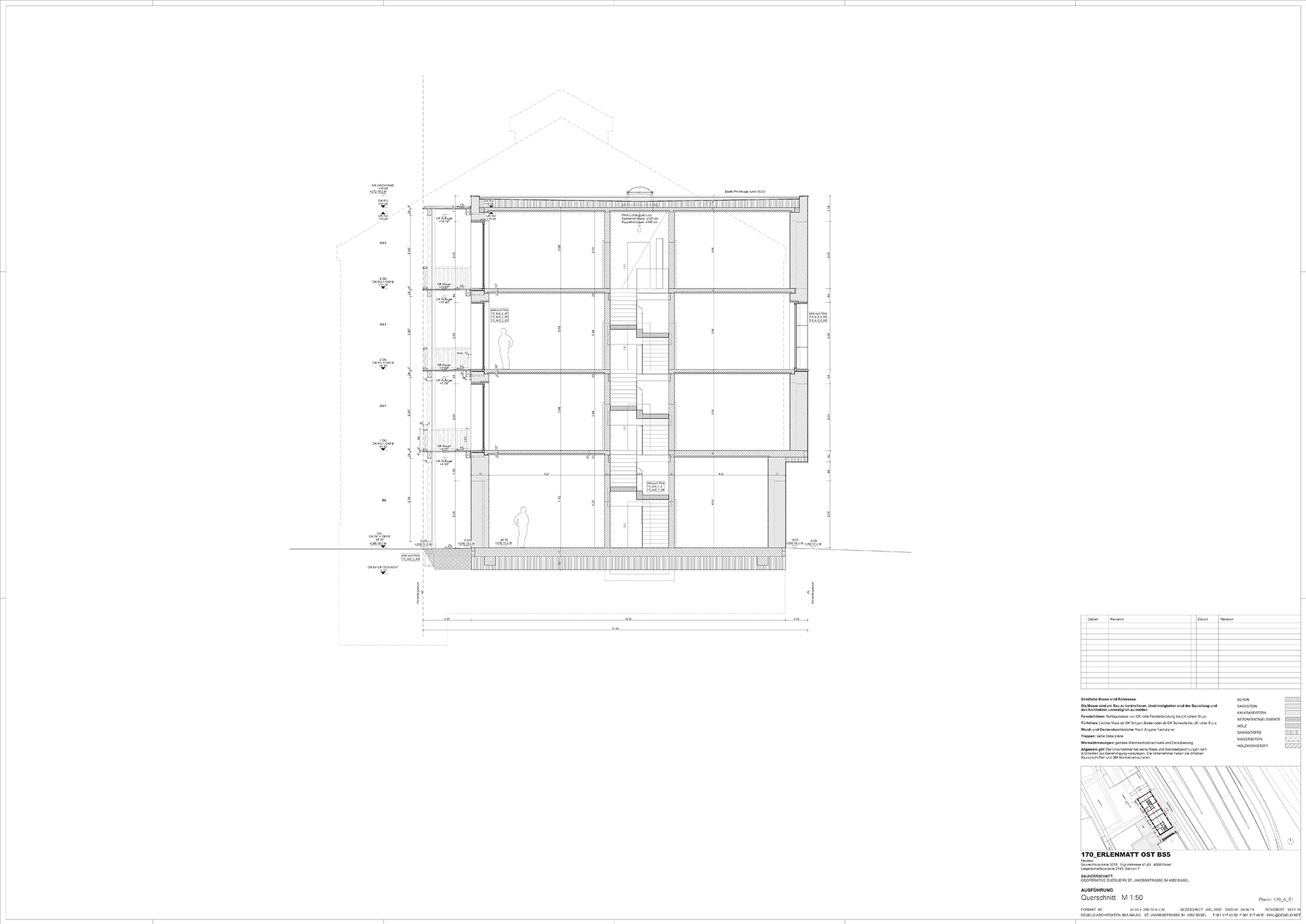
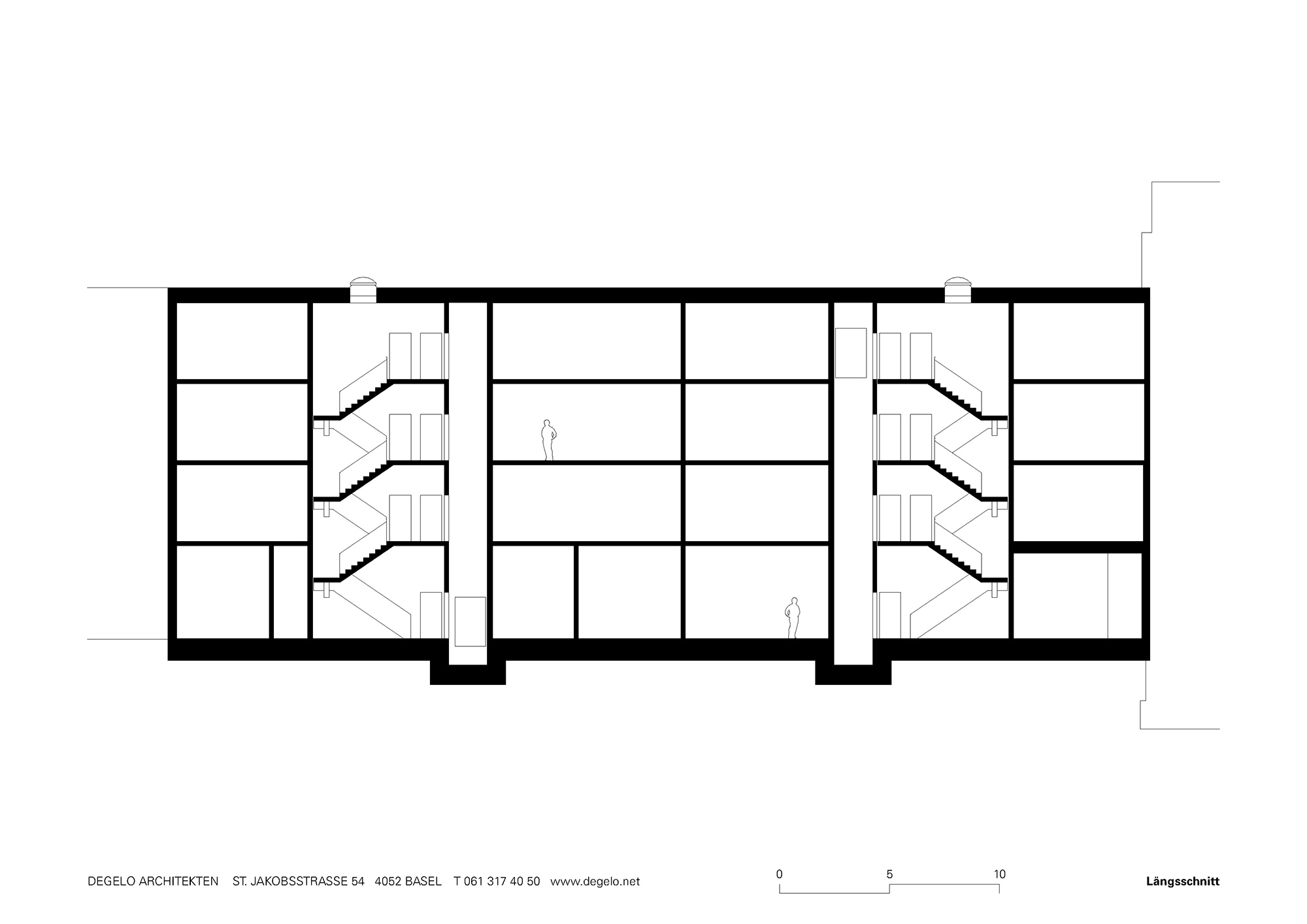
Es sei ihm gar nicht so sehr ums Weglassen gegangen, sagt Heinrich Degelo über das Wohn- und Atelierhaus, das er mit seinem Büro Degelo Architekten geplant und in nur zehn Monaten auf dem Areal Erlenmatt Ost in Basel realisiert hat. Sondern eher um die Frage, was für ein solches Haus überhaupt nötig ist. Zum Beispiel: ein Architekt und ein Bauherr, aber kein renditehungriger Investor. Auftraggeber ist in diesem Fall eine Baugenossenschaft, deren Mitinitiator und Gründungsvorsitzender Degelo ist – vorwiegend weil sich sonst niemand für diese Aufgabe fand, wie er berichtet. Zweitens: Man braucht Licht, Luft und Wärme, aber keine aktive Heizung. Das Haus nutzt stattdessen nur die Abwärme der Personen und Geräte im Haus. Frischluft gelangt durch automatisch gesteuerte Klappen neben den fest verglasten Fenstern in die Räume. Das Prinzip ist von dem Haus „2226“ von Baumschlager Eberle Architekten in Lustenau bekannt; Degelo hat es für den Basler Neubau leicht abgewandelt. Zum Beispiel verzichtet er konsequent darauf, die Räume in Kälteperioden durch automatisches Anschalten der Beleuchtung zu beheizen. Damit das Klimakonzept funktioniert, braucht ein Haus ferner große Speichermassen – die aus Ziegeln gemauerten Außenwände sind in Basel einschließlich Putz rund 80 cm dick, die Geschossdecken aus Beton aber nur so dimensioniert, wie es statisch erforderlich war.
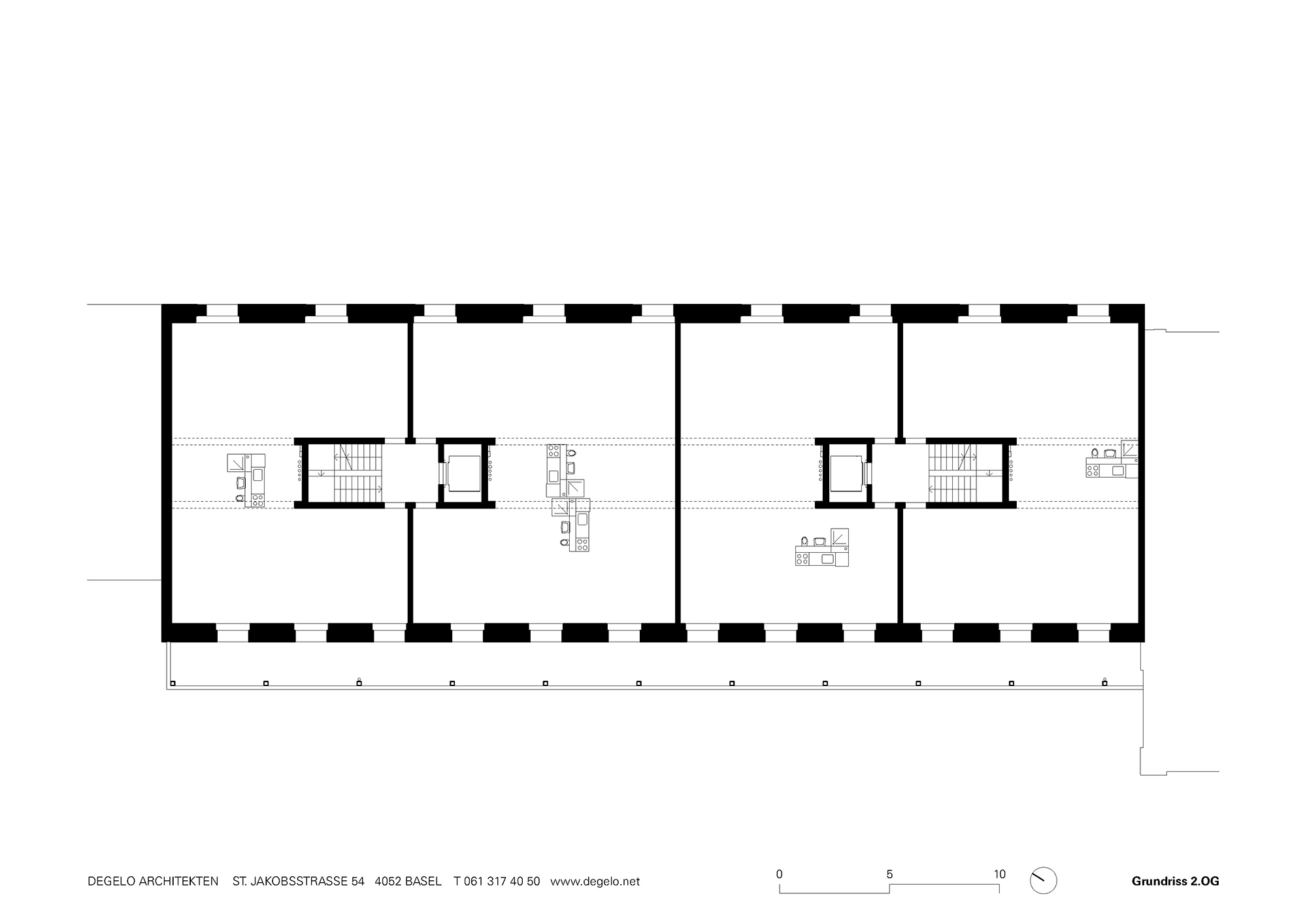
Drittens braucht ein Haus Flächen, aber nicht die übliche Kombination „Zimmer, Küche, Bad“. Die Bewohner können die von ihnen gemieteten Quadratmeter stattdessen frei einteilen und ausgestalten. Bauseits vorhanden sind nur, viertens, die unbedingt notwendigen Anschlüsse und Installationen. Zum Beispiel ein frei platzierbarer Sanitärblock, an den auf der einen Seite Dusche, WC und Waschbecken und auf der anderen eine Küchenzeile anschließen lassen. Und ein Steckdosentableau am zentralen Installationsschacht in jeder Einheit. Von hier aus können die Mieter alle weiteren Leitungen entweder per Verlängerungskabel in ihre Wohnungen hinein verlegen – das geht auch ohne Hilfe eines Elektrikers – oder als feste Installationen.
Minimale Installationstechnik
Auch der Sanitärblock besteht lediglich aus dem Traggerüst und allen notwendigen Anschlüssen, seine Verkleidung und Einbindung in die Innenraumgestaltung obliegt den Mietern. Die Zu- und Ableitung des Wassers erfolgt über flexible Schläuche unter der Decke. Dorthin gelangt das Abwasser über eine kleine Abwasserhebeanlage im Sanitärblock.
Das Haus sollte nicht nur kostengünstig sein, sondern auch ökologisch hochwertig. Die Architekten haben sich intensiv mit den Baumaterialien und ihrer Wiederverwertbarkeit befasst. Die Balkone auf der Westseite bestehen zum Beispiel aus unbehandeltem Holz – Heinrich Degelo vergleicht sie mit einem Brennholzstapel, der sich bei einem Abbruch des Hauses problemlos verfeuern ließe. Auf behandeltes und sogar auf verleimtes Holz haben die Architekten konsequent verzichtet. Auch bei den massiven Bauteilen achteten sie darauf, keine Verbundmaterialien zu verwenden. In der „offiziellen“ Ökobilanz des Hauses, die den Schweizer Minergie-Berechnungsregeln folgt und die von allen Neubauten in Erlenmatt Ost gefordert war, werden die Vorzüge des Hauses jedoch gar nicht so recht sichtbar. Dort musste nämlich zum Beispiel ein Pauschalwert für die graue Energie der Heizungsanlage eingetragen werden, obwohl das Haus gar keine hat. Merke: Wer konsequent kostengünstig und ökologisch baut, fällt heute oft durch jedes Raster. Die Mieter indes können sich freuen: Sie zahlen nur 10 Schweizer Franken Miete pro Quadratmeter – laut Degelo rund ein Drittel dessen, was für Neubauten in der Stadt sonst üblich ist.
Weitere Informationen:
Tragwerksplanung: Rapp Infra AG
Elektroplanung: K. Schweizer AG
Konzept automatische Fensterlüftung: T.A.U. GmbH, Lustenau
Sanitärplaner: Rapp Gebäudetechnik
Akustikplanung: Gartenmann Engineering





















