Wein und Naturstein: Les Domaines Ott, Château de Selle
Foto: Dan Glasser
Das 1896 gegründete Weingut Les Domaines Ott besteht heute aus drei Standorten, die allesamt in der hügeligen Landschaft der Provence liegen. Château de Selle ist die älteste der Niederlassungen und gehört zur Gemeinde Taradeau, so wie viele weitere Weinberge in der Gegend. 2017 fand die Eröffnung der neuen Produktionshalle von Architekt Carl Fredrik Svenstedt statt: ein geometrisches Design mit gestapelten Natursteinblöcken als Fassade.
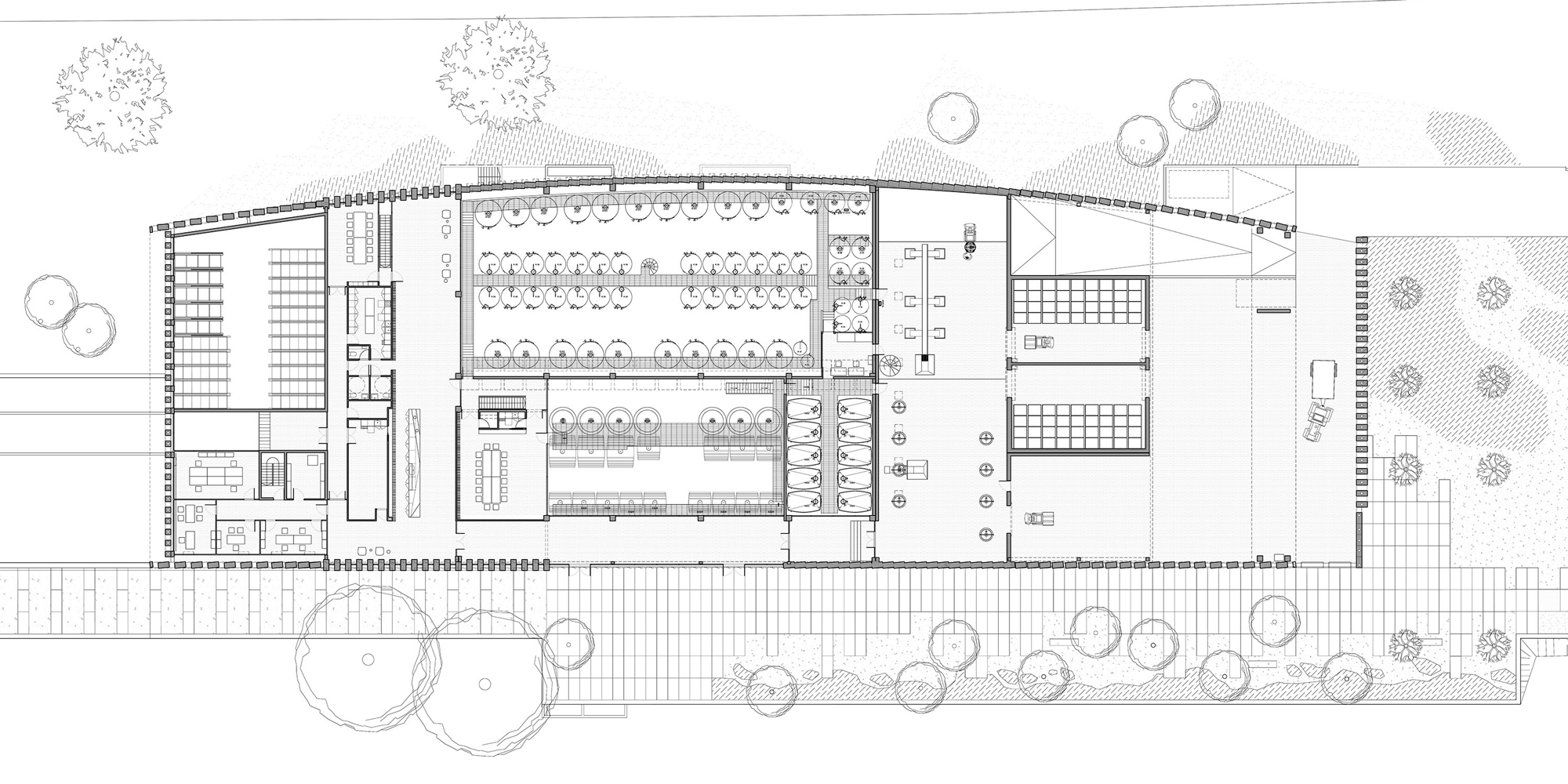
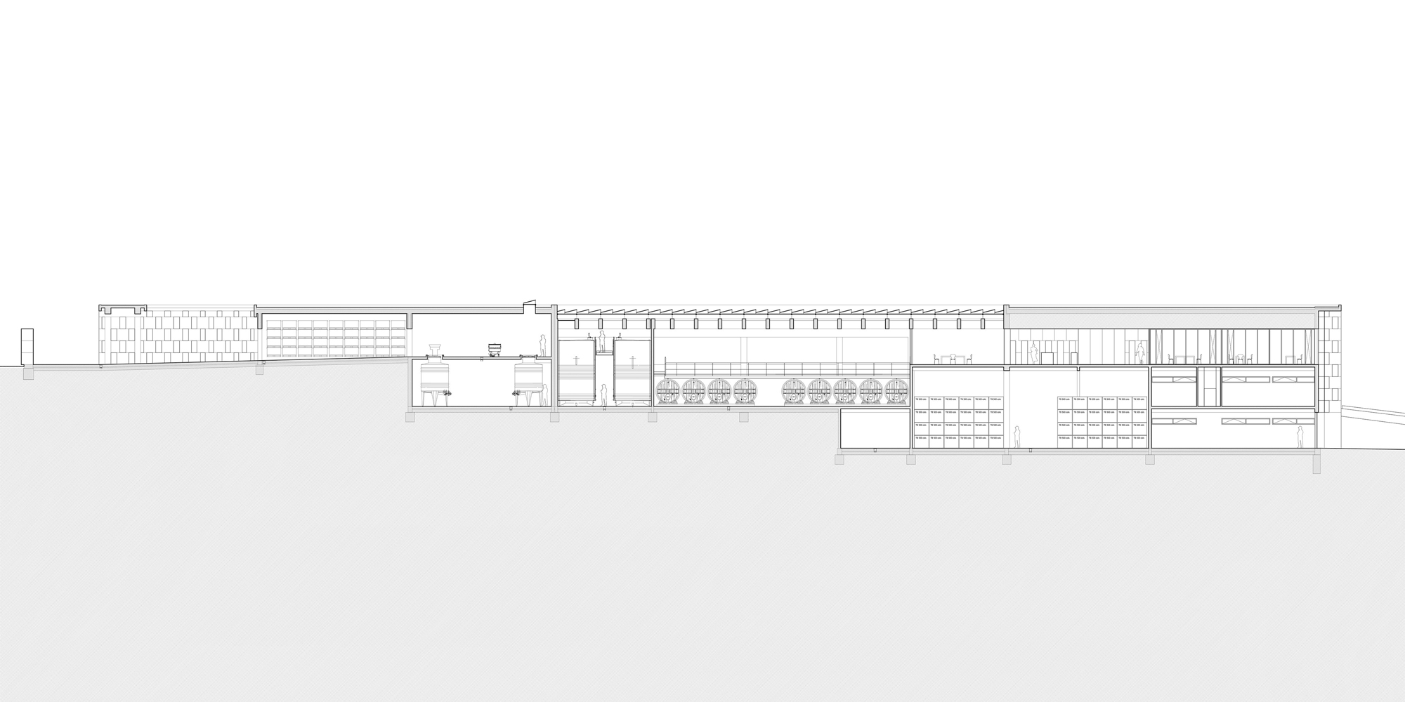
Der flache Baukörper ist in einen Hügel eingebettet und nimmt sich daher trotz seiner großzügigen Grundfläche von über 4000 m² optisch zurück. In der Umgebung erstrecken sich in alle Richtungen weitläufige Weinberge. Die Fassade aus Natursteinblöcken variiert in ihrer Gliederung: Lange, schmale Pfeiler und quadratische Steine mit Abmessungen von 1 x 1 m sitzen stellenweise in großen Abständen zueinander und stapeln sich andernorts in einem dichten Verbandsystem.
Im Innenraum sorgt die minimalistische Materialwahl in Kombination mit dem reduzierten Farbkonzept für einen edlen Eindruck. Eingangsbereich und Konferenzräume weisen mit ihrem hölzernen Mobiliar noch vereinzelt warme Farbtupfer auf. Tiefer im Kern des Gebäudes bleiben nur noch die kühlen Grautöne von Aluminium und Sichtbeton übrig. So wirkt die Produktionshalle industriell und schlicht.
Neben allen notwendigen Räumen für Personal, Produktion und Auslieferung hält das Weingut auch Besonderheiten für Besucher bereit: Über eine erhöhte Aussichtsplattform können die Gäste die Halle überblicken und jede Etappe der Weinherstellung vor Ort kennenlernen.













