Wine and natural stone: Les Domaines Ott, Château de Selle
Foto: Dan Glasser
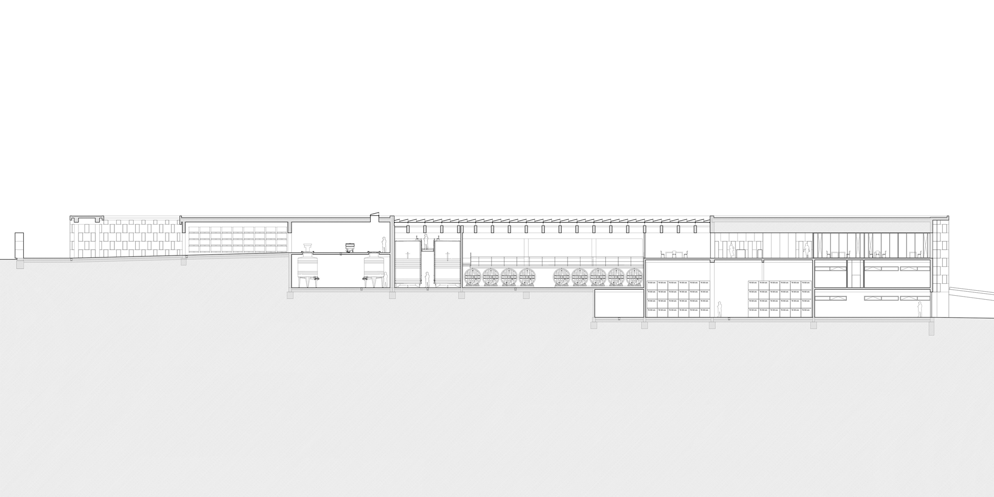
Founded in 1896, the Les Domaines Ott winery has three sites today, all located in the rolling hills of Provence. Château de Selle is the oldest of its properties, and like many vineyards in the surroundings is situated in the Taradeau municipal area. Its new production facility designed by the architect Carl Fredrik Svenstedt saw its opening in 2017 and comes in the form of a geometric building with a façade of stacked stone blocks.
The flat structure is embedded in a hillside, meaning that despite its generously-sized 4,000-square-metre footprint is not overly dominant in impression. Extensive vineyards reach in all directions in the surroundings. The facade made up of stone blocks has a varied modulation, with long, slender pillars and one-square-metre stones set at wide intervals in some places and stacked in a dense structural composition in others.
Minimalist material choices in combination with a restrained colour concept provide the interior an upmarket effect. While an occasional touch of warm colour is still to be found in wooden furnishings in the entrance area and conference rooms, just the cool grey of aluminium and exposed concrete remains deeper within the building, giving the production hall itself a simple, industrial look.
Along with all the necessary rooms for the personnel, production work and shipping, the vineyard also offers a special feature in the form of a raised viewing platform, which enables visitors to look down onto the hall and watch every step in the wine production process at the location.













