// Check if the article Layout ?>
Wiedergeburt mit 50: Umbau einer Krankenpflegerschule in Asker
Foto: Nils Petterdale
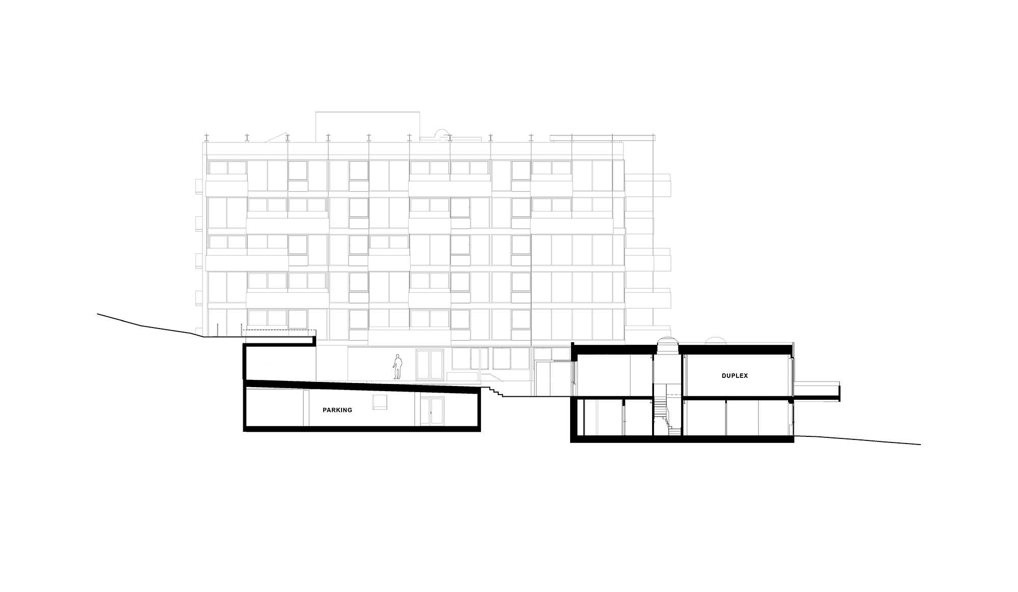
Die ehemalige Krankenpflegerschule in Asker südwestlich von Oslo wurde 1966 errichtet. Sie bestand aus einem zweigeschossigen Flachbau mit den Unterrichtsräumen sowie einem Sechsgeschosser, der das Wohnheim für die Schwestern- und Pflegeschüler beherbergte. Die beiden an einem Hang gelegenen Baukörper rahmen einen kleinen Erschließungshof. Zur Talseite hin genießen vor allem die oberen Geschosse einen unverbauten Blick. Mit seiner Vormauerung aus roten Ziegeln, großen Eckbalkonen sowie den unterschiedlich hohen Fensterbändern besaß vor allem das Wohnheim einen eigenen, unverwechselbaren Charakter.
Diesen wollten Jarmund Vigsnæs bei der jetzt anstehenden Sanierung unbedingt erhalten. Dennoch war es klar, dass das Gebäude in seiner neuen Funktion als investorenfinanzierter Wohnungsbau größere Fensterflächen und Balkone in jeder Wohneinheit brauchen würde. Insgesamt sind in dem einstigen Wohnheim 36 Wohnungen unterschiedlicher Größe entstanden; der Flachbau beherbergt nun sieben Reihenhäuser. Unter dem Hof wurde eine neue Tiefgarage angelegt.
Wo immer dies möglich war, beließen die Architekten die bestehenden Ziegelfassaden sichtbar. Lediglich im Bereich der Fensterbänder sind die Brüstungen nun deutlich niedriger und (ebenso wie die Balkone) mit Holz verkleidet. Der Wechsel zwischen höheren und niedrigeren Brüstungshöhen prägt das Fassadenbild aber nach wie vor.
Im Inneren der Gebäude wurden einige tragende Wände mit Öffnungen versehen, um Wohnungen zu vergrößern. Die Geschossdecken blieben im Wesentlichen unangetastet mit Ausnahme der Reihenhäuser, wo nun zweigeschossige Räume unter Glasoberlichtern die beiden Ebenen verbinden. Teilweise blieben die Betondecken samt Unterzügen sichtbar. Viele Innenoberflächen mussten jedoch aus Gründen der Raumakustik, des Brand- und Wärmeschutzes mit Gipskarton verkleidet werden.
Insgesamt resümieren die Architekten den Umbau der Schule wie folgt: »Die Voraussetzungen und Möglichkeiten einer Sanierung haben uns zu neuen, unerwarteten gestalterischen Qualitäten und Lösungen geführt, die bei einem Neubau wohl nicht entstanden wären.«
Diesen wollten Jarmund Vigsnæs bei der jetzt anstehenden Sanierung unbedingt erhalten. Dennoch war es klar, dass das Gebäude in seiner neuen Funktion als investorenfinanzierter Wohnungsbau größere Fensterflächen und Balkone in jeder Wohneinheit brauchen würde. Insgesamt sind in dem einstigen Wohnheim 36 Wohnungen unterschiedlicher Größe entstanden; der Flachbau beherbergt nun sieben Reihenhäuser. Unter dem Hof wurde eine neue Tiefgarage angelegt.
Wo immer dies möglich war, beließen die Architekten die bestehenden Ziegelfassaden sichtbar. Lediglich im Bereich der Fensterbänder sind die Brüstungen nun deutlich niedriger und (ebenso wie die Balkone) mit Holz verkleidet. Der Wechsel zwischen höheren und niedrigeren Brüstungshöhen prägt das Fassadenbild aber nach wie vor.
Im Inneren der Gebäude wurden einige tragende Wände mit Öffnungen versehen, um Wohnungen zu vergrößern. Die Geschossdecken blieben im Wesentlichen unangetastet mit Ausnahme der Reihenhäuser, wo nun zweigeschossige Räume unter Glasoberlichtern die beiden Ebenen verbinden. Teilweise blieben die Betondecken samt Unterzügen sichtbar. Viele Innenoberflächen mussten jedoch aus Gründen der Raumakustik, des Brand- und Wärmeschutzes mit Gipskarton verkleidet werden.
Insgesamt resümieren die Architekten den Umbau der Schule wie folgt: »Die Voraussetzungen und Möglichkeiten einer Sanierung haben uns zu neuen, unerwarteten gestalterischen Qualitäten und Lösungen geführt, die bei einem Neubau wohl nicht entstanden wären.«
Weitere Informationen:
Mitarbeiter: Einar Jarmund, Håkon Vigsnæs, Alessandra Kosberg, Anders Granli, Jens Herman Næss, Mari Isdahl, Martin Blum-Jansen, Martin Kandola, Ane Groven, Anders Olivarius Bjørneseth
Bauunternehmen: SV Betong AS
Mitarbeiter: Einar Jarmund, Håkon Vigsnæs, Alessandra Kosberg, Anders Granli, Jens Herman Næss, Mari Isdahl, Martin Blum-Jansen, Martin Kandola, Ane Groven, Anders Olivarius Bjørneseth
Bauunternehmen: SV Betong AS






















