// Check if the article Layout ?>
Wiederverwendet und aufgewertet: Bürohaus in Sydney
Foto: Prue Ruscoe
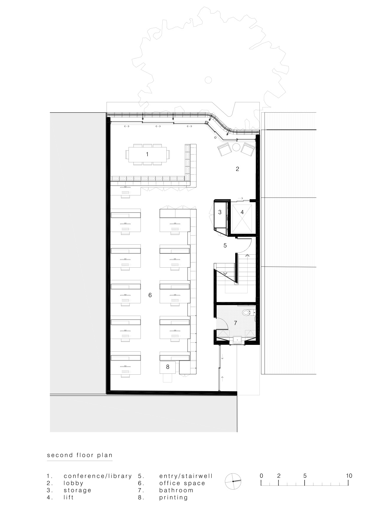
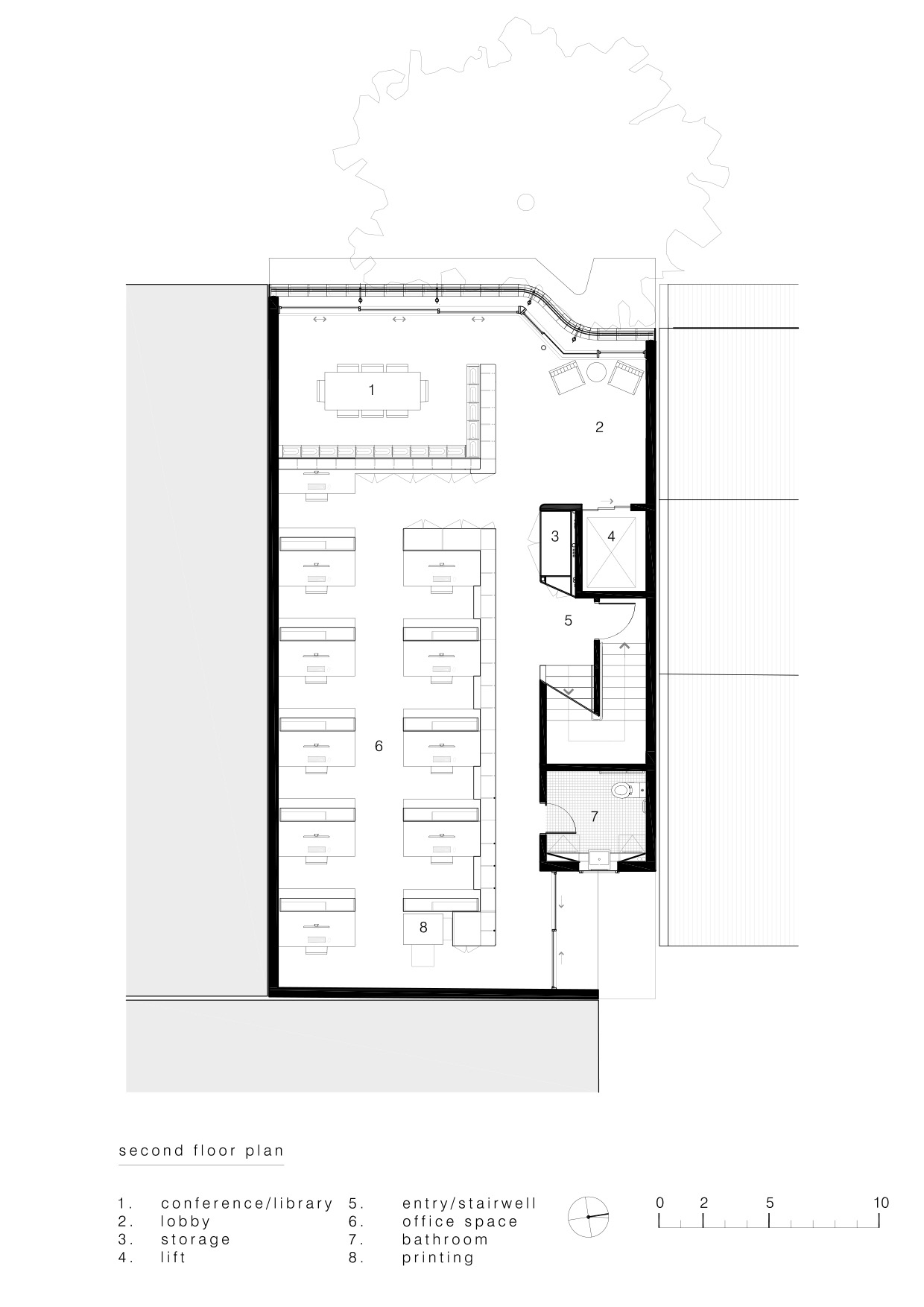
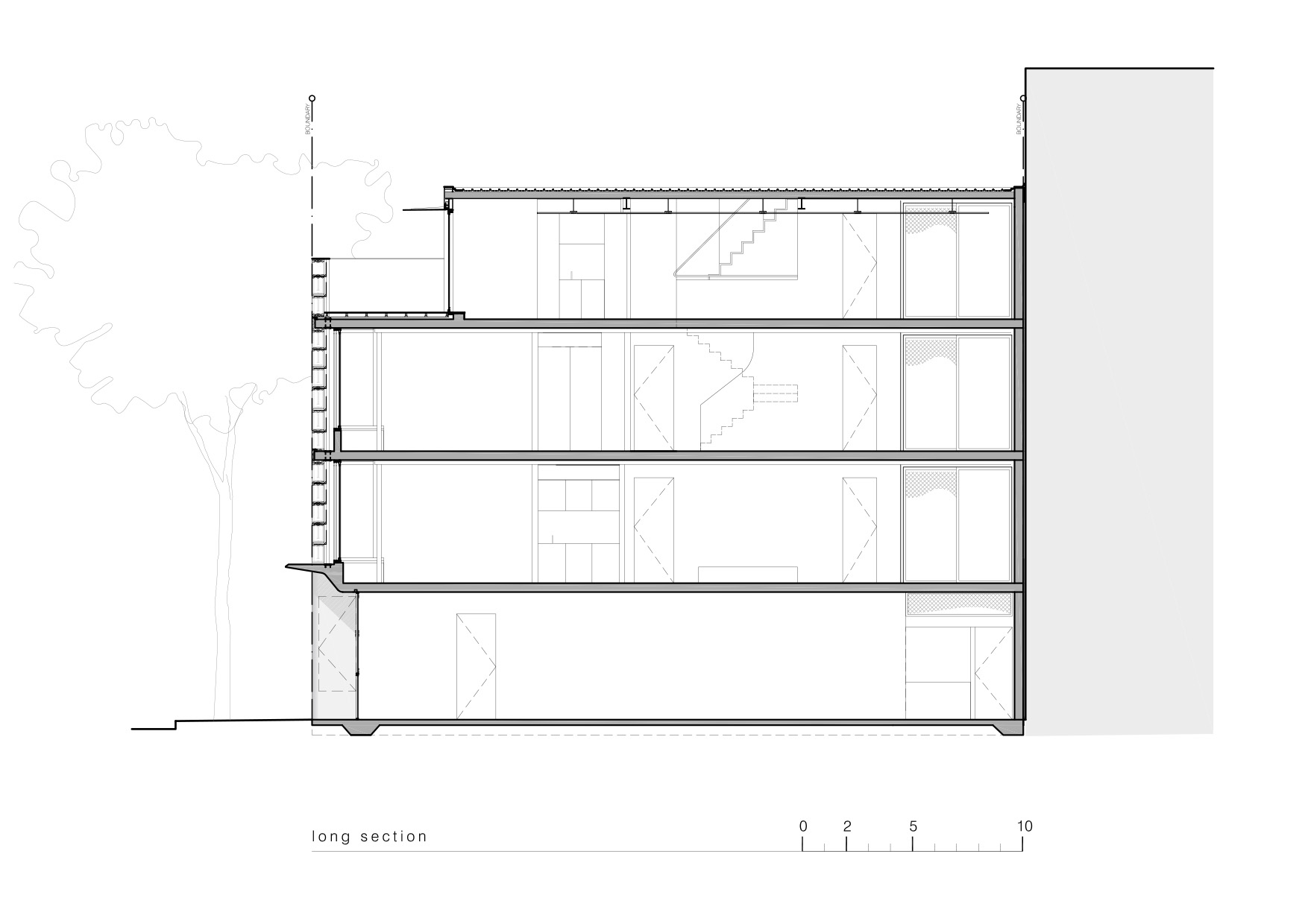
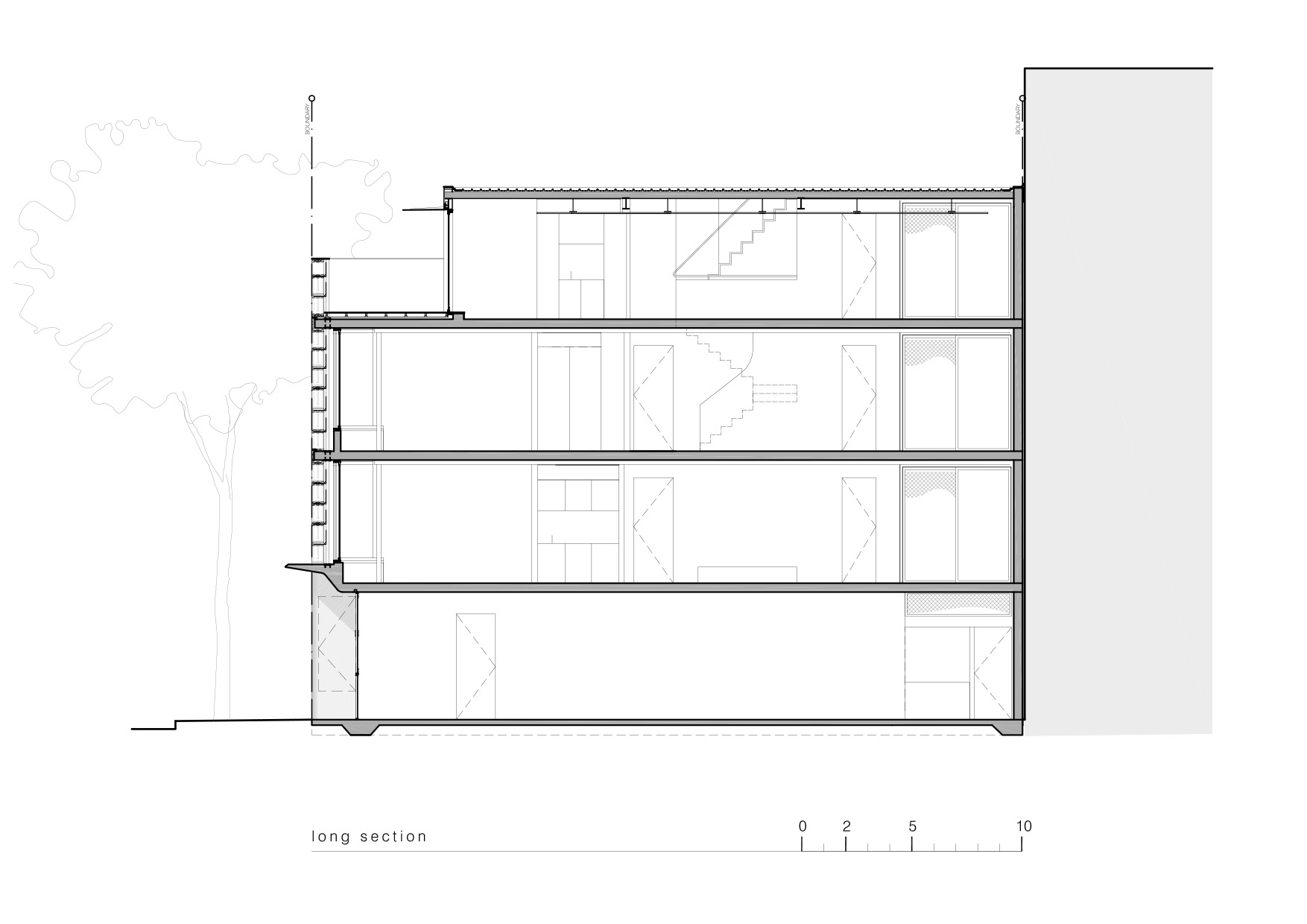
Die Idee einer außergewöhnlichen Wiederverwertung von Baumaterialien definierte den Entwurf von Rosselli Architects. Das Bürohaus in einem Vorort im Südosten von Sydney hat eine Fassade aus Terrakottadachziegeln. Durch ihre Umnutzung werden einerseits gebrauchte Materialien neu definiert und aufgewertet; andererseits wird der ökologische Fußabdruck des Gebäudes dadurch verkleinert.
Mit ihrer licht- und luftdurchlässigen Fassade finden Rosselli Architects eine ungewöhnliche Lösung für den Sonnenschutz gegen die raue Westsonne. Terrakottafliesen – »das unterschätze Symbol der Vorstädte«, so die Architekten – hatten bis jetzt keinen Absatzmarkt für eine Wiederverwendung als Baumaterial. Außerdem stehen die Fassadenfliesen im Bezug zur Mauerwerksfassade des benachbarten Gebäudes.
Zuerst wurden mehrere Prototypen 1:1 für die Fassadengestaltung ausprobiert. Das intuitive Verfahren erlaubte ein Experimentieren mit unterschiedlichen Fliesentypen, -formen und -mustern. Gleichschenklige, dreieckige Muster wurden verwendet, um visuelle Hindernisse auf Augenhöhe zu reduzieren. Für die oberen und unteren Büroraumbereiche kamen diagonal gestellte oder nach Norden abgewinkelte Fließen zum Einsatz.













