Stampflehm trifft Holz
Windkraft Simonsfeld von Juri Troy Architects
Im Innenhof begegnen sich Alt und Neu. Obwohl die Gebäudeteile nur 10 Jahre auseinander liegen, ist der Wandel der Formensprache unverkennbar. © Patrick Johannsen
Das Unternehmen Windkraft Simonsfeld zählt zu den größten Windstromproduzenten in Österreich. 1996 gegründet, betreibt es mittlerweile knapp 100 Windkraftanlagen und einen Solarpark. 2014 weihte die Firma ihren neuen Firmensitz in Erstbrunn nördlich von Wien ein. Architekt war damals der bekannte österreichische „Solarpionier“ Georg W. Reinberg. 10 Jahre später war Windkraft Simonsfeld aus dem Reinberg-Bau buchstäblich hinausgewachsen und wollte mit einem Erweiterungsbau zusätzliche Büroflächen, aber auch Besprechungs- und Veranstaltungsräume sowie einen adäquaten Firmenempfang schaffen.


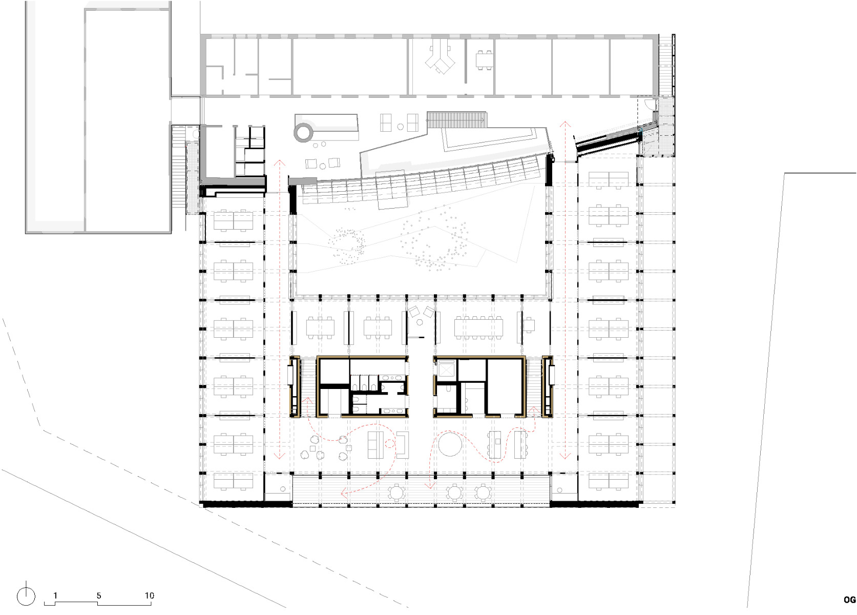
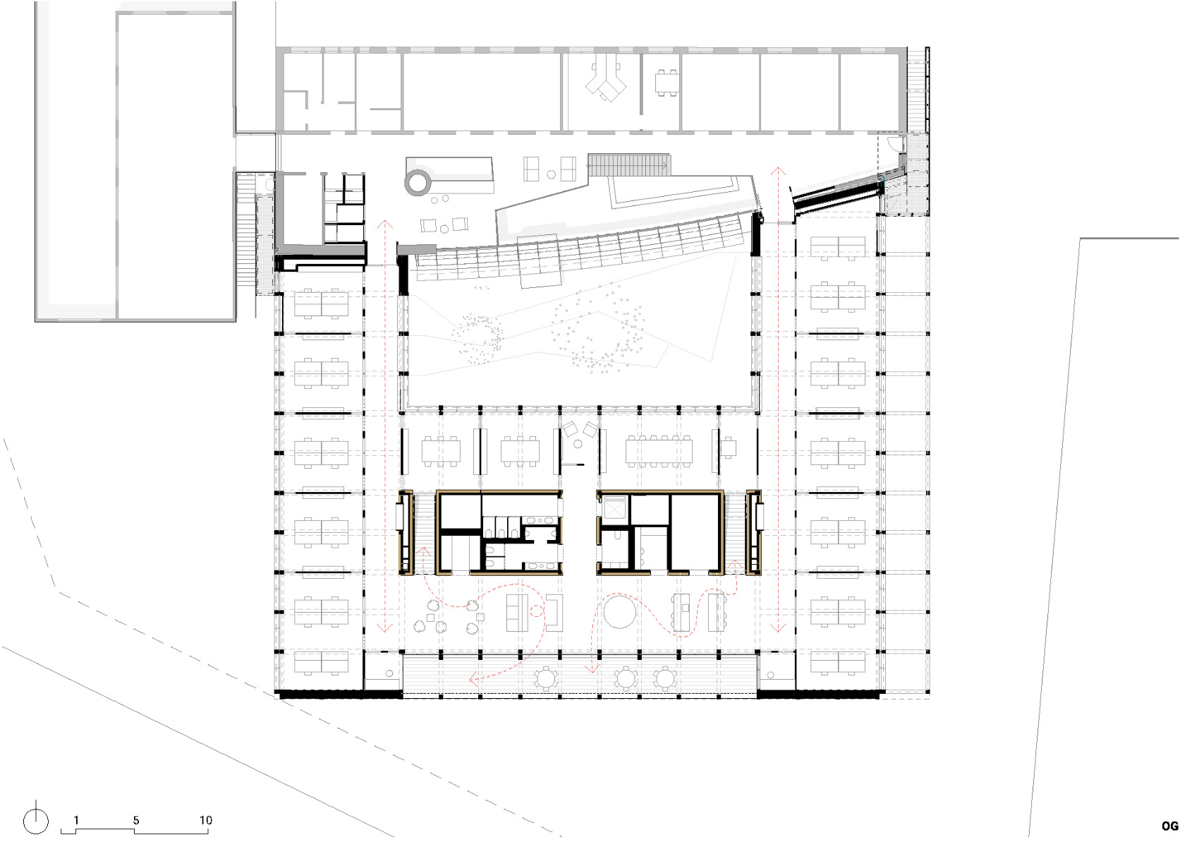
Zwei Kerne aus Stampflehm nehmen Treppen, Lift, WCs, Technik und Nebenräume auf. Hier ein Blick in den neuen Empfangsbereich. © Patrick Johannsen
Vom Riegel zur Blockbildung
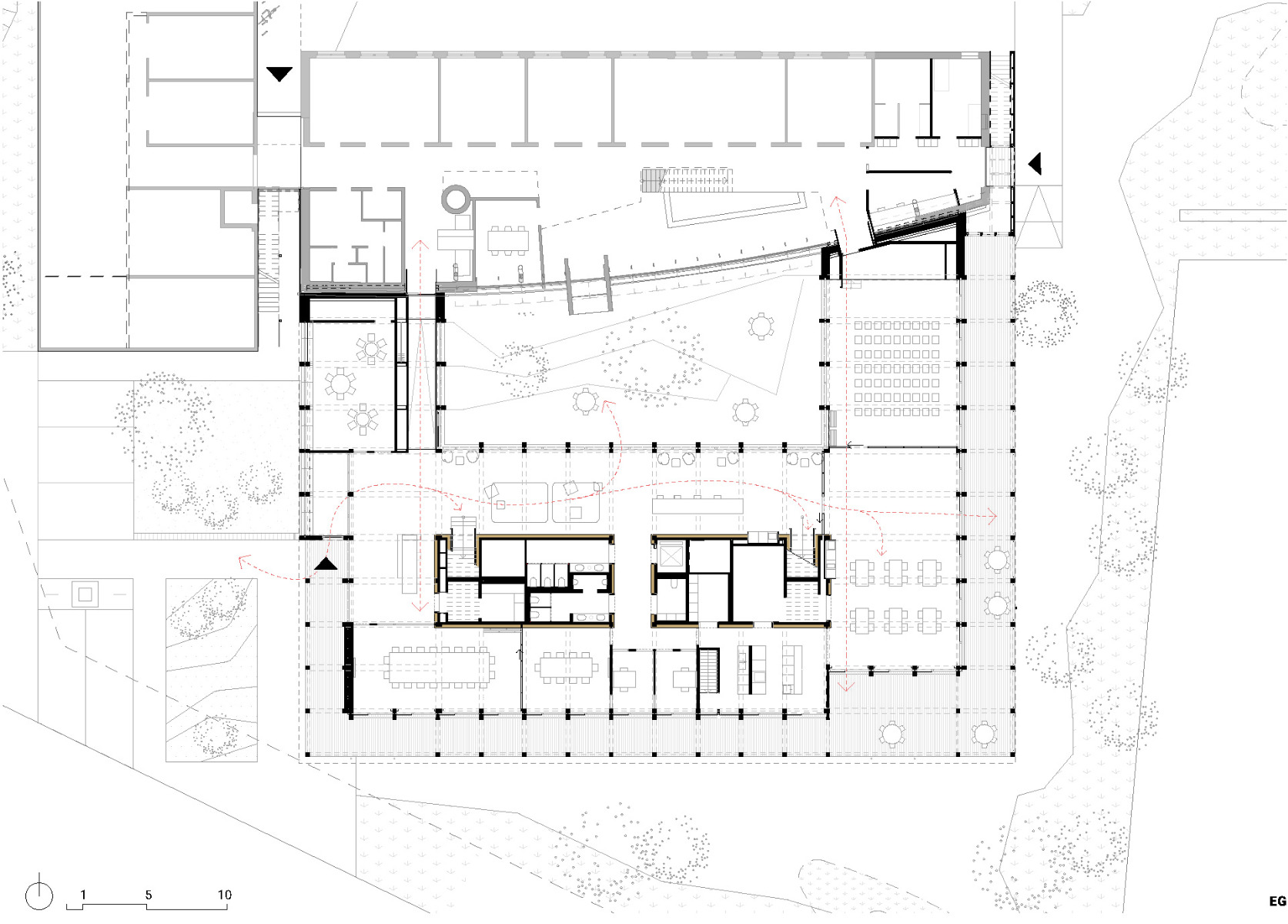
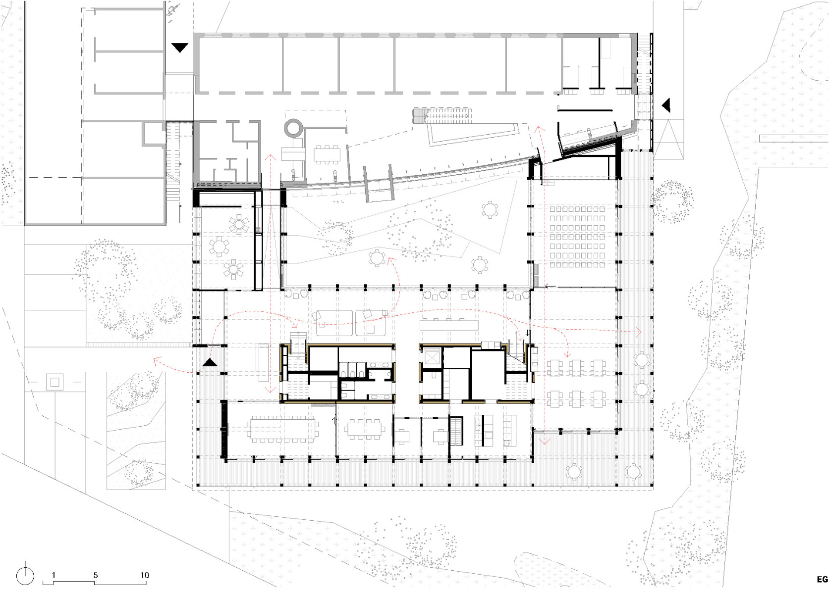
Mit dem Neubau wurde der in Wien ansässige Vorarlberger Architekt Juri Troy beauftragt. Der u-förmige, zweigeschossige Baukörper erweitert das Bestandsgebäude zur Straße hin zu einem ringsum geschlossenen Block mit Innenhof. Die Erschließungsbereiche sind lediglich an zwei Stellen miteinander verbunden, sodass ein geschlossener Rundlauf entsteht. Im Erdgeschoss des Neubaus sind Empfang Besprechungsräume und ein multifunktionaler Veranstaltungsraum untergebracht, im Obergeschoss überwiegend Büroflächen.


In der Straßenfront öffnen sich die Büroräume auf einen breiten Pausenbalkon. © Patrick Johannsen
Holzskelettbau mit Stampflehmkern
Innenräume und Konstruktion des Gebäudes sind durch Gegensätze gekennzeichnet: Die Büroflächen umhüllt ein regelmäßig gegliederter Holzskelettbau, der Nebenraumkern mit Treppe, Sanitär- und Nebenräumen ist dagegen von zweigeschossigen Stampflehmwänden umgeben. Eine Bauteilaktivierung macht seine enorme thermische Masse nutzbar. Heiz- und Kühlenergie für das Gebäude stammen auf 11 Tiefenbohrungen, die an eine Wärmepumpe angeschlossen sind. Zusätzlich ist das gesamte Dach mit einer Photovoltaikanlage bedeckt.


Im Erdgeschoss sind überwiegend Besprechungs- und Veranstaltungsräume untergebracht. Die Büros liegen eine Etage höher. © Patrick Johannsen
Bestnote im klimaaktiv-Standard
Im österreichischen klimaAktiv-Bewertungssystem erreicht der Simonsfeld-Erweiterungsbau die Höchstbewertung von 1000 Punkten und damit den Goldstandard. Damit übertrifft er noch den Vorgängerbau, der es immerhin auf 965 Punkte brachte. Ein Blick aufs Detail verdeutlicht, dass sich die Bewertungsmaßstäbe für nachhaltiges Bauen seit 2014 verändert haben: Georg W. Reinberg plante sein Gebäude noch als Passivhaus, die Erweiterung bringt es beinahe auf den doppelten Wärmebedarf. Dieser wird jedoch durch die Nutzung erneuerbare Energien überkompensiert. Außerdem sorgen der Stampflehm und die Holzkonstruktion mit ihrem geringen Gehalt an Grauer Energie dafür, dass das Gebäude gleich von Anfang an mit einer negativen CO2-Bilanz den Betrieb aufnimmt.
Mehr dazu in Detail 3.2026 sowie in unserer Datenbank Detail Inspiration.
Architektur: Juri Troy Architects
Bauherr: Windkraft Simonsfeld
Standort: Ernstbrunn (AT)
Bauleitung: Georg Marterer




















