Wo Polizisten pauken: Hörsaalgebäude von Michel + Wolf im Schwarzwald
Foto: Wolfram Janzer
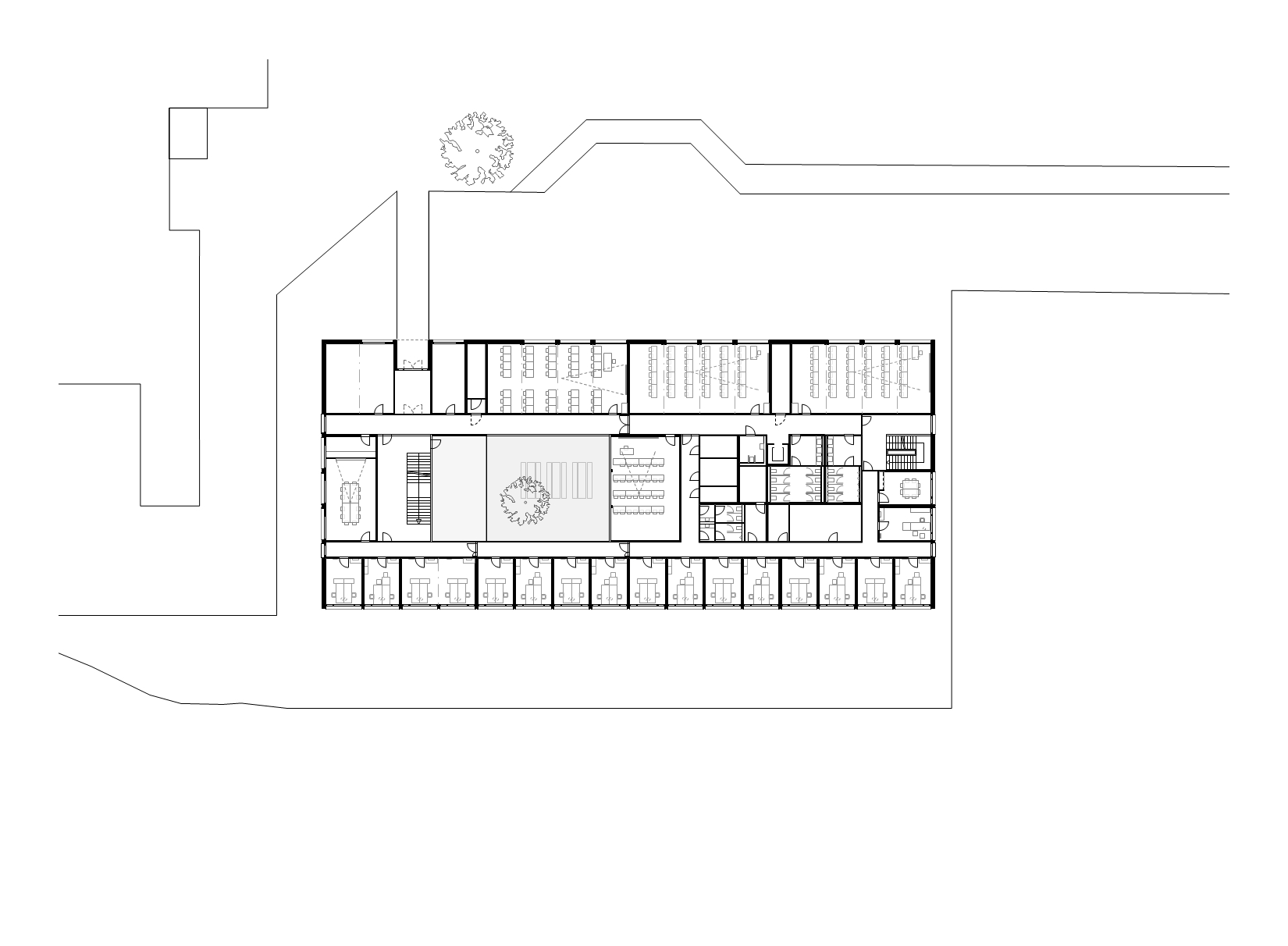
Der Campus dort ist schon eine Weile in Betrieb: 1979 wurde er gebaut, damals für 400 Schüler, und über die Jahre erweitert. Eine neue Raumschießanlage ging erst vor Kurzem in Betrieb, und die Mensa wurde erweitert. Der hohe Ausbildungsdruck aber machte auch ein neues Büro- und Hörsaalgebäude nötig. Auf dem ehemaligen Tennisplatz wurde es aus 120 vorfabrizierten Holzmodulen in kurzer Bauzeit errichtet. Der 3-geschossige, kompakte Neubau ist dreibündig organisiert. In der Mittelzone sind die untergeordneten Nutzungen untergebracht sowie drei Hörsäle mit je 30 Plätzen und ein großer Innenhof, den die Schüler gerne in den Unterrichtspausen nutzen. An der Nordfassade liegen 11 große Hörsäle für je 45 Zuhörer, an der Südseite 56 Büros. Große Fenster, helle Decken und Wände im Wechsel mit den warmen Holzoberflächen schaffen eine freundliche Raumatmosphäre und ein angenehmes Raumklima.
Ein Allgäuer Holzbaubetrieb fertigte die Raummodule aus Brettschichtholz in Sichtqualität vor. Der Werkstoff, Weißtanne, wurde auch für die Fassadenschalung verwendet. Die Gebäudehülle entspricht dem Passivhausstandard, und auf dem Dach wurde eine Photovoltaik-Anlage installiert. Dem auf Nachhaltigkeit bedachten Technik- und Energiekonzept folgt auch die Möglichkeit, die additiven Komponenten des Gebäudes rückzubauen. Am Ende ihres Lebenszyklus sollen sie als Rohstofflager dem technischen Kreislauf zurückgegeben werden.
Weitere Informationen:
Holzbau:Weizenegger Objektbau
BGF: 4.675 m²
BRI: 16.740 m³















