Kleiner Fußabdruck
Wochenendhaus in Québec
© Scott Norsworthy
Wie eine Kanzel aus Holz und Glas kragt das Wochenendhaus der m.o.r.e CLT Cabin von Kariouk Architects zum nahegelegenen See aus. Das minimierte den Aufwand für die Fundamente und damit den Eingriff in die Uferlandschaft.


© Scott Norsworthy
Typischerweise kommen Wochenendhäuser oft in einer traditionellen, „naturverbundenen“ Ästhetik daher – und verschleiern damit den Aufwand, der für ihren Bau und Unterhalt betrieben werden muss. Die m.o.r.e CLT Cabin – so benannt nach den Initialen der Großmütter des Bauherrenpaars – geht hier den entgegengesetzten Weg. Radikal zeitgenössisch, mit industriellen Methoden gefertigt und gerade dadurch ressourceneffizient soll sie sein.
Luftige Konstruktion
Normalerweise fordern die Baubehörden für die Häuser am Lac du Brochet, rund 50 km nördlich von Ottawa, einen Mindestabstand von 30 m zum Seeufer. In einem zweijährigen Rechtsstreit setzten die Architekten aber durch, dass diese Regel nicht für den auskragenden Teil ihres Neubaus gilt.


© Scott Norsworthy
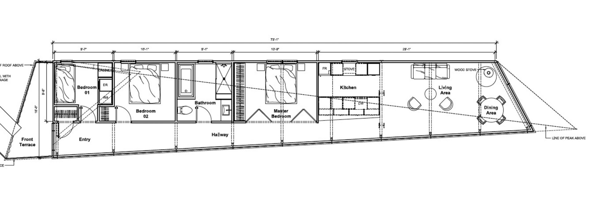
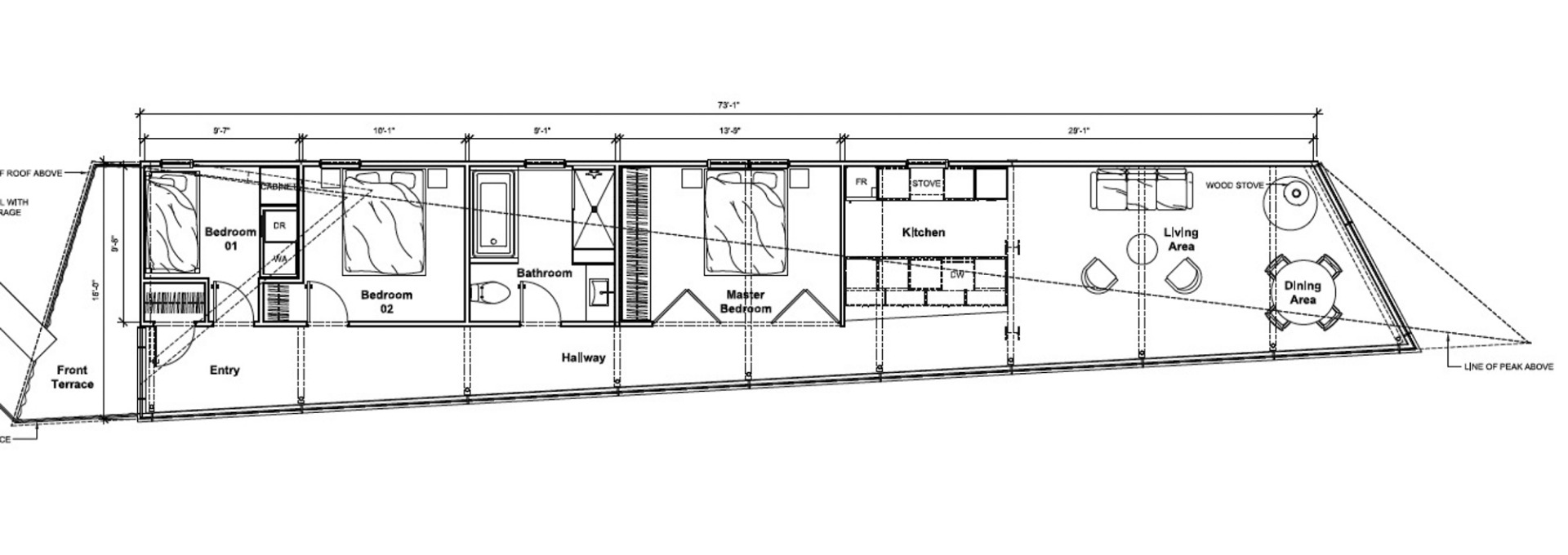
Der eingeschossige Wohntrakt stützt sich nur an zwei Punkten ab – am landseitigen Ende auf einem dreieckigen Betonfundament und etwas jenseits der Mitte auf einer Stahlfachwerkstütze. Seine Decke und Boden sind als Faltwerk aus Brettsperrholz konstruiert, das im Inneren durch Brettschichtholzrippen ausgesteift wird. Die Wahl fiel dabei auf dünne, nur dreilagige Brettsperrholztafeln, da diese im Vergleich zum Eigengewicht die höchste Steifigkeit aufweisen.


© Scott Norsworthy


© Scott Norsworthy
Vorfertigung
Die Holzbauteile wurden inklusive ihrer mehr als 10 000 Bohrungen komplett im Werk vorgefertigt. Sie mussten dann vor Ort nur noch auf einem temporären Gerüst montiert und miteinander verschraubt werden. Bei ihrer Konfektion achteten die Architekten und das Holzbauunternehmen darauf, dass sich die Elemente mit dem Kleinlaster transportieren ließen. Schließlich sollten entlang der schmalen Zufahrtswege nicht auch noch Bäume gefällt werden.


© Scott Norsworthy
Energieeffizienz
Da die nächste größere Straße mehrere Meilen entfernt ist, sollte das Haus in energetischer Hinsicht möglich selbst versorgend sein. Die großflächig verglaste Südfassade ist gerade in den Wintermonaten ein wahrer Sonnenfänger, während im Sommer die dicht stehenden Bäume Schatten spenden. Seinen Strombedarf deckt das Haus komplett von der PV-Anlage auf dem Dach. Geheizt wird mit einem effizienten Holzofen – das Heizmaterial gibt es in der unmittelbaren Umgebung schließlich im Überfluss.
Architektur: Kariouk Architects
Bauherr: privat
Standort: Lac du Brochet, Les Collines-de-l'Outaouais, Québec J0X 1T0 (CA)
Tragwerksplanung: Daniel Bonardi
Holzbauplanung: StyxWorks
Ausführung Holzbau: Laverty Log Homes
Brettsperrholz, Brettschichtholz, Stahlverbinder: Züblin
































