Multifunktionaler Holz-Hybridbau
Wohn- und Geschäftsgebäude in Paris von Anau und Data Architectes
Lot H, © Arnaud Ledu
Der Gebäudekomplex Lot H im Pariser Neubauviertel Chapelle International vereint Wohnen und Arbeiten unter einem Dach. Hinter seinen Betonfassaden verbirgt sich über weite Strecken ein Holzskelett.


Wohn- und Geschäftsgebäude in Paris, © Arnaud Ledu
Wohnen und Arbeiten
Wohnraum für 3000 Einwohnerinnen, dazu 3000 Arbeitsplätze, Logistikflächen, 7000 m² urbane Landwirtschaft und 8000 m² sogenannte SoHos – all das soll bis 2024 auf dem ehemaligen Bahngelände Chapelle International im Norden von Paris entstehen. SoHo steht für Small Office Home Office – kleine Mieteinheiten für Ladenbetreiber, Handwerkerinnen und Startup-Unternehmer, in denen gewohnt und zugleich gearbeitet wird.
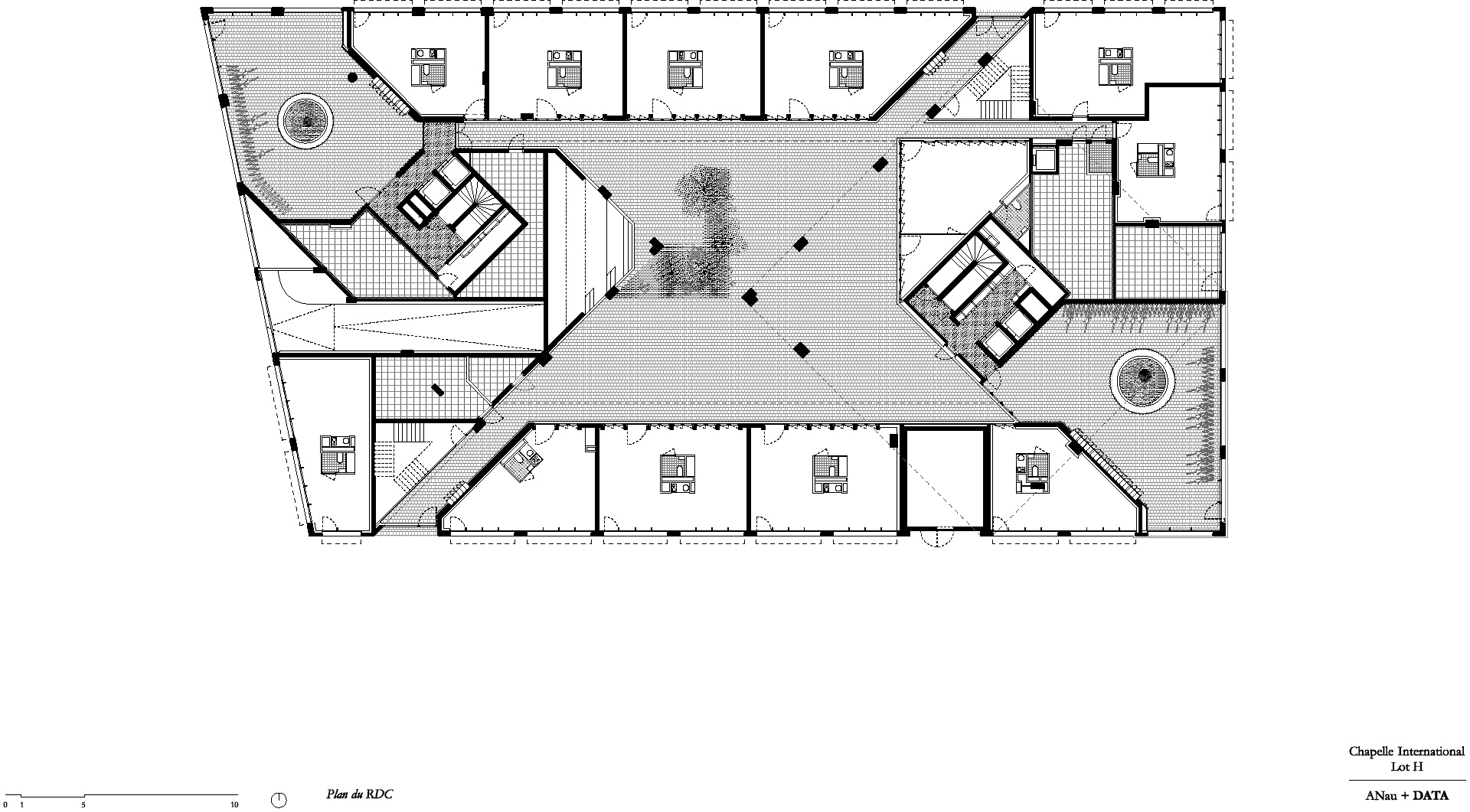
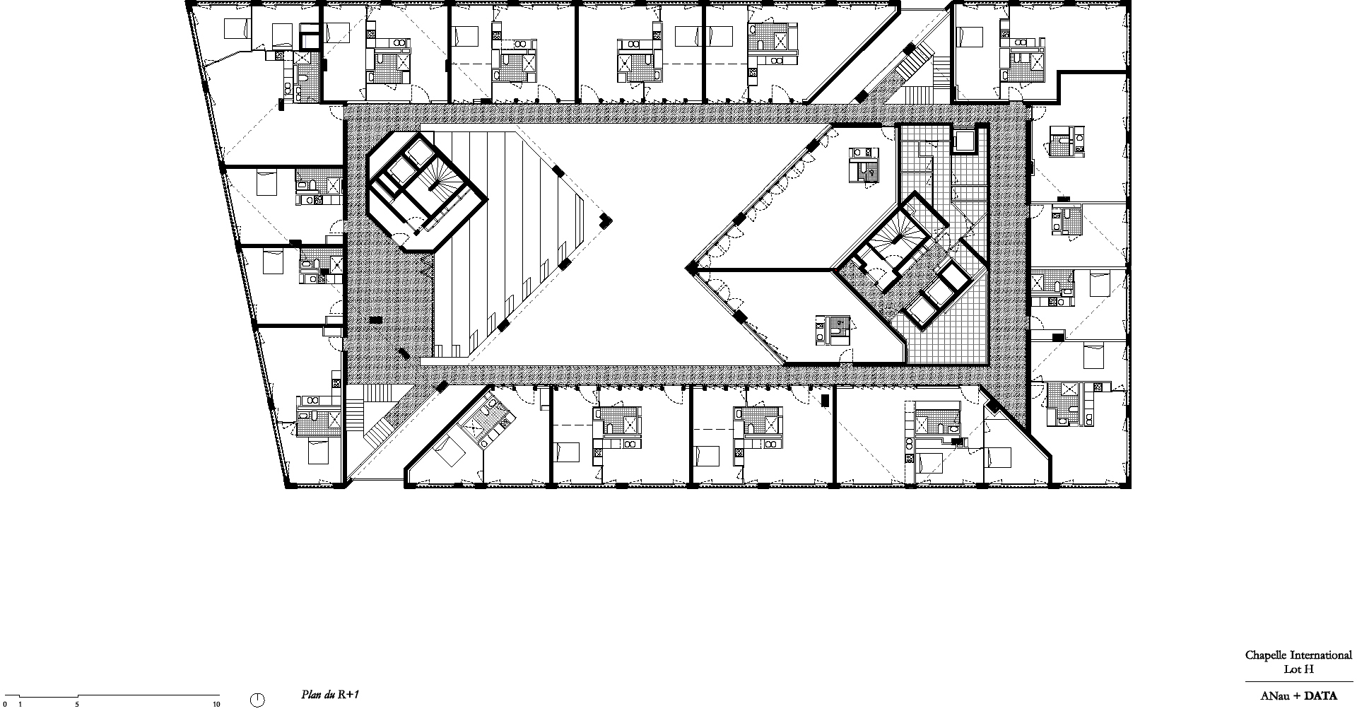
15 solcher zweigeschossigen SoHos vereint das Lot H in seinem zweigeschossigen Sockel, der zugleich den rechteckigen Blockrand definiert. Die beiden 37 und 50 m hohen Türme umfassen insgesamt 129 Wohnungen. Der Entwurf für all dies stammt von Armand Nouvet Architecture (ANAU) und Data Architectes, die gemeinsam den Architektenwettbewerb für die Parzelle gewonnen haben.


Die beiden Türme umfassen insgesamt 129 Wohnungen. © Arnaud Ledu
Gestaltungskonzept
Vor allem auf die Erschließung und Gestaltung der Sockelzone legten die Architekten großes Augenmerk. Wohntürme und SoHos haben streng gerasterte Straßenfassaden aus sandgestrahlten Betonfertigteilen. Zum Innenhof hingegen zeigen die unteren beiden Geschosse viel Holz und Glas. Von den Seitenstraßen an den Längsseiten des Blocks führen Durchgänge diagonal in den Hof. Über Treppen und Laubengänge auf der Hofseite sind die SoHos auch im Obergeschoss von außen erreichbar.


Treppen und Laubengänge auf der Hofseite führen ins Obergeschoss. © Arnaud Ledu
Die Eingänge zu den Hochhäusern liegen dagegen an den Stirnenden des Blocks. Die Eingangsfassaden sind hier bodentief verglast und das Straßenpflaster nach innen in die Lobby fortgeführt. Die 45°-Drehung der Hochhäuser gegen das Straßenraster war im Masterplan vorgegeben, damit sich die Türme nicht gegenseitig die Sicht wegnehmen.
Die Wohnungen in den Hochhausgeschossen sind jeweils über Eck angeordnet und die Geschosse klar zoniert: Ganz innen liegt der Erschließungskern, dann folgt ein Ring mit den Sanitär- und Nebenräumen und schließlich die Wohn- und Schlafzimmer der Wohnungen.


Der hohe Turm erhielt ein Stahlbetontragwerk, © Arnaud Ledu


Das niedrige Hochhaus basiert auf einer Holz-Hybridkonstruktion, © Arnaud Ledu
Während der höhere Turm ein konventionelles Stahlbetontragwerk erhielt, basieren das niedrigere Hochhaus und die Sockelbebauung auf einer Holz-Hybridkonstruktion. Holz-Beton-Verbunddecken liegen auf Fassadenstützen aus Brettschichtholz sowie auf dem Gebäudekern aus Beton auf. Dazwischen überspannen sie 7,5 m stützenfrei, um maximale Flexibilität für spätere Grundrissänderungen zu gewährleisten.
Architektur: Armand Nouvet Architecture (ANAU), Data Architectes
Bauherr: Vinci Immobilier
Standort: Rue du Fret, 75018 Paris (FR)
Tragwerksplanung: EVP
Landschaftsarchitektur: Wild Landscape
TGA-Planung: Elithis
Projektsteuerung: Hytecc
Grundfläche: 11 064 m²
Kosten (netto): 24,5 Mio. €




























