Wohnen als Materialexperiment: Kartenhäuser bei Turin von Elastico Farm
Foto: atelier XYZ
Einfamilienhäuser sind Experimentierfelder der Architektur, und der italienische Architekt Stefano Pujatti von Elastico Farm hat diesen Auftrag auf die Spitze getrieben. In den beiden Houses of Cards im piemontesischen Torrazza lotet er die Möglichkeiten der Konstruktion mit traditionellen Materialien aus, und zwar jenseits ihrer Standardanwendung.
Katze und Hund
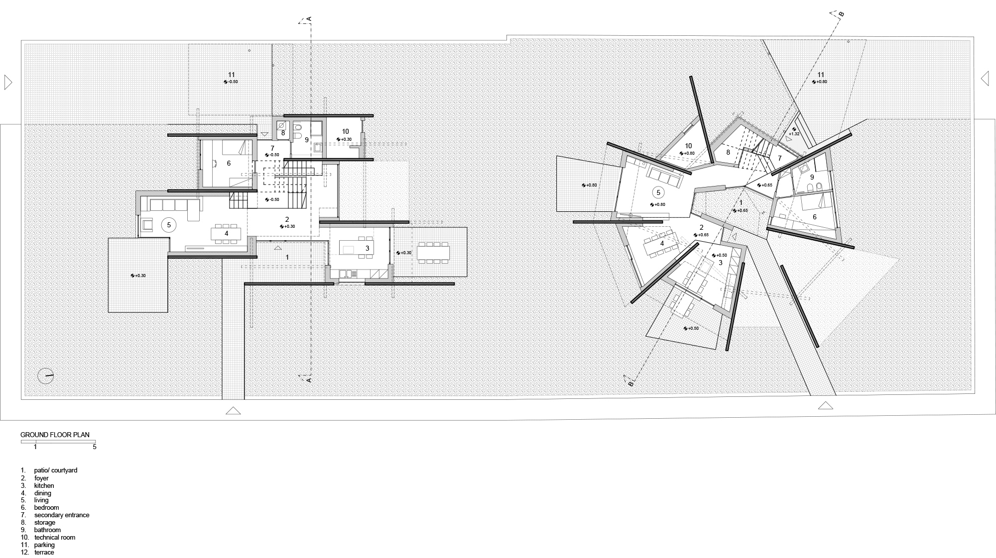
Die beiden experimentellen Gebäude – Pujatti nennt sie Cat House und Dog House – setzen sich als expressive Solitäre klar von ihren Nachbarn in einer monotonen Einfamilienhausumgebung ab. Große Scheiben aus sardischem Granit überlagern sich zu einer gewagten Kombination mit unterschiedlichen Raumkonfigurationen. Rot gefärbter Beton ergänzt die massiven Natursteinwände, die sowohl im Innenraum als auch an den Fassaden sichtbar sind. Theoretische Referenzen für sein gebautes Experiment sucht der Architekt bei großen Vorbildern: Peter Eisenmans Gedanken zu den „Houses of Cards“ sind in seinen kritischen Essays 1987 bei Oxford University Press erschienen.
Halle und Patio
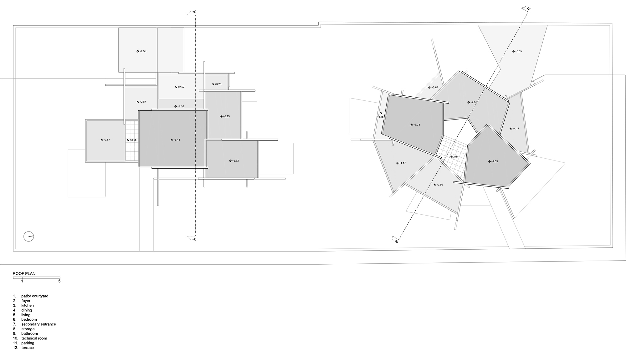
Wie also sieht dieses gebaute Manifest in der italienischen Provinz aus und was macht die Qualitäten dieser prototypischen Wohnhäuser aus? Im Cat House verdichtet sich die orthogonale Struktur zu einer Serie an räumlichen Zonen, die den Übergang von Innen und Außen filtern. Eine doppelgeschossige Halle verbindet die beiden Wohnebenen und wird zum szenografischen Element im Zentrum des Hauses. Dem Dog House hingegen ging eine Recherche in die vorfabrizierten Betonelemente voraus, die auf der Baustelle montiert wurden. Die Raumfolge ist hier um einen zentralen Patio angeordnet, der als Innenhof dient. Radial angeordnete Scheiben geben den Grundriss im Erdgeschoss vor, alle Räume öffnen sich sowohl zum Hof als auch zum Garten des Hauses. Im ersten Obergeschoss mit den privaten Schlafzimmern und einer großen Terrasse sind die tragenden Wände aus Beton und Granit unregelmäßig verteilt und die Raumabfolge deshalb weniger vorhersehbar. Alle tragenden Granit- und Betonscheiben sind in den Innenräumen beider Häuser als Fragmente sichtbar. Ergänzt wurden sie mit Holztrennwänden, die sich versetzen lassen je nach Bedarf.
Durch die massiven Wandscheiben aus Granit und Beton werden beide Häuser zu einem gebauten Experiment für Fragen der Konstruktion, der Lastabtragung und der grundsätzlichen Materialeigenschaften. Wie es sich in einem solchen Experiment wohnen lässt, können letztlich nur die beiden Bauherrenfamilien beurteilen.














