Living as a Material Experiment: Houses of Cards near Turin by Elastico Farm
Foto: atelier XYZ
Single-family homes are experimental fields in architecture, and Italian architect Stefano Pujatti of Elastico Farm has taken this idea to new heights in this commission. For the two Houses of Cards, located in the Piedmontese town of Torrazza, he has grasped the possibilities of a construction of traditional materials and taken them far beyond their standard applications.
Cat and Dog
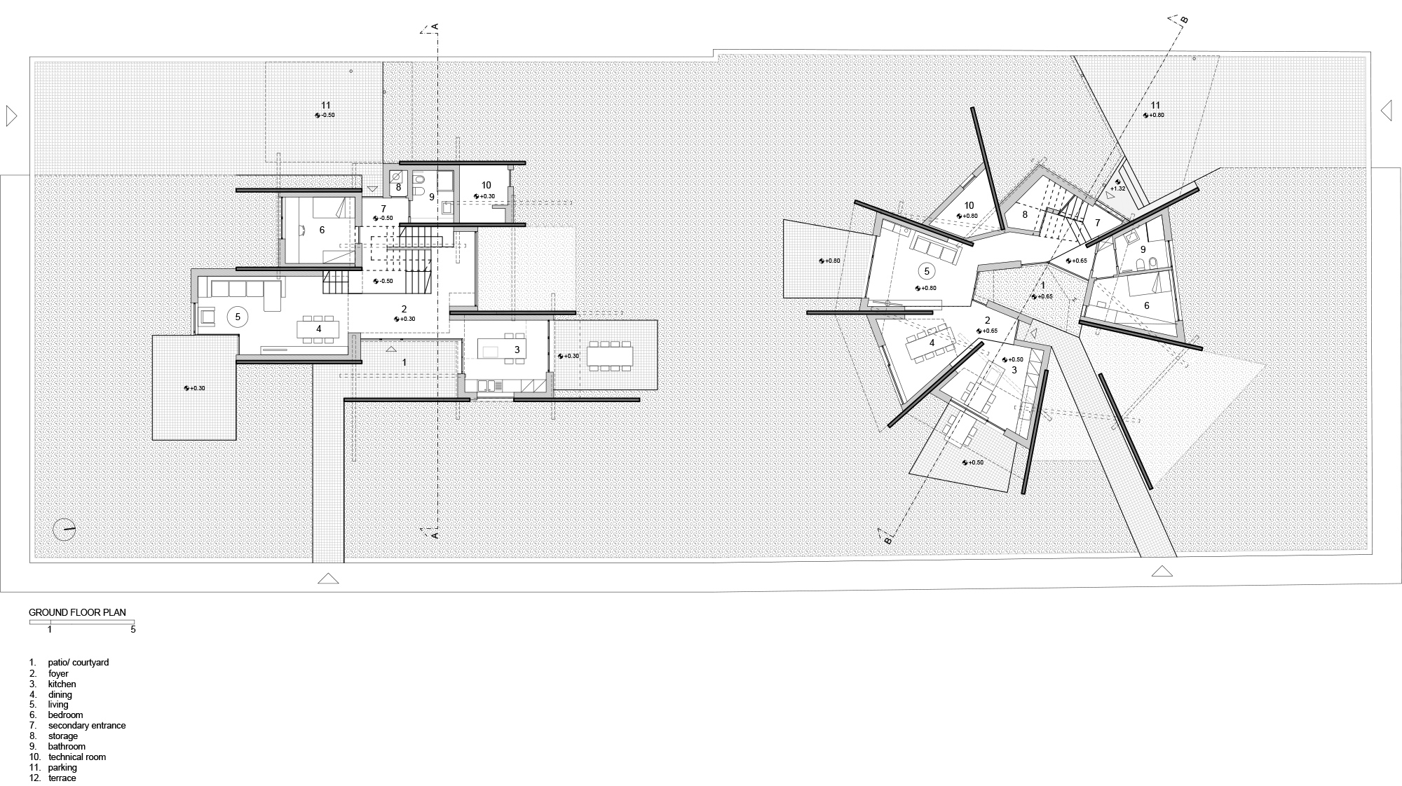
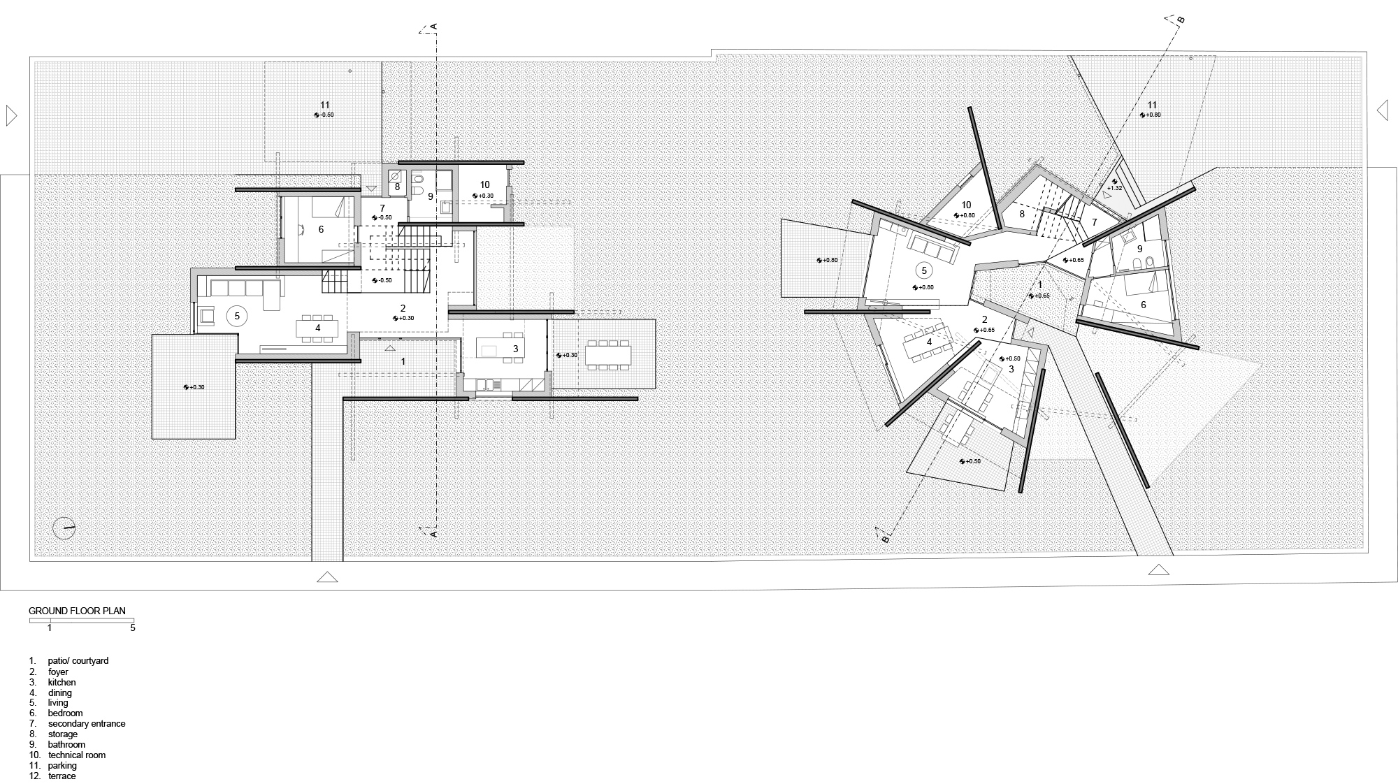
As expressive solitaires, the two experimental buildings − Pujatti calls them Cat House and Dog House − stand clearly apart from their neighbours in a monotonous district of single-family dwellings. Large slabs of Sardinian granite overlap in a daring combination with various spatial configurations. Red-tinted concrete complements the solid walls of natural stone that are visible both inside as well as on the façades. The architect found great role models for the theoretical credentials behind his built experiment: Peter Eisenman’s thoughts on the Houses of Cards were published by Oxford University Press in his 1987 collection of critical essays.
Hall and Patio
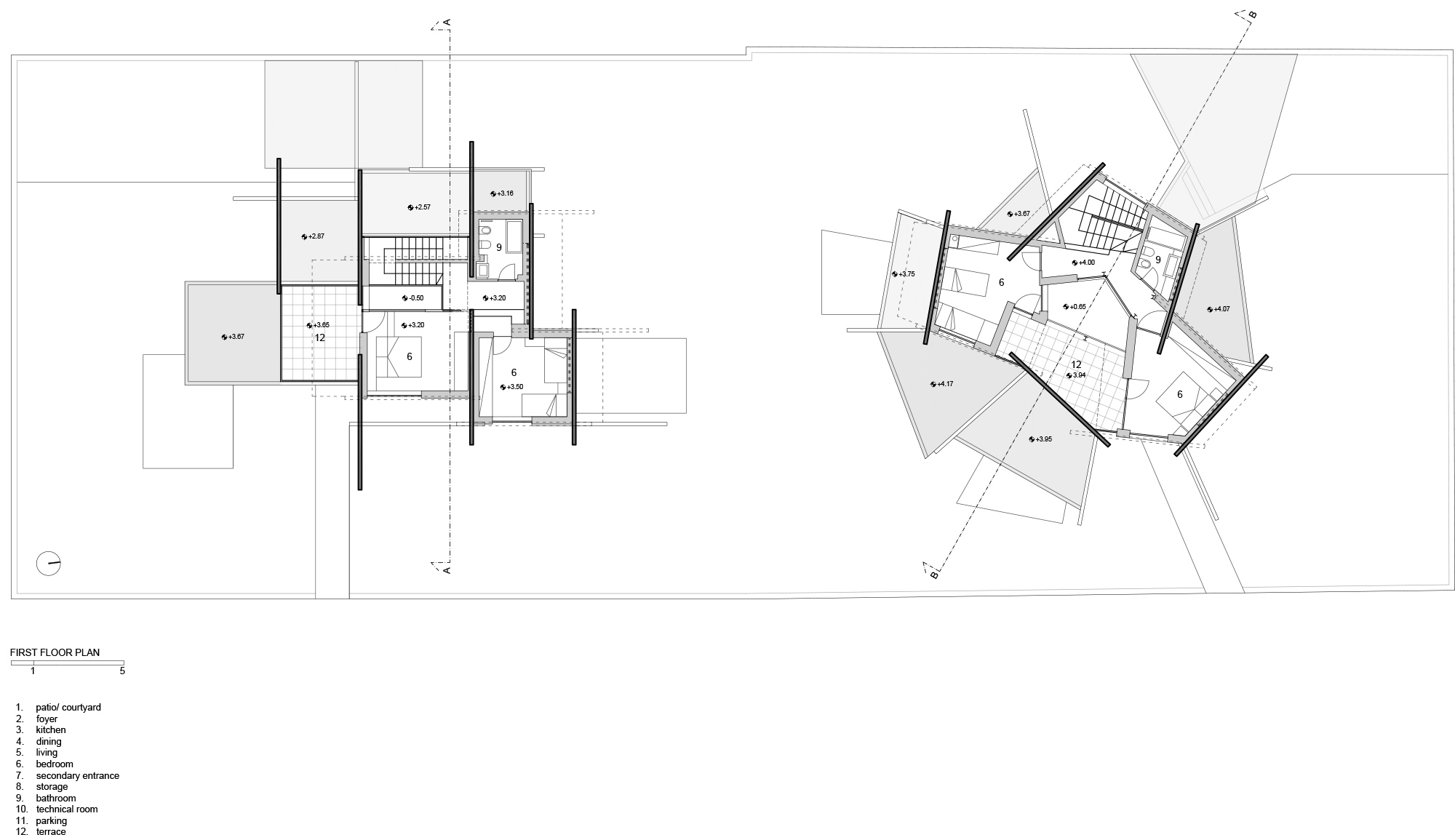
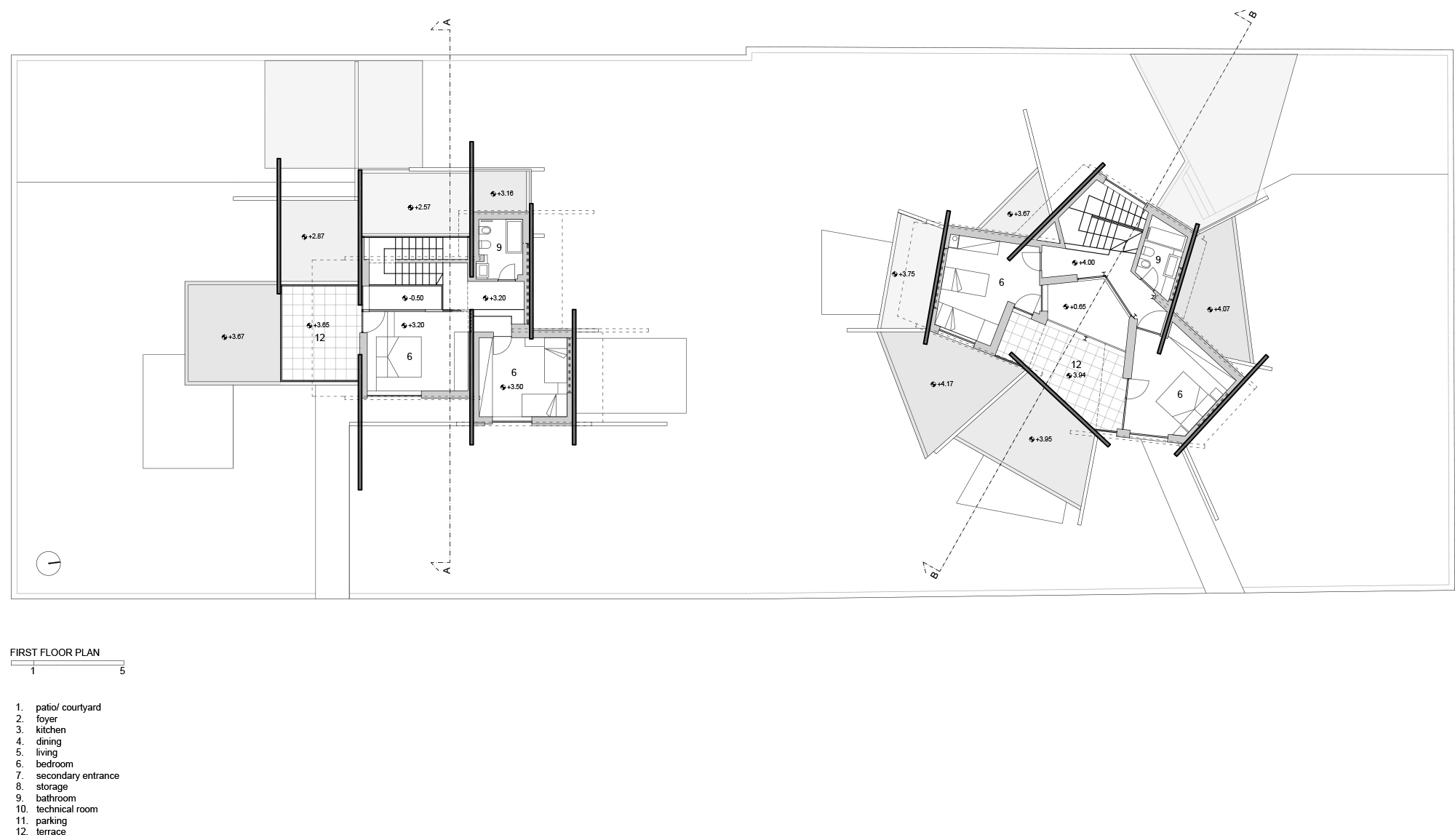
So, what does this built manifesto in the Italian countryside look like, and what determines the qualities of these prototypical houses? In the Cat House, the orthogonal structure concentrates itself into a series of spatial zones which filter the transition from inside to outside. A two-storey hall connects the two living levels and acts as a scenographic element at the centre of the house. In contrast, the Dog House is based on research into the prefabricated concrete elements that were assembled on site. The spatial sequence here surrounds a central patio that serves as an inner courtyard. Radially arranged slabs provide the ground-floor plan; all the spaces open up both onto the yard and towards the garden. On the first upper level, which is home to the private bedrooms and a large terrace, all the load-bearing walls of concrete and granite are distributed irregularly, making the spatial sequence less predictable. All the load-bearing slabs of granite and concrete can be seen in fragments within the interior spaces of both houses. They have been complemented with wooden partition walls that can be rearranged as needed.
The solid wall slabs of granite and concrete make both houses a built experiment to investigate questions of construction, load transfer and fundamental material characteristics. Ultimately, only the two client families can judge how it is to live inside such an experiment.














